Кондиционеры Daikin ATXN-NB - инструкция пользователя по применению, эксплуатации и установке на русском языке. Мы надеемся, она поможет вам решить возникшие у вас вопросы при эксплуатации техники.
Если остались вопросы, задайте их в комментариях после инструкции.
"Загружаем инструкцию", означает, что нужно подождать пока файл загрузится и можно будет его читать онлайн. Некоторые инструкции очень большие и время их появления зависит от вашей скорости интернета.

6-6
Duvarlardan 50mm veya daha fazla
(her iki tarafta)
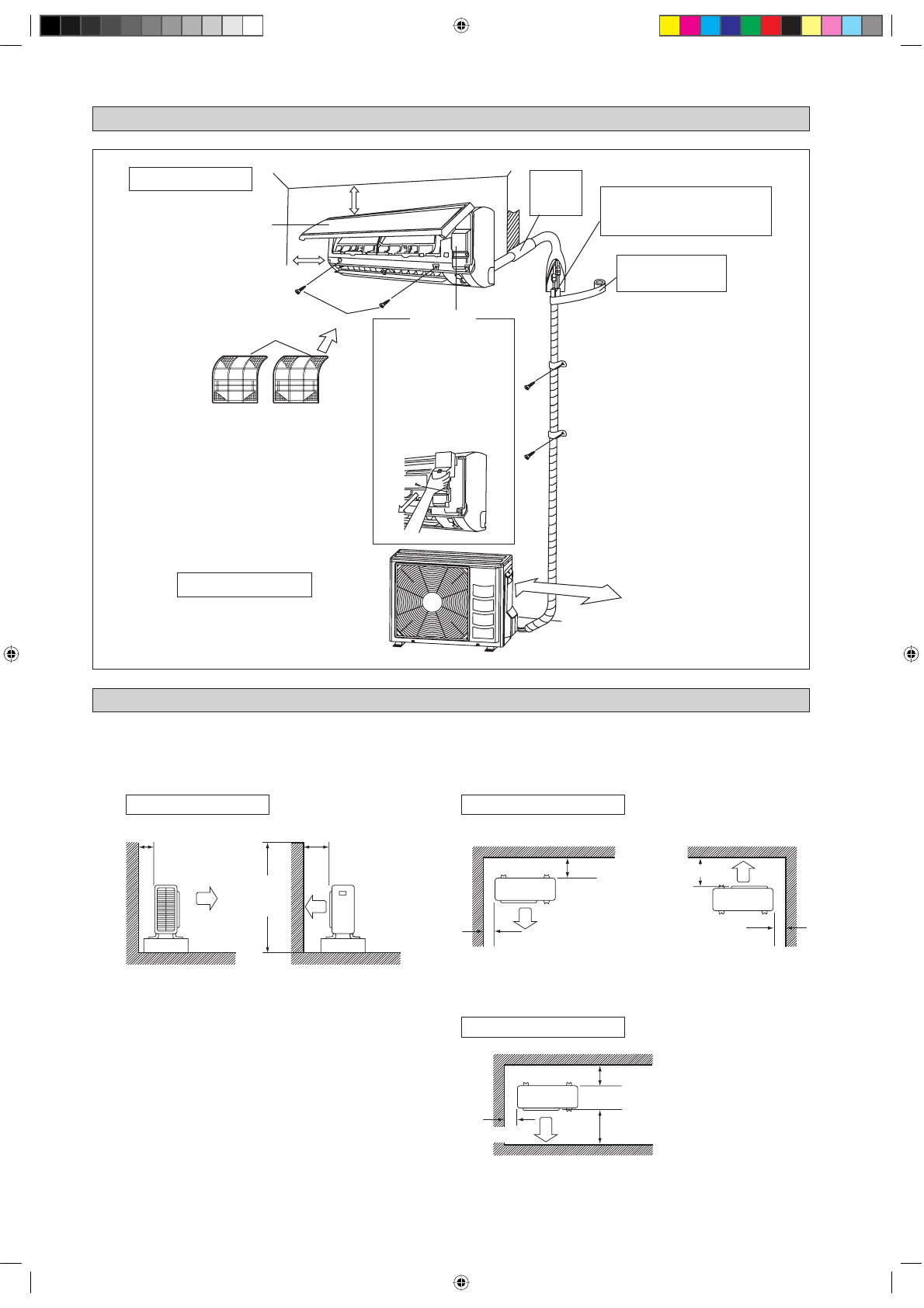
KURULUM ŞEMASI
DIŞ ÜNİTENİN KURULUMU
İç Mekan Ünitesi
Hava filtresi
M4 x 12L
Ön panel
Tavandan 75mm veya daha fazla
Dış Mekan Ünitesi
Boru deliği
genişliğini
macunla
kaplayın.
Termal yalıtım borusunu uygun bir
uzunluğa kadar kesin ve bantla sarın,
yalıtım borusunun kesim hattında
hiçbir boşluk kalmadığından emin olun.
Yalıtım borusunu bitirme
bandıyla aşağıdan yukarı
sarın.
Servis kapağı
Duvardan 500mm
Dış ünitenin hava aldığı veya verdiği yolun üzerinde bir duvar ya da başka bir engel olması durumunda, aşağıdaki
kurulum talimatlarını izleyin.
Aşağıdaki kurulum işlemleri için çıkış tarafındaki duvar yüksekliği 1200mm ya da daha az olmalıdır.
•
•
İki tarafa bakan duvar
50'den fazla
Bir tarafa bakan duvar
100'den fazla
50'den fazla
50'den fazla
Yukarıdan Görünüm
Yandan Görünüm
100'den
fazla
150'den fazla
150'den fazla
300'den fazla
50'den fazla
Ünite: mm
1200 veya
daha az
Üç tarafa bakan duvar
Yukarıdan Görünüm
Servis Kapağını Açma
Servis kapağı açılır/kapanır tip.
Açma yöntemi
1) Servis kapağı vidalarını
çıkar.
2) Servis kapağını okun
doğrultusunda çaprazlama
şekilde aşağı çekin.
3) Aşağı çekin.
6 IM-5WMYJ-1113(2)DK SIESTA_TR.i6 6
1/8/15 2:10:47 PM