Кондиционеры Daikin ATXN-NB - инструкция пользователя по применению, эксплуатации и установке на русском языке. Мы надеемся, она поможет вам решить возникшие у вас вопросы при эксплуатации техники.
Если остались вопросы, задайте их в комментариях после инструкции.
"Загружаем инструкцию", означает, что нужно подождать пока файл загрузится и можно будет его читать онлайн. Некоторые инструкции очень большие и время их появления зависит от вашей скорости интернета.

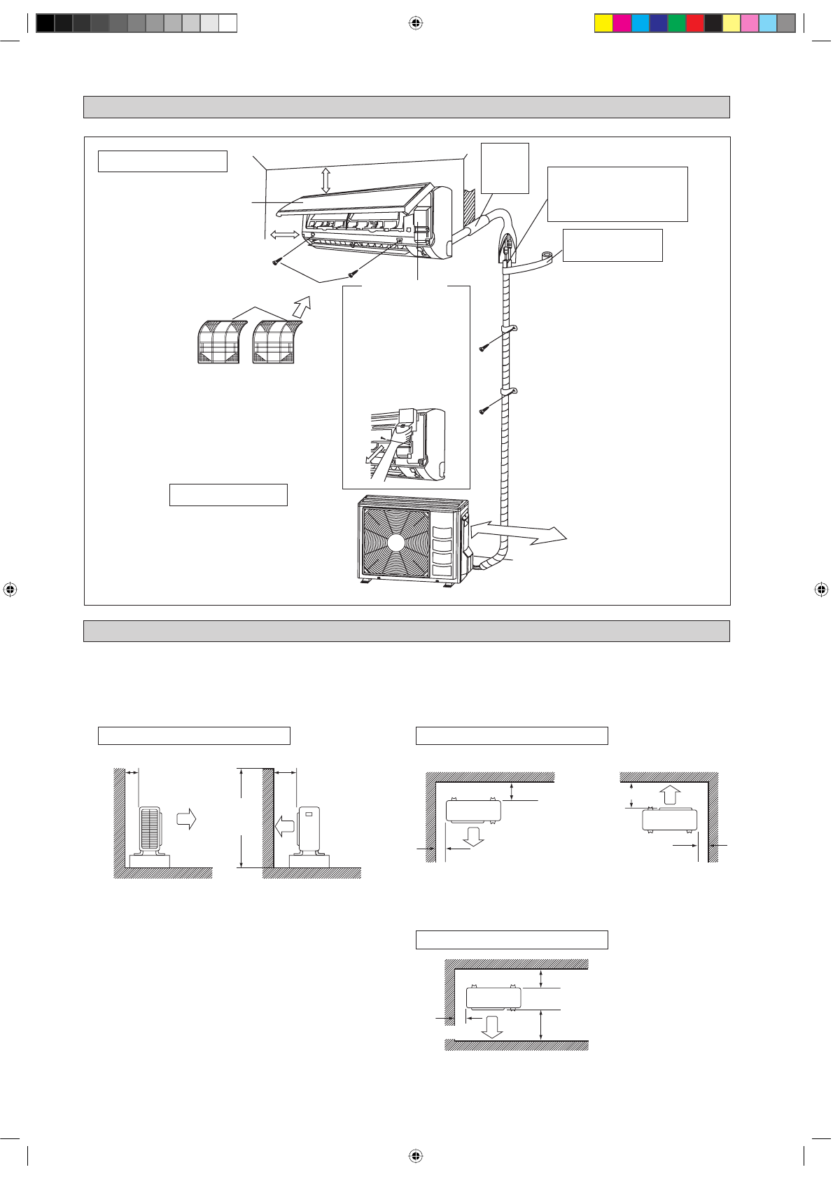
Открытие сервисной крышки
Сервисная крышка является
крышкой типа открытия/закрытия.
Метод открытия
1) Открутите винты сервисной
крышки.
2) Вытяните сервисную крышку
вниз по диагонали в направлении
стрелки.
3) Потяните вниз.
РИСУНОК УСТАНОВКИ
УСТАНОВКА НАРУЖНОГО БЛОКА
Kомнатного блок
Воздушный Фильтр
M4 x 12L
Лицeвая панель
не менее 75мм от потолка
Наружный блок
не менее 50мм от стен
(с обеих сторон)
заделайте
зазор в месте
отверстия
для трубы
шпатлевкой.
Обрежьте трубу тепловой изоляции до
требуемой длины и обмотйте ее лентой, тледя
за отсутствием зазоров по линии обреза
трубы. обмотайте изоляционную трубу лентой
наружного покрытия снизу доверху.
Обмотайте изоляционную
трубу лентой наружного
покрытия снизу доверху.
Сервисная крышка
500мм от стены
В месте, где стена или другое препятствие блокируют входящий или выходящий поток воздуха, необходимо соблюдать
инструкции по установке, представленные ниже.
Для любого примера установки, представленного ниже, высота стены на стороне нагнетания должна быть не более
1200мм.
•
•
Более 50
Одна сторона обращена к стене
Более 100
Более 50
Более 50
Вид сверху
Вид сбоку
Более
100
Более 150
Более 150
Более 300
Более 50
Блок: мм
1200
или
меньше
Вид сверху
Две стороны обращены к стене
Три стороны обращены к стене
7-6
7 IM-5WMYJ-1113(2)DK SIESTA_RU.i6 6
1/8/15 2:17:50 PM