Кондиционеры Daikin ATXN-NB - инструкция пользователя по применению, эксплуатации и установке на русском языке. Мы надеемся, она поможет вам решить возникшие у вас вопросы при эксплуатации техники.
Если остались вопросы, задайте их в комментариях после инструкции.
"Загружаем инструкцию", означает, что нужно подождать пока файл загрузится и можно будет его читать онлайн. Некоторые инструкции очень большие и время их появления зависит от вашей скорости интернета.

DIAGRAMMA PER L’INSTALLAZIONE
2-6
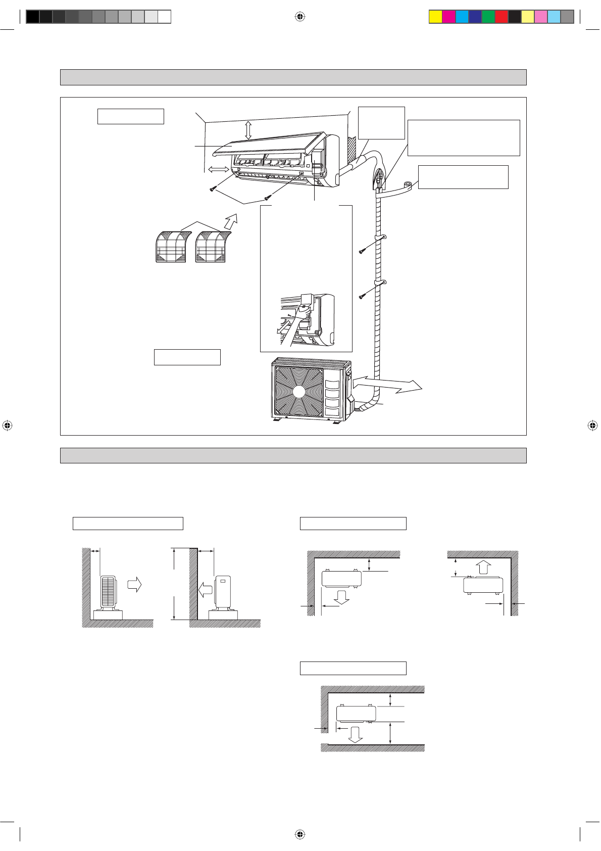
Apertura del coperchio di servizio
Il coperchio di servizio può essere
aperto/chiuso.
Metodo di apertura
1) Rimuovere le viti del coperchio
di servizio.
2) Estrarre il coperchio di accesso
per assistenza tecnica spostandolo
verso il basso e in diagonale, nella
direzione della freccia.
3) Tirare verso il basso.
INSTALLAZIONE DELL’UNITÀ ESTERNA
Unità Interna
Filtro aria
M4 x 12L
Pannello anteriore
75mm o più dal soffitto
Unità Esterna
50mm o più dalle pareti
(su entrambi i lati)
Stuccare lo
spazio del foro
del tubocon
stucco da legno.
Tagliare il tubo di isolamento termico a
una lunghezza appropriata e avvolgerlo
con nastro, accertandosi che non ci siano
buchi nella linea di taglio del tubo di
isolamento.
Avvolgere il tubo di isolamento
da cima a fondo con nastro di
finitura.
Sportellino di manutenzione
500mm dalla parete
Se c’è una parete o un altro ostacolo nel percorso dell’ingresso dell’aria dell’unità esterna o nell’uscita dell’aria di scarico,
seguire le linee guida per l’installazione sotto.
Per i moduli di installazione di cui sotto, l’altezza della parete sul lato di scarico dovrebbe essere pari o inferiore a
1200mm.
•
•
Due lati rivolti alla parete
Oltre 50
Un lato rivolto alla parete
Oltre 100
Oltre 50
Oltre 50
Vista superiore
Vista laterale
Oltre 100
Oltre 150
Oltre 150
Oltre 300
Oltre 50
Unità: mm
1200 o
di meno
Tre lati rivolti alla parete
Vista superiore
2 IM-5WMYJ-1113(2)DK SIESTA_IT.i6 6
1/8/15 2:02:21 PM