Кондиционеры Daikin ATXN-NB - инструкция пользователя по применению, эксплуатации и установке на русском языке. Мы надеемся, она поможет вам решить возникшие у вас вопросы при эксплуатации техники.
Если остались вопросы, задайте их в комментариях после инструкции.
"Загружаем инструкцию", означает, что нужно подождать пока файл загрузится и можно будет его читать онлайн. Некоторые инструкции очень большие и время их появления зависит от вашей скорости интернета.

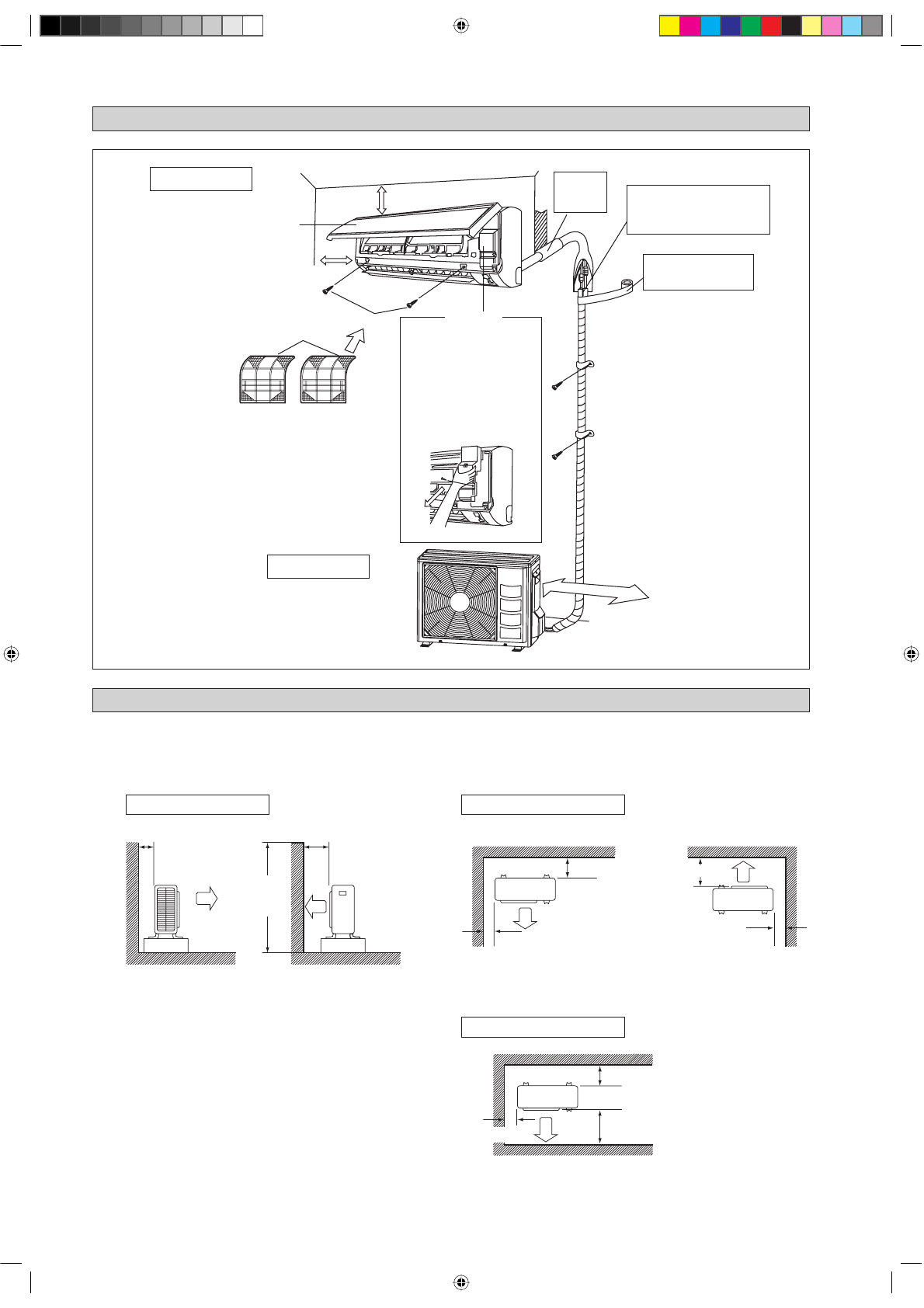
INSTALLATION DIAGRAM
INSTALLATION OF THE OUTDOOR UNIT
Indoor Unit
Air filter
M4 x 12L
Front panel
75mm or more from ceiling
Outdoor Unit
50mm or more from walls
(on both sides)
Caulk pipe
hole gap
with putty.
Cut thermal insulation pipe to an
appropriate length and wrap it with
tape, making sure that no gap is left
in the insulation pipe’s cut line.
Wrap the insulation pipe
with the finishing tape
from bottom to top.
Service lid
500mm from wall
Where a wall or other obstacle is in the path of outdoor unit’s intake or exhaust airflow, follow the installation guidelines
below.
For any of the below installation patterns, the wall height on the exhaust side should be 1200mm or less.
•
•
Wall facing two sides
More than 50
Wall facing one side
More than 100
More than 50
More than 50
Top View
Side View
More
than 100
More than 150
More than 150
More than 300
More than 50
Unit : mm
1200 or
less
Wall facing three sides
Top View
Opening service lid
Service lid is opening/
closing type.
Opening method
1) Remove the service lid
screws.
2) Pull out the service lid
diagonally down in the
direction of the arrow.
3) Pull down.
1-6
1 IM-5WMYJ-1113(2)DK SIESTA_EN.i6 6
1/8/15 2:01:20 PM