Кондиционеры Daikin ATXN-NB - инструкция пользователя по применению, эксплуатации и установке на русском языке. Мы надеемся, она поможет вам решить возникшие у вас вопросы при эксплуатации техники.
Если остались вопросы, задайте их в комментариях после инструкции.
"Загружаем инструкцию", означает, что нужно подождать пока файл загрузится и можно будет его читать онлайн. Некоторые инструкции очень большие и время их появления зависит от вашей скорости интернета.

ȍ
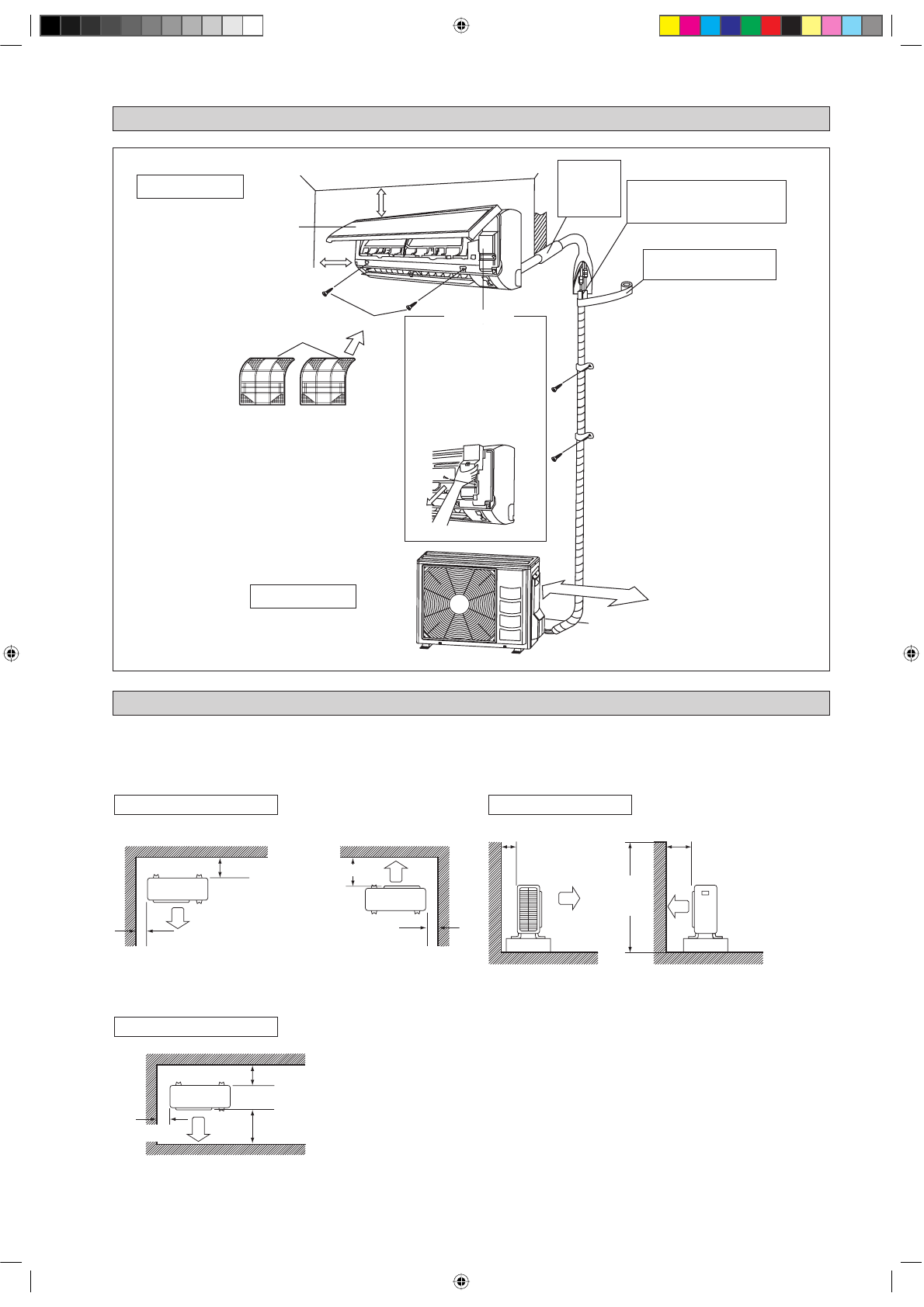
ƿŴƾƶž ȲǞƭŮ ȸȤȚǍƑȚ ȲǎƯŽȚ țǞƃſȚ ǕƭŻȚ
ȳNjŸ ǜž Njżƺůȶ ȆǓƁǍŵ ǀƭŴȚǞŮ ǝƱŽȶ
.
ȲǎƯŽȚ țǞƃſȚ ǕƭŻ Ǔų ǚųȚȢ ȭȚǍź ȱǍů
ƿƸżǍƄŽȚ Ǔƭƈž
ǀƸƴųȚNjŽȚ ȜNjŲǞŽȚ
ǀƸűȤƾƈŽȚ ȜNjŲǞŽȚ
ǗƲƉŽȚ ǜž ǍƅżȚ ȶȚ Ǜž
75
ǀƸžƾžǽȚ ǀŲǞƴŽȚ
ȴȚȤNjƆŽȚ ǜž ǍƅżȚ ȶȚ Ǜž
50
(
ǜƸƃſƾƆŽȚ Ǿż ǟƴŸ
)
ȔȚǞƷŽȚ ljŵǍž
M4 x 12L
ǀſƾƸƫŽȚ ȔƾƭŹ ljƄź
ȰǾŹȚ
/
ljƄź ȬǞſ ǀſƾƸƫŽȚ ȔƾƭŹ
ljƄƱŽȚ ǀƲƁǍŶ
.
ǀſƾƸƫŽȚ ȔƾƭŹ ǠŹȚǍŮ ȬǎſȚ
(1
ƾƁǍƭŻ ǀſƾƸƫŽȚ ȔƾƭŹ ƿƇŴȚ
(2
.
ǛƷƉŽȚ ȵƾƏȚ Ǡź ǚƱŴǾŽ
.
ǚƱŴǾŽ ƿƇŴȚ
(3
ƿƲŰ ȭȚǍź
țǞƃſǽȚ
Ǖž ǓƱƴƆƵŽȚ
.
ǀſǞƆƯƵŽȚ
ǀſƾƸƫŽȚ ȔƾƭŹ
ǓƁǍŵ ǀƭŴȚǞŮ ȲǎƯŽȚ țǞƃſȚ ǗŽ
.
ǀƵƲŽȚ ǟŽȚ ǚƱŴǽȚ ǜž ǠǣƾƷſ
ȤȚNjƆŽȚ ǜž Ǜž
500
ǀƸűȤƾƈŽȚ ȜNjŲǞŽȚ ƿƸżǍů
.
ǚƱŴLjȚ Ǡź ƿƸżǍƄŽȚ ǚǣǽȢ ǕƃůȚ ȆǀƸűȤƾƈŽȚ ȜNjŲǞŽȚ ȔȚǞƀ ȟȚǍųȘȶ ȲƾųȢȘ ȴƾƁǍű ǘƁǍŶ Ǡź ȜȢǞűǞž ȷǍųȖ ǘǣȚǞŸ ȶȚ ȤȚNjƆŽȚ ȴƾż ȚȣȘ
•
.
ȵƾſȢȖ ȜȢȤȚǞŽȚ ƿƸżǍƄŽȚ ȪƾƵſȖ ǜž ȸȖ Ǡź ȆǚŻȖ ȶȖ Ǜž
1200
ȳȢƾƯŽȚ ƿſƾű ǜž ȤȚNjƆŽȚ ȬƾƱůȤȚ ǖƴƃƁ ȴȖ ƿƆƁ
•
50
ǜž ǍƅżȖ
NjŲȚȶ ƿſƾű ǝűȚǞƁ ȤȚNjƆŽȚ
100
ǜž ǍƅżȖ
Ǡƃſƾű ǍƮƶž
ȶȖ
1200
ǚŻȖ
ǜƸƃſƾű ǝűȚǞƁ ȤȚNjƆŽȚ
50
ǜž ǍƅżȖ
50
ǜž ǍƅżȖ
ȸǞƴŸ ǍƮƶž
100
ǜž ǍƅżȖ
150
ǜž ǍƅżȖ
150
ǜž ǍƅżȖ
300
ǜž ǍƅżȖ
50
ǜž ǍƅżȖ
Ǜž
:
ȜNjŲǞŽȚ
ƿſȚǞű ǀŰǾŰ ǝűȚǞƁ ȤȚNjƆŽȚ
ȸǞƴŸ ǍƮƶž
0 IM-5WMYJ-1113(2)DK SIESTA_AR.i6 6
1/8/15 2:00:15 PM