Кондиционеры Daikin RXB-C - инструкция пользователя по применению, эксплуатации и установке на русском языке. Мы надеемся, она поможет вам решить возникшие у вас вопросы при эксплуатации техники.
Если остались вопросы, задайте их в комментариях после инструкции.
"Загружаем инструкцию", означает, что нужно подождать пока файл загрузится и можно будет его читать онлайн. Некоторые инструкции очень большие и время их появления зависит от вашей скорости интернета.

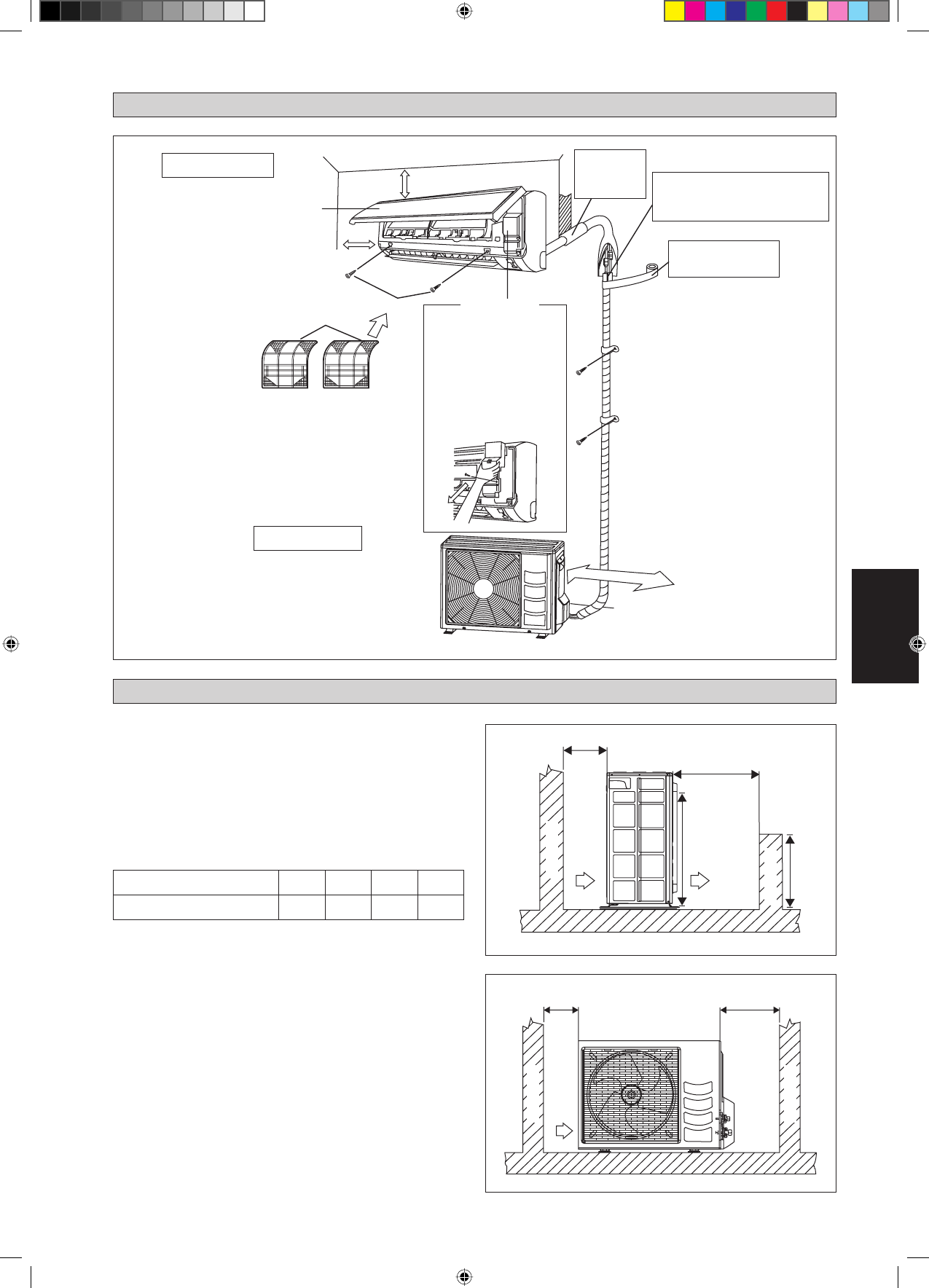
DIAGRAMMA DE LA INSTALACIÓN
Entrada De
Aire
Aire de Descar
ga
A
B
Obstaculo
Obstaculo
H
H/2
5-5
Español
Aire de retorno
Acess de servicio
C
D
Obstaculo
Obstaculo
Unidad interior
Filtros del Aire
M4 x 12L
Panel frontal
75mm o más desde el techo
Unidad exterior
50mm o más desde lasparedes
(en ambos lados)
Calafatee el
huelgo del
orificio del tubo
con masilla.
Corte el tubo termoaislante a un largo
a p r o p i a d o y e n r o l l a r l o c o n l a c i n t a ,
cuidando de que no quede ningún huelgo
en la línea de corte del tubo aislante.
Enrollar el tubo aislante
con cinta de acabado
desde abajo hacia arriba.
Tapa de servicio
Abrir la tapa de servicio
La tapa de servicio es de
tipo apertura/cierre.
Método de apertura
1) Retire los tornillos de la
tapa de servicio.
2) Extraiga la tapa de
servicio tirando de ella
hacia abajo en diagonal,
en el sentido de la flecha.
3) Tire hacia abajo.
ó
ó
500mm desde el muro
INSTALACIÓN DE LA UNIDAD DE EXTERIOR
La unidad exterior se ha de instalar de tal modo que evite
cortocircuitos del aire caliente descargado o obstrucción del
flujo de aire suave. Por favor, siga el espacio proporcionado
para la instalación tal y como se indica en el gráfico.
Seleccione el lugar más frio posible donde el aire de entrada
no sea superior a la de la temperatura exterior (consulte el
rango operativo).
Espacio libre de instalación
Nota:
Si hubiese algún obstáculo de más de 2m de altura o
cualquier obstrucción en la parte superior de la unidad, dejar
más espacio que el indicado en la tabla anterior.
Dimensión
A
B
C
D
Distancia minima, mm
300
1000
300
500
5 IM-5WMYJR-1114(0)-DAIKIN_ES-425 5
5 IM-5WMYJR-1114(0)-DAIKIN_ES-425 5
12/17/14 3:07:08 PM
12/17/14 3:07:08 PM