Кондиционеры Daikin RXB-C - инструкция пользователя по применению, эксплуатации и установке на русском языке. Мы надеемся, она поможет вам решить возникшие у вас вопросы при эксплуатации техники.
Если остались вопросы, задайте их в комментариях после инструкции.
"Загружаем инструкцию", означает, что нужно подождать пока файл загрузится и можно будет его читать онлайн. Некоторые инструкции очень большие и время их появления зависит от вашей скорости интернета.

DIAGRAMME D’INSTALLATION
2-5
Français
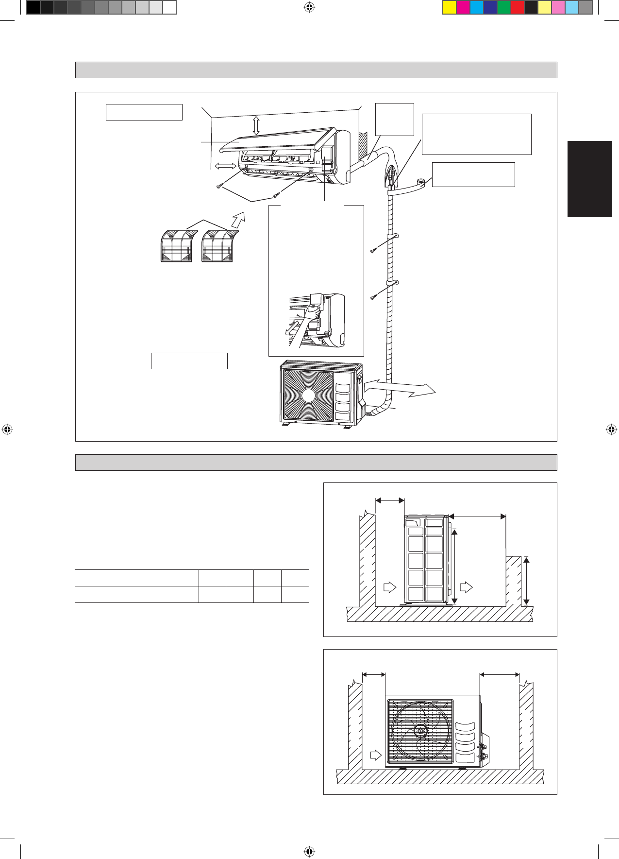
Unité Intérieure
Filtre à air
M4 x 12L
Panneau avant
75mm ou plus du plafond
Unité Extérieure
50mm ou plus des murs
(des deux côtés)
Trou pour la
tuyauterie
calfaté avec
du mastic.
Coupez le tuyau d’isolation thermique sur
une longueur appropriée et enroulez-la de
ruban en vous assurant qu’aucun espac
en’est laissé à l’endroit de la coupe du
tuyau d’isolation thermique.
Enroulez le tuyau d’isolation
avec la bande de finition du
bas jusqu’en haut.
Couvercle de service
Ouverture du couvercle de
service
Le couvercle de service est de
type à ouverture/fermeture.
Méthode d’ouverture
1) Enlevez les vis du
couvercle de service.
2) Abaissez le couvercle de
service en diagonale dans
le sens de la flèche.
3) Tirez vers le bas.
ó
ó
250mm des murs
INSTALLATION DE L’UNITÉ EXTÉRIEURE
L’unité extérieure doit être installée de manière à ce qu’il n’y
ait pas de reprise d’air chaud ou d’obstruction au débit régulier
d’air. Veuillez respecter l’écartement d’installation illustré sur
le diagramme. Choisir l’emplacement le plus frais possible, où
l’admission d’air ne soit pas plus élevée que la température de
l’air extérieure (se reporter à la plage de fonctionnement).
Dégagements minimum
Remarque :
En cas d’obstacles de part et d’autre de l’unité
d’une hauteur supérieure à 2 mètres ou toute obstruction
d’air sur le dessus de l’unité, augmenter sensiblement les
dégagements minimum prévus.
Dimension
A
B
C
D
Distance Minimume, mm
300
1000
300
500
Reprise d’air
Accès de service
C
D
Obstacle
Obstacle
Entrée d’air
Refoulement d’air
A
B
Obstacle
Obstacle
H
H/2
2 IM-5WMYJR-1114(0)-DAIKIN_FR-425 5
2 IM-5WMYJR-1114(0)-DAIKIN_FR-425 5
12/17/14 3:05:12 PM
12/17/14 3:05:12 PM