Кондиционеры Daikin RXB-C - инструкция пользователя по применению, эксплуатации и установке на русском языке. Мы надеемся, она поможет вам решить возникшие у вас вопросы при эксплуатации техники.
Если остались вопросы, задайте их в комментариях после инструкции.
"Загружаем инструкцию", означает, что нужно подождать пока файл загрузится и можно будет его читать онлайн. Некоторые инструкции очень большие и время их появления зависит от вашей скорости интернета.

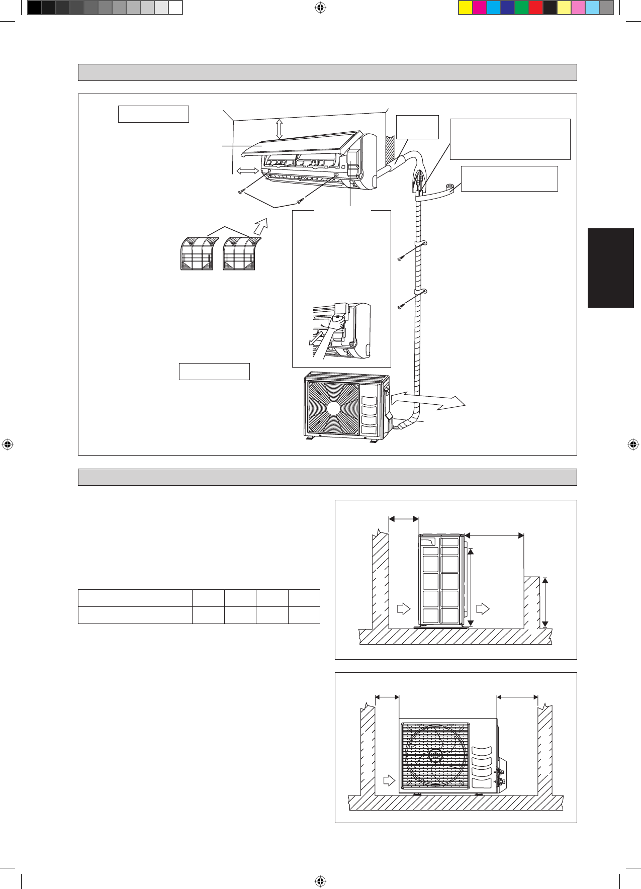
INSTALATIONSDIAGRAMM
W
andelement
3-5
Deutsch
W
andelement
Rückluft
W
artungs-Of
fnung
C
D
W
andelement
W
andelement
Innen-Gerät
Luftfilter
M4 x 12L
Frontpaneel
75mm oder mehr von der Decke
Außen-Gerät
50mm oder mehr von der Wand
(auf beiden Seiten)
Das Bohrloch
Mit Kitt
Abdichten.
Wärmeisolierung auf eineangemessene
L ä n g e z u s c h n e i d e n u n d m i t B a n d
umwickeln. Hierbei sicherstellen, daß am
Schnitt der Wärmeisolierung kein Spalt
verbleibt.
Die Wärmeisolierung von unten
nach oben mit Verkleidungsband
umwickeln.
Wartungsdeckel
Öffnen des Wartungsdeckels
Der Wartungsdeckel ist vom
Typ offen/geschlossen.
Vorgehensweise zum Öffnen
1) Entfernen Sie die Schrauben
des Wartungsdeckels.
2) Ziehen Sie den
Wartungsdeckel in
Pfeilrichtung diagonal nach
unten heraus.
3) Nach unten ziehen.
ó
ó
500mm von der
Wand
INSTALLATION DES AUßENGERÄTES
Das Außengerät ist so zu installieren, dass keine Interferenz
zwischen der Abblasluft und der Umwälzluft bzw. kein Hindernis
gegeben ist. Bei der Installation bitte die in der Zeichnung
angegebenen Abstände beachten. Wählen Sie den kühlsten Ort
zur Installation, wo die Temperatur der angesaugten Luft nicht
höher als die Außentemperatur (siehe Betriebsbereich) ist.
Montageabstand
Anmerkung:
Bei einem Hindernis von über 2m oder soweit
sich irgendein Hindernis im oberen Bereich der Einheit
befindet, muß der in obenstehender Tabelle aufgeführte
Abstand entsprechend vergrößert werden.
Abmessung
A
B
C
D
Mindestabstand, mm
300
1000
300
500
Rückluft
Auslass Luft
A
B
H
H/2
3 IM-5WMYJR-1114(0)-DAIKIN_DE-425 5
3 IM-5WMYJR-1114(0)-DAIKIN_DE-425 5
12/17/14 3:05:50 PM
12/17/14 3:05:50 PM