Кондиционеры Daikin RXB-C - инструкция пользователя по применению, эксплуатации и установке на русском языке. Мы надеемся, она поможет вам решить возникшие у вас вопросы при эксплуатации техники.
Если остались вопросы, задайте их в комментариях после инструкции.
"Загружаем инструкцию", означает, что нужно подождать пока файл загрузится и можно будет его читать онлайн. Некоторые инструкции очень большие и время их появления зависит от вашей скорости интернета.

English
1-5
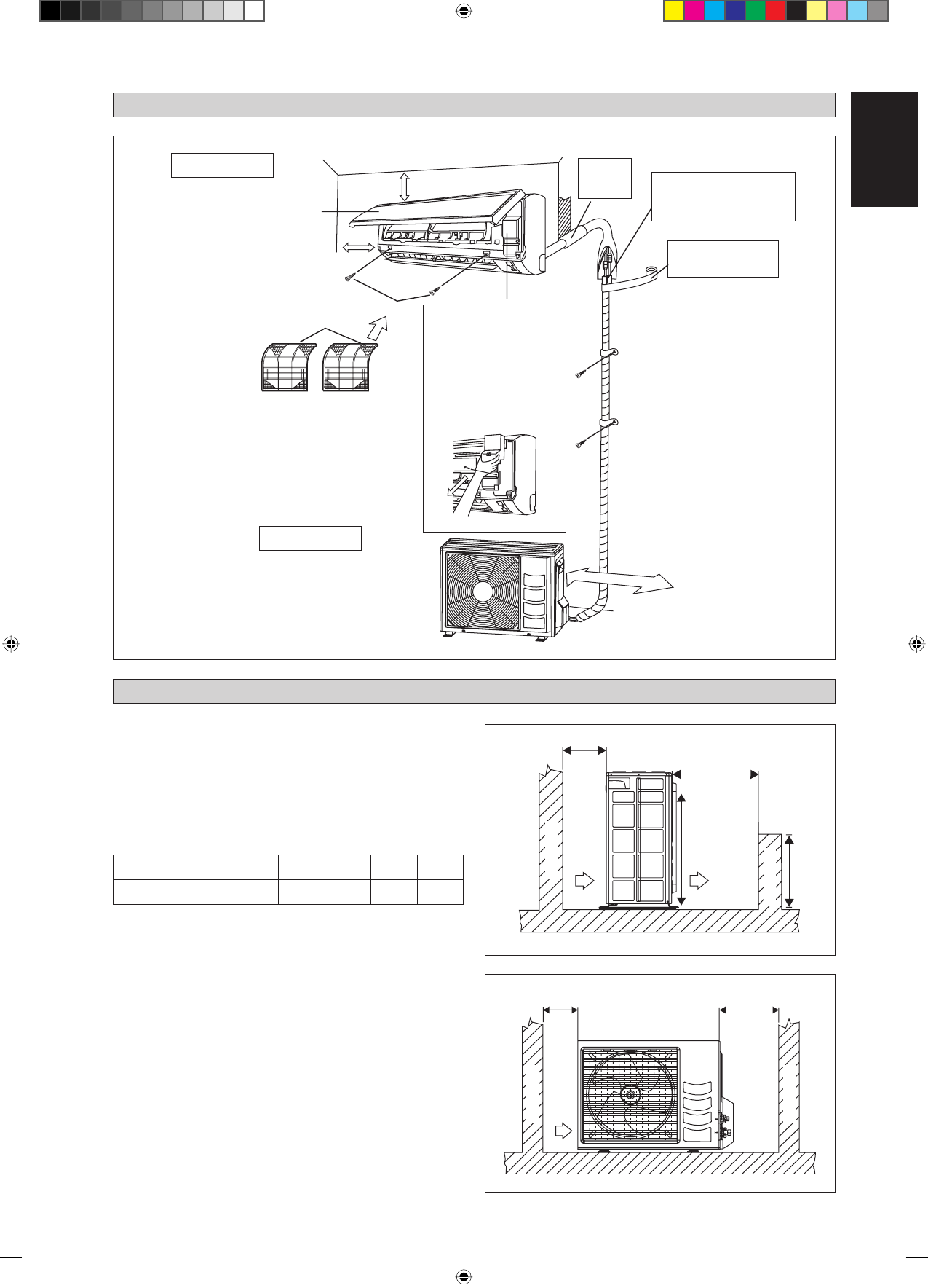
INSTALLATION DIAGRAM
Air Inlet
Dischar
ge air
A
B
Obstacle
Return air
Service access
C
D
Obstacle
Obstacle
Obstacle
Indoor Unit
Air filter
M4 x 12L
Front panel
75mm or more from ceiling
Outdoor Unit
50mm or more from walls
(on both sides)
Caulk pipe
hole gap
with putty.
Cut thermal insulation pipe to an
appropriate length and wrap it with
tape, making sure that no gap is left
in the insulation pipe’s cut line.
Wrap the insulation pipe
with the finishing tape
from bottom to top.
Service lid
Opening service lid
Service lid is opening/
closing type.
Opening method
1) Remove the service lid
screws.
2) Pull out the service lid
diagonally down in the
direction of the arrow.
3) Pull down.
ó
ó
500mm from wall
INSTALLATION OF THE OUTDOOR UNIT
The outdoor unit must be installed in such a way, so as to
prevent short circuit of the hot discharged air or obstruction to
the smooth air flow. Please follow the installation clearances
shown in the figure. Select the coolest possible place where
intake air temperature is not greater than the outside air
temperature (Refer to operating range).
Installation clearances
Note:
If there is any obstacle higher than 2m, or if there is any
obstruction at the upper part of the unit, please allow more
space than the figure indicated in the above table.
Dimension
A
B
C
D
Minimum Distance, mm
300
1000
300
500
H
H/2
1 IM-5WMYJR-1114(0)-DAIKIN_EN-425 5
1 IM-5WMYJR-1114(0)-DAIKIN_EN-425 5
12/17/14 3:04:34 PM
12/17/14 3:04:34 PM