Кондиционеры Daikin RXB-C - инструкция пользователя по применению, эксплуатации и установке на русском языке. Мы надеемся, она поможет вам решить возникшие у вас вопросы при эксплуатации техники.
Если остались вопросы, задайте их в комментариях после инструкции.
"Загружаем инструкцию", означает, что нужно подождать пока файл загрузится и можно будет его читать онлайн. Некоторые инструкции очень большие и время их появления зависит от вашей скорости интернета.

DIAGRAMMA PER L’INSTALLAZIONE
4-5
Italiano
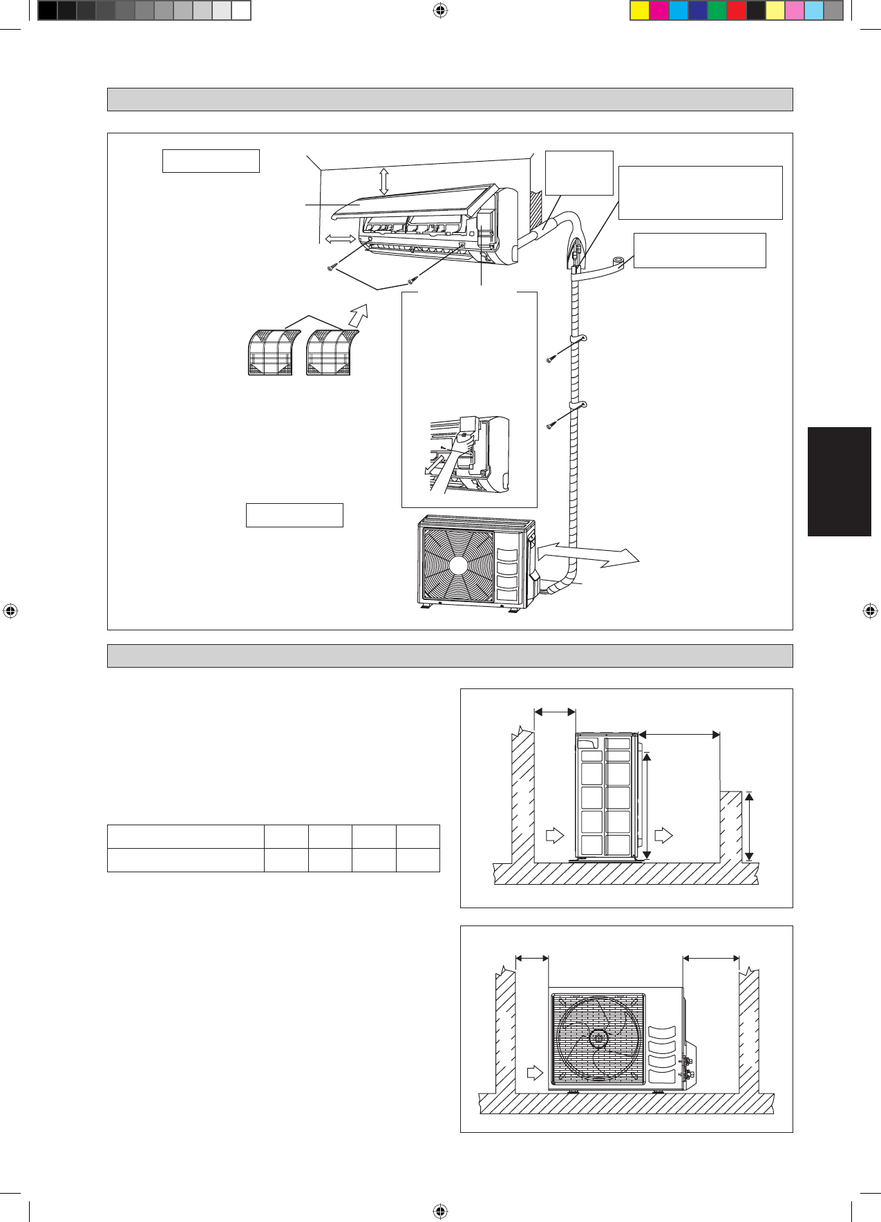
INSTALLAZIONE DELL’UNITÀ ESTERNA
Unità Interna
Filtro aria
M4 x 12L
Pannello anteriore
75mm o più dal soffitto
Unità Esterna
50mm o più dalle pareti
(su entrambi i lati)
Stuccare lo
spazio del foro
del tubocon
stucco da legno.
Tagliare il tubo di isolamento termico a
una lunghezza appropriata e avvolgerlo
con nastro, accertandosi che non ci siano
buchi nella linea di taglio del tubo di
isolamento.
Avvolgere il tubo di isolamento
da cima a fondo con nastro di
finitura.
Sportellino di manutenzione
Apertura del coperchio di servizio
Il coperchio di servizio può essere
aperto/chiuso.
Metodo di apertura
1) Rimuovere le viti del coperchio
di servizio.
2) Estrarre il coperchio di accesso
per assistenza tecnica spostandolo
verso il basso e in diagonale, nella
direzione della freccia.
3) Tirare verso il basso.
ó
ó
500mm dalla parete
Aria di ritorno
Pannello Di Servizio
C
D
Ostacolo
Ostacolo
L’unità esterna deve essere installata in modo tale da prevenire
ostruzioni al normale deflusso dell’aria e che la circolazione
dell’aria di scarico sia la più ampia possibile. Rispettare,
nell’installazione le distanze di sicurezza sotto indicate.
Selezionare il luogo più freddo possibile in cui la temperatura
dell’aria immessa non sia superiore alla temperatura dell’aria
esterna (Fare riferimento alla gamma operativa).
Distanze di rispetto/sicurezza
Nota:
Se esistono ostacoli di più di 2m di altezza o una qualsiasi
ostruzione al di sopra dell’apparecchiatura, aumentare le distanze
sopra indicate.
Dimensioni
A
B
C
D
Distanza minima, mm
300
1000
300
500
Ingresso dell’aria
Aria Di Scarico
A
B
Ostacolo
Ostacolo
H
H/2
4 IM-5WMYJR-1114(0)-DAIKIN_IT-425 5
4 IM-5WMYJR-1114(0)-DAIKIN_IT-425 5
12/17/14 3:06:32 PM
12/17/14 3:06:32 PM