Кондиционеры Daikin RXB-C - инструкция пользователя по применению, эксплуатации и установке на русском языке. Мы надеемся, она поможет вам решить возникшие у вас вопросы при эксплуатации техники.
Если остались вопросы, задайте их в комментариях после инструкции.
"Загружаем инструкцию", означает, что нужно подождать пока файл загрузится и можно будет его читать онлайн. Некоторые инструкции очень большие и время их появления зависит от вашей скорости интернета.

5-2
B
A
Q
P
R
S
D
O
K
L
L
M
N
F
E
C
G
H
I
J
N
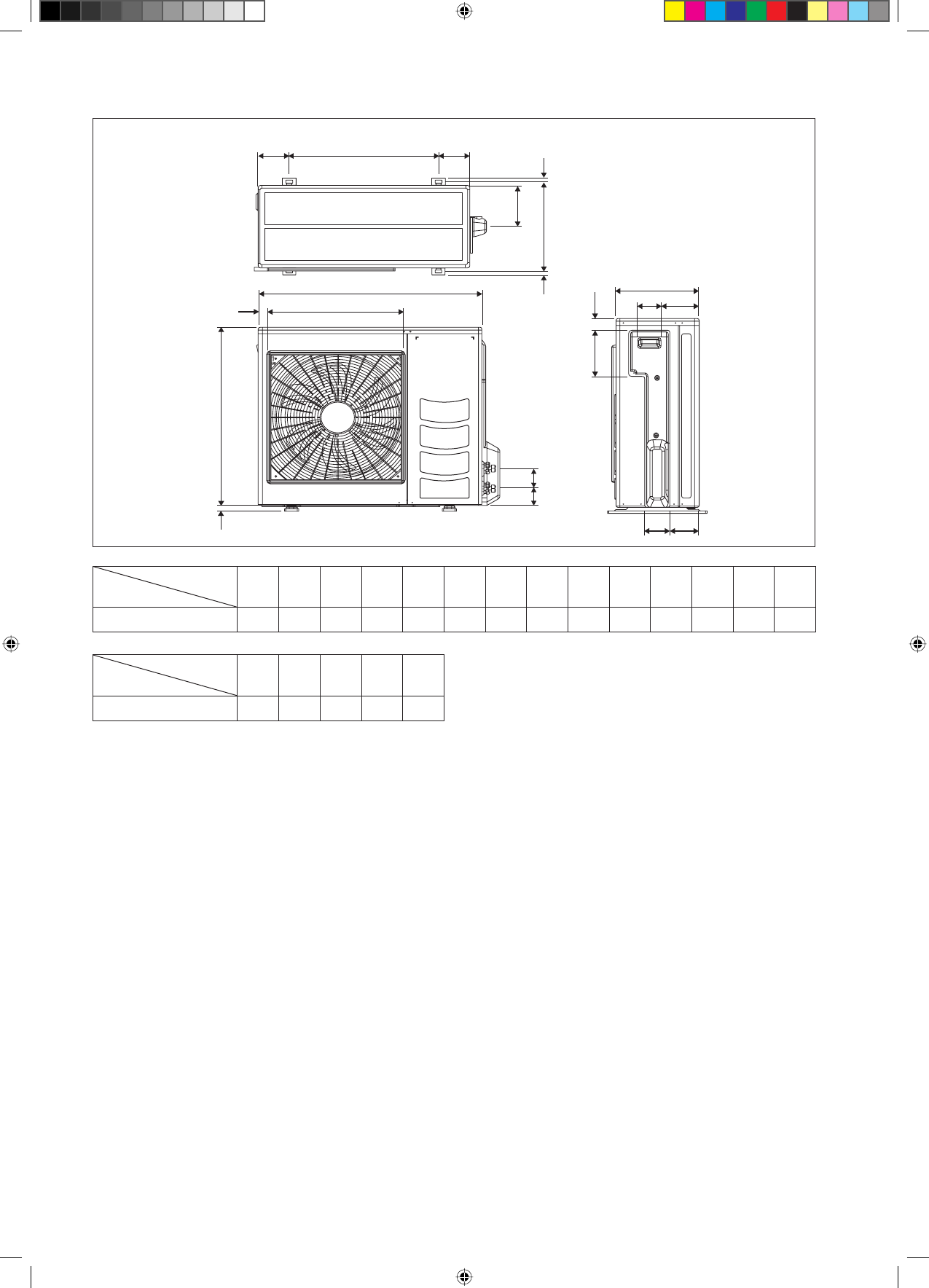
Dimensión
Modelo
A
B
C
D
E
F
G
H
I
J
K
L
M
N
RXB50/60CV1B
855
730
328
520
179
46
93
149
101
113
603
126
164
15
Unidad exterior RXB50/60CV1B
Todas las dimensiones están en mm
Dimensión
Modelo
O
P
Q
R
S
RXB50/60CV1B
34
23
362
73
75
5 IM-5WMYJR-1114(0)-DAIKIN_ES-422 2
5 IM-5WMYJR-1114(0)-DAIKIN_ES-422 2
12/17/14 3:07:08 PM
12/17/14 3:07:08 PM