Кондиционеры Daikin RXB-C - инструкция пользователя по применению, эксплуатации и установке на русском языке. Мы надеемся, она поможет вам решить возникшие у вас вопросы при эксплуатации техники.
Если остались вопросы, задайте их в комментариях после инструкции.
"Загружаем инструкцию", означает, что нужно подождать пока файл загрузится и можно будет его читать онлайн. Некоторые инструкции очень большие и время их появления зависит от вашей скорости интернета.

٥
ﻲﺑﺮﻋ
ﺐﺳﺎﻨﻣ
ﻝﻮﻄﺑ
ﻱﺭﺍﺮﳊﺍ
ﻝﺰﻌﻟﺍ
ﺏﻮﺒﻧﺍ
ﻊﻄﻗﺍ
ﻡﺪﻋ
ﻦﻣ
ﺪﻛﺄﺗﻭ
،ﻂﻳﺮﺷ
ﺔﻄﺳﺍﻮﺑ
ﻪﻔﻟﻭ
.
ﻝﺰﻌﻟﺍ
ﺏﻮﺒﻧﺍ
ﻊﻄﻗ
ﻂﺧ
ﻞﺧﺍﺩ
ﻍﺍﺮﻓ
ﻙﺮﺗ
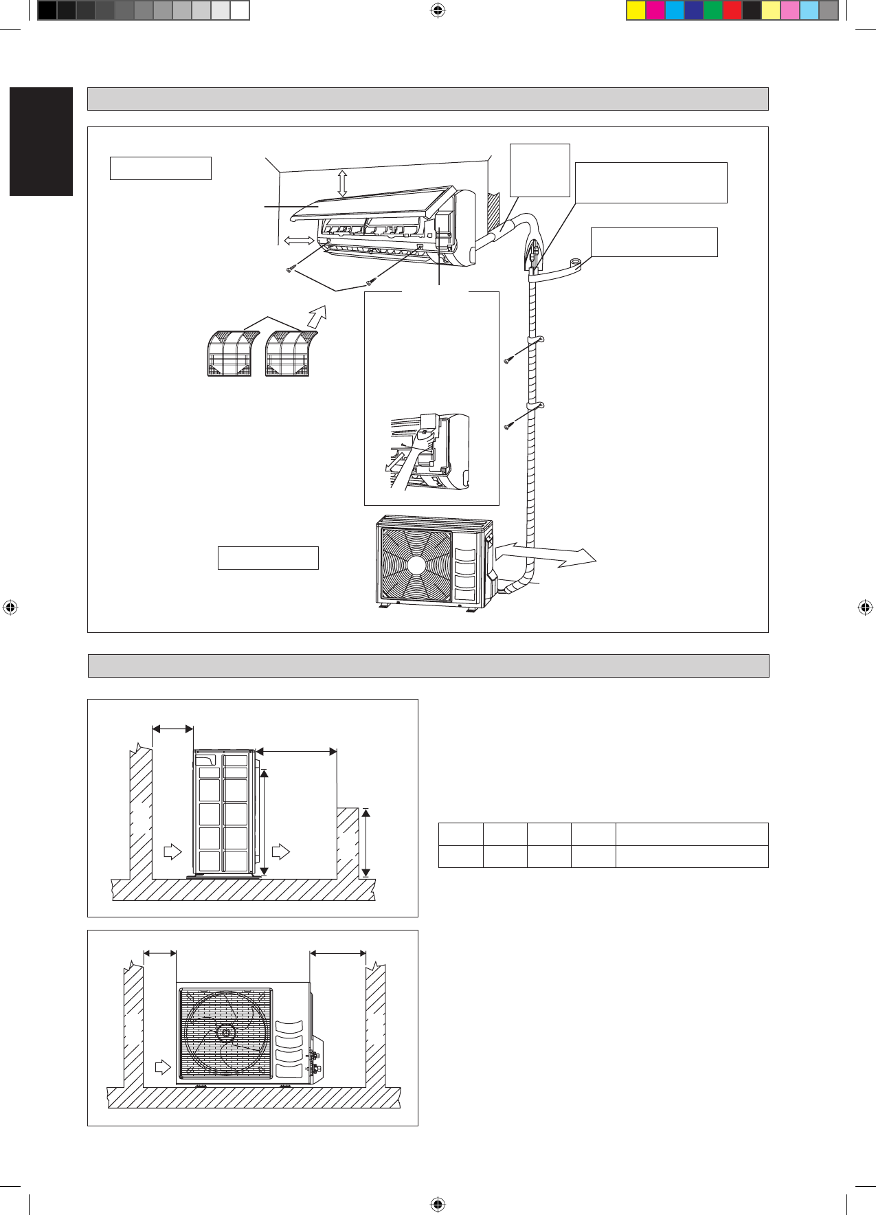
ﺐﻴﻛﺮﺘﻟﺍ
ﻂﻄﺨﻣ
ﺔﻴﻠﺧﺍﺪﻟﺍ
ﺓﺪﺣﻮﻟﺍ
ﺔﻴﺟﺭﺎﺨﻟﺍ
ﺓﺪﺣﻮﻟﺍ
ﻒﻘﺴﻟﺍ
ﻦﻣ
ﺮﺜﻛﺍ
ﻭﺍ
ﻢﻣ
75
ﺔﻴﻣﺎﻣﻻﺍ
ﺔﺣﻮﻠﻟﺍ
ﻥﺍﺭﺪﺠﻟﺍ
ﻦﻣ
ﺮﺜﻛﺍ
ﻭﺍ
ﻢﻣ
50
(
ﻦﻴﺒﻧﺎﺠﻟﺍ
ﻼﻛ
ﻰﻠﻋ
)
ﺀﺍﻮﻬﻟﺍ
ﺢﺷﺮﻣ
M4 x 12L
ﺔﻧﺎﻴﺼﻟﺍ
ﺀﺎﻄﻏ
ﺢﺘﻓ
•
ﻕﻼﻏﺍ
/
ﺢﺘﻓ
ﻉﻮﻧ
ﺔﻧﺎﻴﺼﻟﺍ
ﺀﺎﻄﻏ
ﺢﺘﻔﻟﺍ
ﺔﻘﻳﺮﻃ
•
.
ﺔﻧﺎﻴﺼﻟﺍ
ﺀﺎﻄﻏ
ﻲﻏﺍﺮﺑ
ﻉﺰﻧﺍ
(1
ﺎﻳﺮﻄﻗ
ﺔﻧﺎﻴﺼﻟﺍ
ﺀﺎﻄﻏ
ﺐﺤﺳﺍ
(2
.
ﻢﻬﺴﻟﺍ
ﻩﺎﲡﺍ
ﻲﻓ
ﻞﻔﺳﻼﻟ
.
ﻞﻔﺳﻼﻟ
ﺐﺤﺳﺍ
(3
ﺐﻘﺛ
ﻍﺍﺮﻓ
ﺏﻮﺒﻧﻻﺍ
ﻊﻣ
ﻂﻔﻠﺠﻤﻟﺍ
.
ﺔﻧﻮﺠﻌﻤﻟﺍ
ﺔﻧﺎﻴﺼﻟﺍ
ﺀﺎﻄﻏ
ﻂﻳﺮﺷ
ﺔﻄﺳﺍﻮﺑ
ﻝﺰﻌﻟﺍ
ﺏﻮﺒﻧﺍ
ﻒﻟ
.
ﺔﻤﻘﻟﺍ
ﻰﻟﺍ
ﻞﻔﺳﻻﺍ
ﻦﻣ
ﻲﺋﺎﻬﻧ
ﺭﺍﺪﺠﻟﺍ
ﻦﻣ
ﻢﻣ
500
ﺔﻴﺟﺭﺎﺨﻟﺍ
ﺓﺪﺣﻮﻟﺍ
ﺐﻴﻛﺮﺗ
ﺐﻴﻛﺮﺘﻠﻟ
ﺔﻏﺭﺎﻔﻟﺍ
ﺔﻓﺎﺴﻤﻟﺍ
ﻢﺴﻘﻟﺍ
ﻰﻠﻋ
ﻖﺋﺎﻋ
ﻱﺍ
ﺪﺟﻭ
ﺍﺫﺍ
ﻭﺍ
،ﻡ
2
ﻦﻣ
ﻰﻠﻋﺍ
ﻖﺋﺍﻮﻋ
ﺕﺪﺟﻭ
ﺍﺫﺍ
:
ﺔﻈﺣﻼﻣ
ﻝﻭﺪﺠﻟﺍ
ﻲﻓ
ﺢﺿﻮﻤﻟﺍ
ﻢﻗﺮﻟﺍ
ﻦﻣ
ﺮﺜﻛﺍ
ﻍﺍﺮﻔﻟﺍ
ﺓﺩﺎﻳﺯ
ﻰﺟﺮﻳ
،ﺓﺪﺣﻮﻠﻟ
ﻱﻮﻠﻌﻟﺍ
.
ﻩﻼﻋﺍ
D
C
B
A
ﺩﺎﻌﺑﻷﺍ
500
300
1000
300
ﻢﻣ
،ﺔﻓﺎﺴﻤﻠﻟ
ﻰﺼﻗﻻﺍ
ﺪﺤﻟﺍ
ﺓﺮﺋﺍﺪﻟﺍ
ﺮﺼﻗ
ﻊﻨﻤﻟ
،ﺔﻘﻳﺮﻄﻟﺍ
ﻩﺬﻫ
ﻞﺜﻤﺑ
ﺔﻴﺟﺭﺎﺨﻟﺍ
ﺓﺪﺣﻮﻟﺍ
ﺐﻴﻛﺮﺗ
ﺐﺠﻳ
ﻉﺎﺒﺗﺍ
ﻰﺟﺮﻳ
.
ﺀﺍﻮﻬﻠﻟ
ﻞﻬﺴﻟﺍ
ﺏﺎﻴﺴﻧﻻﺍ
ﺔﻗﺎﻋﺍ
ﻭﺍ
ﺭﺎﺤﻟﺍ
ﻍﺮﻔﻤﻟﺍ
ﺀﺍﻮﻬﻠﻟ
ﻥﺎﻜﻣ
ﺩﺮﺑﺃ
ﺮﺘﺧﺍ
.
ﻢﺳﺮﻟﺍ
ﻲﻓ
ﺔﺤﺿﻮﻤﻟﺍ
ﺐﻴﻛﺮﺘﻠﻟ
ﺔﻏﺭﺎﻔﻟﺍ
ﺔﻓﺎﺴﻤﻟﺍ
ﺀﺍﻮﻬﻟﺍ
ﺓﺭﺍﺮﺣ
ﺔﺟﺭﺩ
ﻦﻋ
ﻲﻠﺧﺍﺪﻟﺍ
ﺀﺍﻮﻬﻟﺍ
ﺓﺭﺍﺮﺣ
ﺔﺟﺭﺩ
ﺪﻳﺰﺗﻻ
ﺚﻴﺤﺑ
ﻞﻤﺘﺤﻣ
.(
ﻞﻴﻐﺸﺘﻟﺍ
ﻯﺪﻣ
ﻰﻟﺇ
ﻉﻮﺟﺮﻟﺍ
ﻰﺟﺮﻳ
)
ﻲﺟﺭﺎﺨﻟﺍ
ﻍﺮﻔﻤﻟﺍ
ﺀﺍﻮﻬﻟﺍ
ﻊﺟﺍﺮﻟﺍ
ﺀﺍﻮﻬﻟﺍ
ﺔﻧﺎﻴﺼﻟﺍ
ﻞﺧﺪﻣ
C
D
ﻖﺋﺎﻋ
ﻖﺋﺎﻋ
ﻊﺟﺍﺮﻟﺍ
ﺀﺍﻮﻬﻟﺍ
A
B
ﻖﺋﺎﻋ
H
H/2
ﻖﺋﺎﻋ
0 IM-5WMYJR-1114(0)-DAIKIN_AR-425 5
0 IM-5WMYJR-1114(0)-DAIKIN_AR-425 5
12/17/14 3:03:44 PM
12/17/14 3:03:44 PM