Кондиционеры Daikin RXB-C - инструкция пользователя по применению, эксплуатации и установке на русском языке. Мы надеемся, она поможет вам решить возникшие у вас вопросы при эксплуатации техники.
Если остались вопросы, задайте их в комментариях после инструкции.
"Загружаем инструкцию", означает, что нужно подождать пока файл загрузится и можно будет его читать онлайн. Некоторые инструкции очень большие и время их появления зависит от вашей скорости интернета.

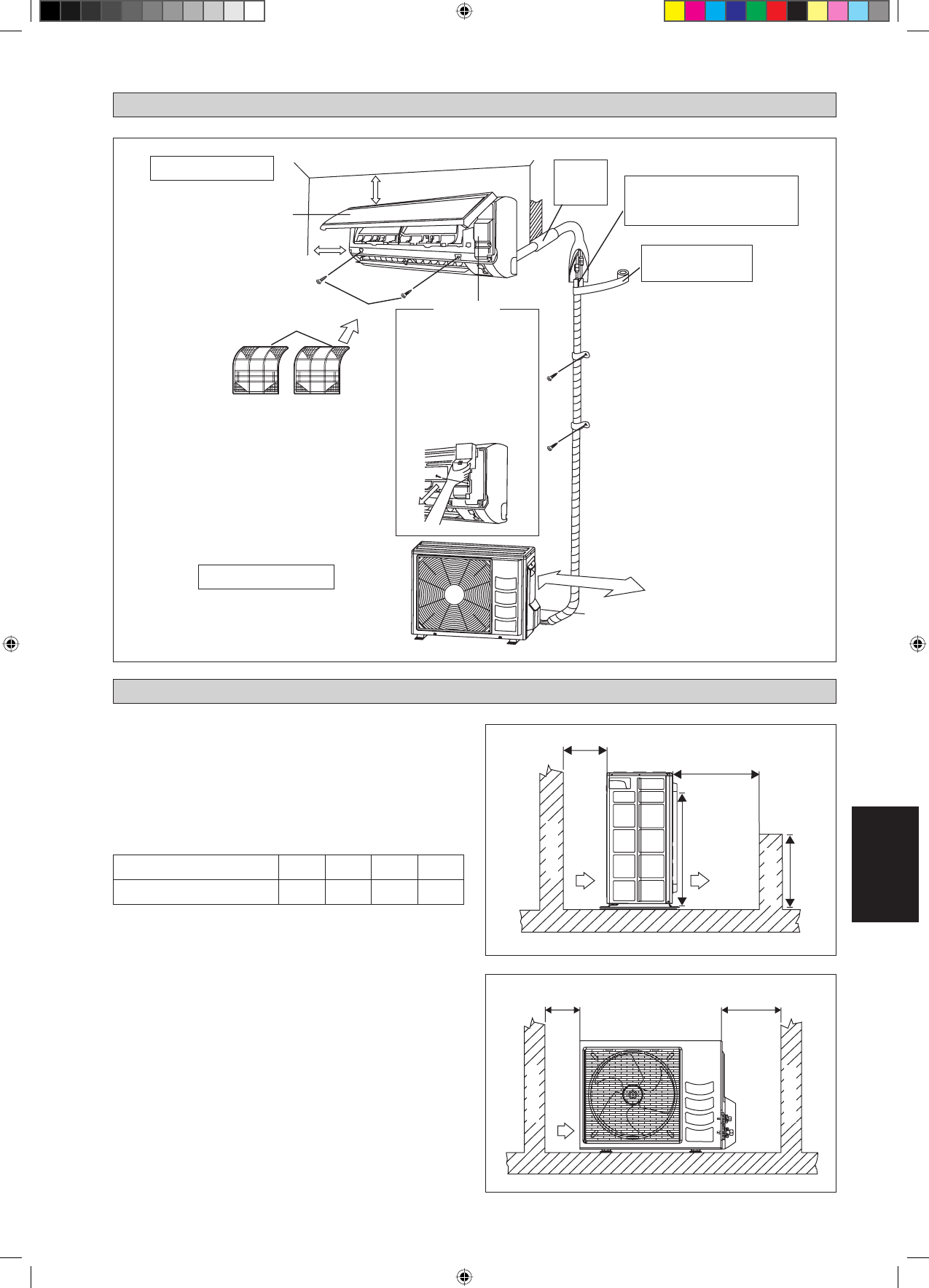
KURULUM ŞEMASI
Duvarlardan 50mm veya daha fazla
(her iki tarafta)
İç Mekan Ünitesi
Hava filtresi
M4 x 12L
Ön panel
Tavandan 75mm veya daha fazla
Dış Mekan Ünitesi
Boru deliği
genişliğini
macunla
kaplayın.
Termal yalıtım borusunu uygun bir
uzunluğa kadar kesin ve bantla sarın,
yalıtım borusunun kesim hattında
hiçbir boşluk kalmadığından emin olun.
Yalıtım borusunu bitirme
bandıyla aşağıdan yukarı
sarın.
Servis kapağı
Servis Kapağını Açma
Servis kapağı açılır/
kapanır tip.
Açma yöntemi
1) Servis kapağı vidalarını
çıkar.
2) Servis kapağını
okun doğrultusunda
çaprazlama şekilde
aşağı çekin.
3) Aşağı çekin.
•
•
Duvardan 500mm
Ha
va Girişi
Ha
va Çık
ışı
A
B
Engel
Engel
H
H/2
7-5
Tü
rk
çe
Ha
va geri dönüşü
S
e
rvis Erişimi
C
D
Engel
Engel
DIŞ ÜNİTENİN KURULUMU
Dış ünite, tahliye edilen sıcak havanın kısa devre yapması
veya hava ak ışının k ısıtlanması engellenecek şek ilde
takılmalıdır. Lütfen kurulum sırasında şekilde gösterilen
mesafeleri muhafaza ediniz. Girişteki hava sıcaklığının dış
hava sıcaklığından daha yüksek olmadığı mümkün olan en
serin yeri seçin (çalışma aralığına bakın).
Kurulum Mesafeleri
Not:
Eğer yüksekliği 2 metreyi aşan bir engel varsa veya
ünitenin üst tarafında bir engel varsa, lütfen yukarıdaki
tabloda belirtilenden daha fazla mesafe bırakınız.
Boyutlar
A
B
C
D
Minimum Mesafe, mm
300
1000
300
500
7 IM-5WMYJR-1114(0)-DAIKIN_TR-425 5
7 IM-5WMYJR-1114(0)-DAIKIN_TR-425 5
12/17/14 3:08:23 PM
12/17/14 3:08:23 PM