Кондиционеры Daikin UATYP-AY1B - инструкция пользователя по применению, эксплуатации и установке на русском языке. Мы надеемся, она поможет вам решить возникшие у вас вопросы при эксплуатации техники.
Если остались вопросы, задайте их в комментариях после инструкции.
"Загружаем инструкцию", означает, что нужно подождать пока файл загрузится и можно будет его читать онлайн. Некоторые инструкции очень большие и время их появления зависит от вашей скорости интернета.

iii
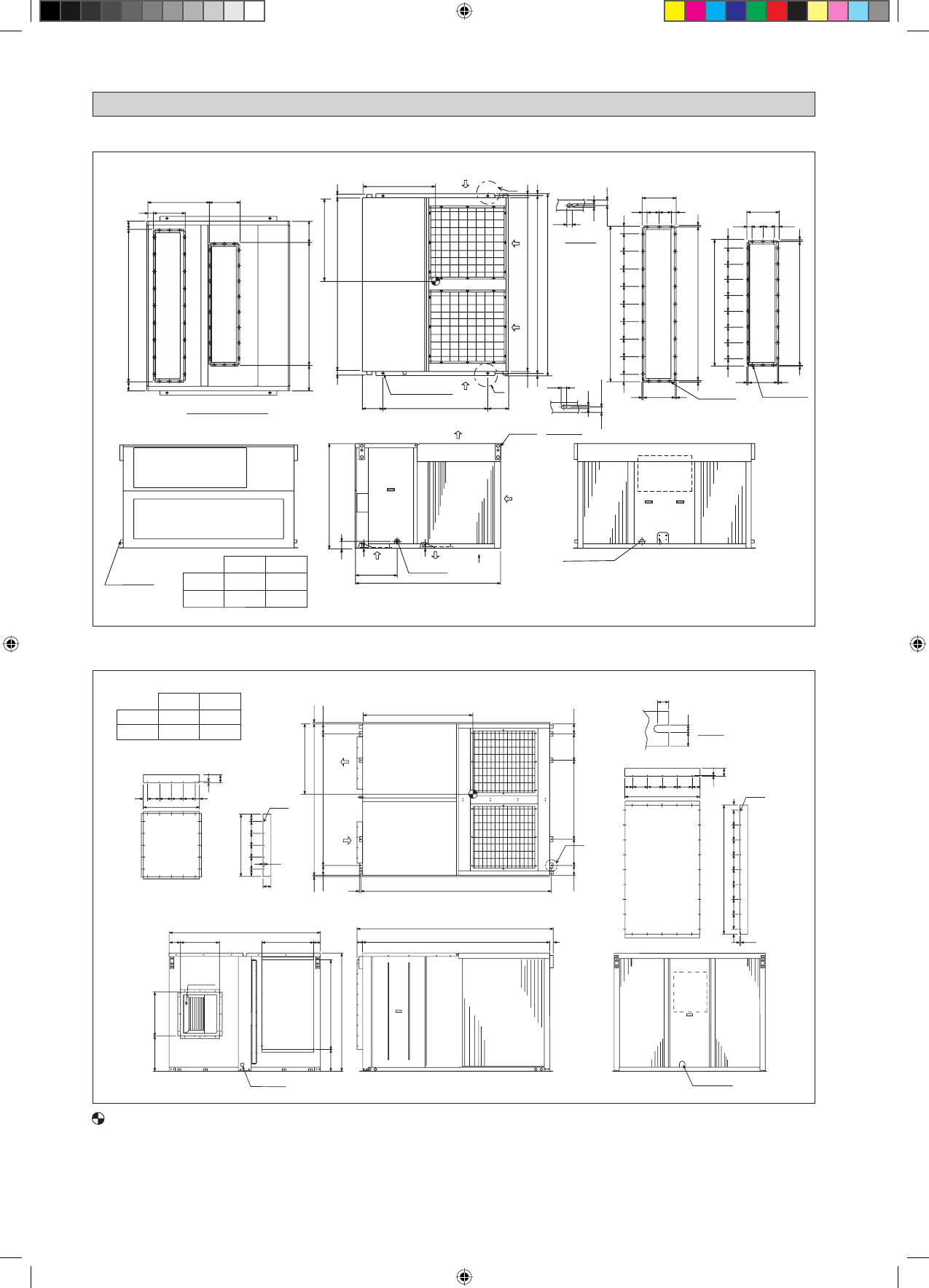
СXEMA И РAЗMEPЫ
UAT(Y)(P)150, 200A
UAT(Y)(P)250, 300A
120
80
120 120 120
Фланец
трубы подачи
воздуха
10
566
43
43
640
12
0
120
12
0
120
80
10
80
80
20-
ø
3
2200
19
12
Подаваемый
воздух
Возвратный
воздух
25
14
4
25
14
4
23
2768
11
46
383
383
14
4
1
4
4
640
51
0
Подаваемый
воздух
Возвратный
воздух
2200
758
566
13
02
17
35
165
100
80
2850
2720
Отверстие
для входа
воздуха в
конденсатор
320
Отверстие
для входа
воздуха в
конденсатор
50
Блок
управления
22,5
27
,5
15
80
10
758
51
28-
ø
3
15
0
15
0
15
0
51
15
0
15
0
15
0
15
0
15
0
Фланец трубы
возврата воздуха
150 150 150 150
80
80
Деталь А
Отверстие для проводов
13
02
A
Отверстие
для входа
воздуха в
конденсатор
10
Дренажная труба R1
l
717
359
79
372
10
4
1
782
10
4
1
432
1
990
264
294
51
51
46
25
25
15
91
10
1
990
2032
2082
46
25
17
8
2
2032
235
235
25
25
15
2032
25
200
200
200
200
200
200
200
200
91
10
10
46
46
140 140
372
359
120 120 59,5
59,5
86
10
18
0
18
0
18
0
18
0
18
0
18
0
18
0
86
10
10
339
10
368
176
2
1
432
14
12
10
77
483
1
200
Возвр
а
тный воздух
По
даваемый воздух
Вид С (Вид снизу)
Монтажные отверстия 4-15X25
A
B
B
Держатель
(4 точки)
Деталь В
Деталь А
Фланец тр
убы возвр
ат
а воздух
а
Фланец тр
убы по
дачи воздух
а
Отверстия 24-
ø
3
Отверстия 22-
ø
3
*
C.O. только
8
8
Возвратный воздух
A
C
Подаваемый воздух
Отверстие для
входа воздуха в
конденсатор
Отверстие для
входа воздуха в
конденсатор
Отверстие для проводов
Блок
управления
Отверстие для
входа воздуха в
конденсатор
Дренажная труба R1
(2) Нисходящий поток
A
B
RT-A
1670
1200
RT-AR
1800
1330
ЦЕНТР ТЯЖЕСТИ
995
960
X
Y
250
1590
1020
300
1630
1020
Y
X
6 IM-RTA-0612(4)DK_RU.indd 3
6 IM-RTA-0612(4)DK_RU.indd 3
6/26/14 3:20:32 PM
6/26/14 3:20:32 PM
Содержание
- 83 СXEMA И РAЗMEPЫ
- 87 ВHИMAHИE; Не подвергайте перегрузке блок.; Если этого не сделать, при включении; ВАЖНО; МЕРЫ ПРЕДОСТОРОЖНОСТИ; РУКОВОДСТВО ПО УСТАНОВКЕ; ПPEДУПPEЖДEHИE; Требования по утилизации; ПГП = Потенциал Глобального Потепления
- 88 ОCTOPOЖHO; Запрещается устанавливать кондиционер на высоте свыше 2000м
- 89 Отстойник для конденсата; УСТАНОВКА БЛОКА
- 90 Пространство вокруг блока
- 91 Крышка бокового входа
- 92 ФИЗИЧЕСКИЕ ДАННЫЕ
- 94 Метод соединения электрических проводов; Проводное соединение пульта дистанционного управления.; СОЕДИНЕНИЕ ЭЛЕКТРОПРОВОДКИ
- 95 Расположение контактов для пульта управления показано ниже.
- 96 РАБОЧИЙ ДИАПАЗОН
- 97 Фильтры устанавливаются перед внутренним теплообменником.; СЕРВИС И ТЕХНИЧЕСКОЕ ОБСЛУЖИВАНИЕ
- 98 МЕРЫ ПО УСТРАНЕНИЮ; Проблема; ОТКАЧКА ВОЗДУХА И ЗАПРАВКА
- 116 Importer for Turkey