Кондиционеры Daikin UATYP-AY1B - инструкция пользователя по применению, эксплуатации и установке на русском языке. Мы надеемся, она поможет вам решить возникшие у вас вопросы при эксплуатации техники.
Если остались вопросы, задайте их в комментариях после инструкции.
"Загружаем инструкцию", означает, что нужно подождать пока файл загрузится и можно будет его читать онлайн. Некоторые инструкции очень большие и время их появления зависит от вашей скорости интернета.

l
iii
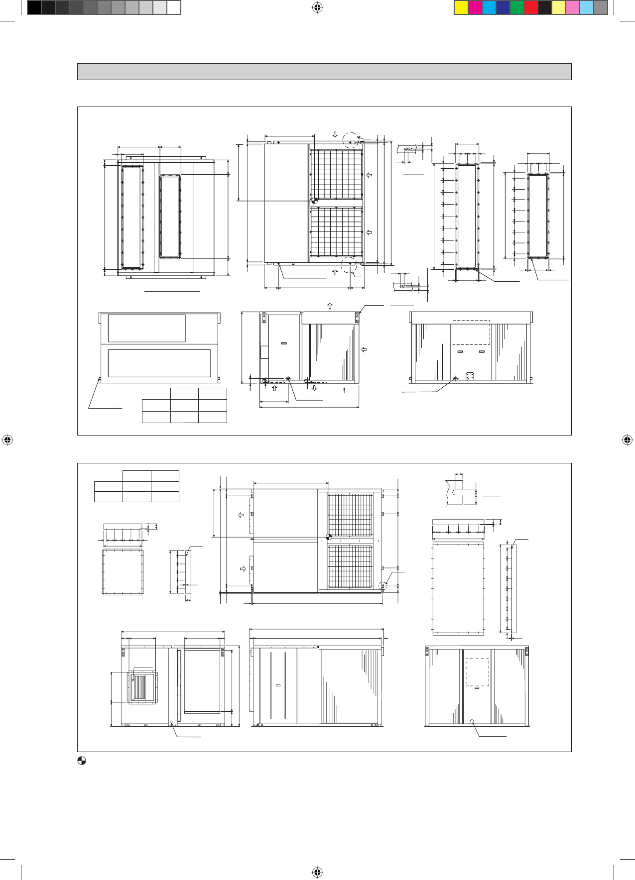
AUSLEGUNG UND ABMESSUNGEN
UAT(Y)(P)150, 200A
UAT(Y)(P)250, 300A
717
359
79
372
104
1782
104
1432
1990
264
294
51
51
46
25
25
15
91
10
1990
2032
2082
46
25
1782
2032
235
235
25
25
15
2032
25
200
200
200
200
200
200
200
200
91
10
46
46
140140
372
359
120120 59,5
59,5
86
10
180
180
180
180
180
180
180
86
10
10
339
10
368
1762
1432
1412
10
77
483
1200
Rückluft
Luftzufuhr
Ansicht C (Unteransicht)
4-15X25 Montageöffnungen
A
B
B
Aufhänger
Detail B
Detail A
(4 stellen)
Rückluftkanal Flansch
Zuluftkanal Flansch
24-ø3 Öffnungen
22-ø3 Öffnungen
*
C.O. nur
8
8
Rückluft
Abfluss R1
A
C
Luftzufuhr
Kondensator
Lufteinlass
Kondensator
Lufteinlass
Verkabelungsöffnung
Steuerkasten
Kondensator
Lufteinlass
120
80
120 120 120
Zuluftkanal
Flansch
10
566
43
43
640
120
120
120
120
80
10
80
80
20-ø3
2200 1912
Luftzufuhr
Rückluft
25
144
25
144
23
2768
1146
383
383
144
144
640
510
Luftzufuhr
Rückluft
2200
758
566
1302
1735
165
100
80
2850
2720
Kondensator
Lufteinlass
Abfluss R1
320
Kondensator
Lufteinlass
50
Steuerkasten
22,5
27,5
15
80
10
758
51
28-ø3
150
150
150
51
150
150
150
150
150
Rückluftkanal
Flansch
150 150 150 150
80
80
Detail A
Verkabelungsöffnung
1302
A
Kondensator
Lufteinlass
10
10
(2) Abwärtsströmung
SCHWERPUNKT
995
960
Y
X
X
Y
250
1590
1020
300
1630
1020
A
B
RT-A
1670
1200
RT-AR
1800
1330
3 IM-RTA-0612(4)DK_DE.indd 3
3 IM-RTA-0612(4)DK_DE.indd 3
6/26/14 3:19:05 PM
6/26/14 3:19:05 PM
Содержание
- 83 СXEMA И РAЗMEPЫ
- 87 ВHИMAHИE; Не подвергайте перегрузке блок.; Если этого не сделать, при включении; ВАЖНО; МЕРЫ ПРЕДОСТОРОЖНОСТИ; РУКОВОДСТВО ПО УСТАНОВКЕ; ПPEДУПPEЖДEHИE; Требования по утилизации; ПГП = Потенциал Глобального Потепления
- 88 ОCTOPOЖHO; Запрещается устанавливать кондиционер на высоте свыше 2000м
- 89 Отстойник для конденсата; УСТАНОВКА БЛОКА
- 90 Пространство вокруг блока
- 91 Крышка бокового входа
- 92 ФИЗИЧЕСКИЕ ДАННЫЕ
- 94 Метод соединения электрических проводов; Проводное соединение пульта дистанционного управления.; СОЕДИНЕНИЕ ЭЛЕКТРОПРОВОДКИ
- 95 Расположение контактов для пульта управления показано ниже.
- 96 РАБОЧИЙ ДИАПАЗОН
- 97 Фильтры устанавливаются перед внутренним теплообменником.; СЕРВИС И ТЕХНИЧЕСКОЕ ОБСЛУЖИВАНИЕ
- 98 МЕРЫ ПО УСТРАНЕНИЮ; Проблема; ОТКАЧКА ВОЗДУХА И ЗАПРАВКА
- 116 Importer for Turkey