Кондиционеры Daikin EWAD-C-SL - инструкция пользователя по применению, эксплуатации и установке на русском языке. Мы надеемся, она поможет вам решить возникшие у вас вопросы при эксплуатации техники.
Если остались вопросы, задайте их в комментариях после инструкции.
"Загружаем инструкцию", означает, что нужно подождать пока файл загрузится и можно будет его читать онлайн. Некоторые инструкции очень большие и время их появления зависит от вашей скорости интернета.

D-EIMAC00604-14EU - 38/156
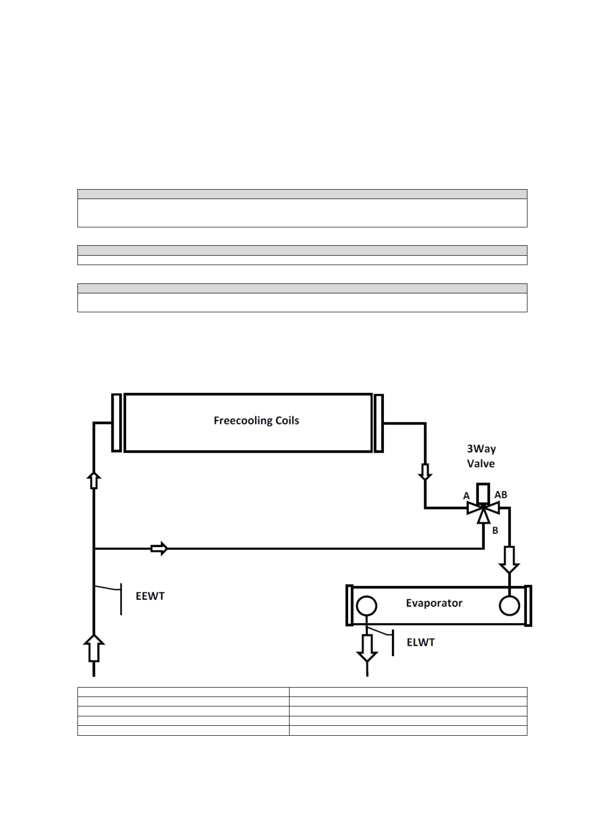
Version d'unité de refroidissement naturel
Les unités de refroidissement naturel disposent de bobines utilisées pour refroidir d’avance le fluide provenant du bâtiment et
augmenter l’efficacité globale en déchargeant les compresseurs jusqu’à leur arrêt complet si les conditions environnementales le
permettent. Le flux d’eau peut être dévié vers les bobines supplémentaires dans le cas où la température ambiante extérieure
chute en dessous de la température des eaux de retour par une vanne trois voies (ou deux vannes unidirectionnelles. Cela
dépend de la dimension du refroidisseur).
Le fonctionnement du refroidissement naturel peut être activé par le commutateur QFC (contrôle de flux de quantité) installé dans
la section de commande du tableau électrique. Une fois que la fonction de Refroidissement naturel est enclenchée, le dispositif de
commande de l’unité gère automatiquement le fonctionnement des vannes d’eau. Le système commande également le
fonctionnement des ventilateurs maximisant ainsi l’effet du refroidissement naturel.
ATTENTION
Le système d’alimentation en eau DOIT être rempli avec le pourcentage correct en Eau et en Glycol.
Il est de la responsabilité de l’utilisateur final de garantir une quantité appropriée du pourcentage Eau/Glycol.
Les dommages sur les bobines de refroidissement naturel provoqués par le gel ne sont pas couverts par la garantie.
ATTENTION
Installer des fluxostats fournis sur le champ avec verrouillage de pompe à eau pour orienter le flux d’eau du système.
ATTENTION
Pour éviter d’endommager les bobines de refroidissement naturel et les tubes de l’évaporateur, installer une crépine
dans les tuyauteries d’entrée d’eau de l’unité. La crépine doit avoir une maille de 0,5 mm.
Il existe deux types de systèmes de contrôle de refroidissement naturel :
Système de refroidissement naturel avec vanne 3 voies
EWAD640CF-XS/XL ÷ EWADC11CF-XS/XL - EWAD600CF-XR ÷ EWADC10CF-XR
Freecooling coils
Bobines de refroidissement naturel
3 Way Valve
Vanne 3 voies
EEWT
Sonde de température entrée eau
Evaporator
Evaporateur
ELWT
Sonde de température sortie eau












