Кондиционеры Daikin EWAD-C-SL - инструкция пользователя по применению, эксплуатации и установке на русском языке. Мы надеемся, она поможет вам решить возникшие у вас вопросы при эксплуатации техники.
Если остались вопросы, задайте их в комментариях после инструкции.
"Загружаем инструкцию", означает, что нужно подождать пока файл загрузится и можно будет его читать онлайн. Некоторые инструкции очень большие и время их появления зависит от вашей скорости интернета.

D-EIMAC00604-14EU - 153/196
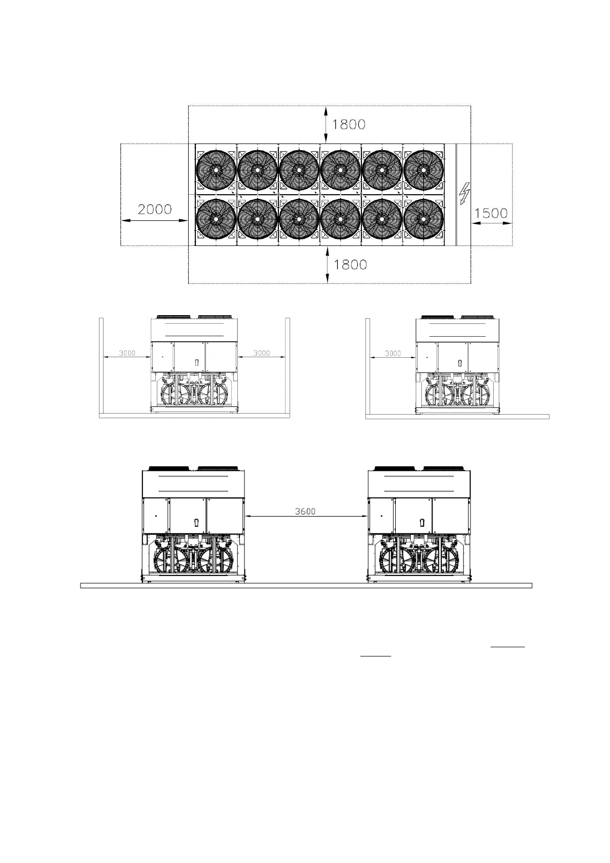
Ábra 4 – minimális térszükséget
.
8. Egy sz
ű
r
ő
vel vagy más olyan beredezéssel, amely
eltávolítja a vízb
ő
l a szilárd részecskéket. A sz
ű
r
ő
használata meghosszabbítja a berendezés élettartamát,
és segít a vízvezeték rendszer jó állapotának
fenntartásában.
9. A párologtatóban egy elektromosf
ű
t
ő
szál és termosztát
van, amely védelmet biztosít a víz megfagyása ellen –
25°C-os küls
ő
h
ő
mérsékletig. A vízvezeték rendszer
minden más a berendezésen kívül található részét védeni
kell a fagy ellen.
10. A h
ő
visszanyer
ő
berendezésb
ő
l öntse ki télen a vizet,
kivéve ha a vízhez a megfelel
ő
arányban etilénglikolt kever.
11. A berendezés cseréje esetén az egész vízvezeték
rendszert ki kell üríteni és meg kell tisztítani az új
berendezés beszerelése el
ő
tt. Az új berendezés
beindítása el
ő
tt ajánlatos a vizet a megfelel
ő
módon
kezelni és a szokásos vizsgálatokat elvégezni.
12. Ha a vízvezetékbe fagyállóként glikolt önt, ügyeljen arra,
hogy az elszívónyomást csökkentse; a berendezés
teljesítménye csökken, és a nyomás esés n
ő
. A gép
minden biztonsági renszerét, pl. fagyálló és a kis nyomás
elleni védelem újra be kell állítani.
13.
A vízvezetékek szigetelése el
ő
tt ellen
ő
rizze, hogy a
vezeték nem folyik-e.












