Кондиционеры Daikin EWAD-C-SL - инструкция пользователя по применению, эксплуатации и установке на русском языке. Мы надеемся, она поможет вам решить возникшие у вас вопросы при эксплуатации техники.
Если остались вопросы, задайте их в комментариях после инструкции.
"Загружаем инструкцию", означает, что нужно подождать пока файл загрузится и можно будет его читать онлайн. Некоторые инструкции очень большие и время их появления зависит от вашей скорости интернета.

D-EIMAC00604-14EU - 148/196
Verzija jedinice za prirodno hla
đ
enje
Jedinice s prirodnim hla
đ
enjem imaju dodatne spirale za prethodno hla
đ
enje teku
ć
ine koja dolazi iz gra
đ
evine i pove
ć
ava ukupnu
efikasnost sustava rastere
ć
enjem kompresora sve dok se posve ne zaustave, ako to uvjeti u okruženju dozvoljavaju. Protok vode
može se podijeliti na dodatne spirale u ku
ć
ištu ako vanjska temperature padne ispod temperature povratne vode uz pomo
ć
trosmjernog ventila (ili dva jednosmjerna ventila. To ovisi o veli
č
ini rashladnog agregata).
Rad sustava za prirodno hla
đ
enje aktivira se sklopkom QFC koja je montirana u upravlja
č
kom dijelu upravlja
č
ke plo
č
e. Kada se
funkcija Prirodno hla
đ
enje aktivira, regulator jedinice automatski upravlja radom ventila za vodu. Sustav upravlja i radom
ventilatora, te na taj na
č
in pove
ć
ava u
č
inak prirodnog hla
đ
enja.
POZOR
Sustav za vodu MORA se napuniti mješavinom s propisanim omjerom vode i glikola.
Krajnji korisnik mora se pobrinuti za propisanu mješavinu vode i glikola..
Ošte
ć
enje na jedinicama za prirodno hla
đ
enje koje nastane zbog smrzavanja nije obuhva
ć
eno jamstvom.
POZOR
Instalirajte proto
č
ne sklopke koje su trenutno dostupne.
POZOR
Kako ne bi došlo do ošte
ć
enja spirala za prirodno hla
đ
enje i ispariva
č
kih cijevi, montirajte sito u cijev za dovod vode na
jedinicu. Sito mora imati veli
č
inu okaca maksimalno 0,5 mm.
Dostupne su dvije vrste upravlja
č
kih sustava za prirodno hla
đ
enje:
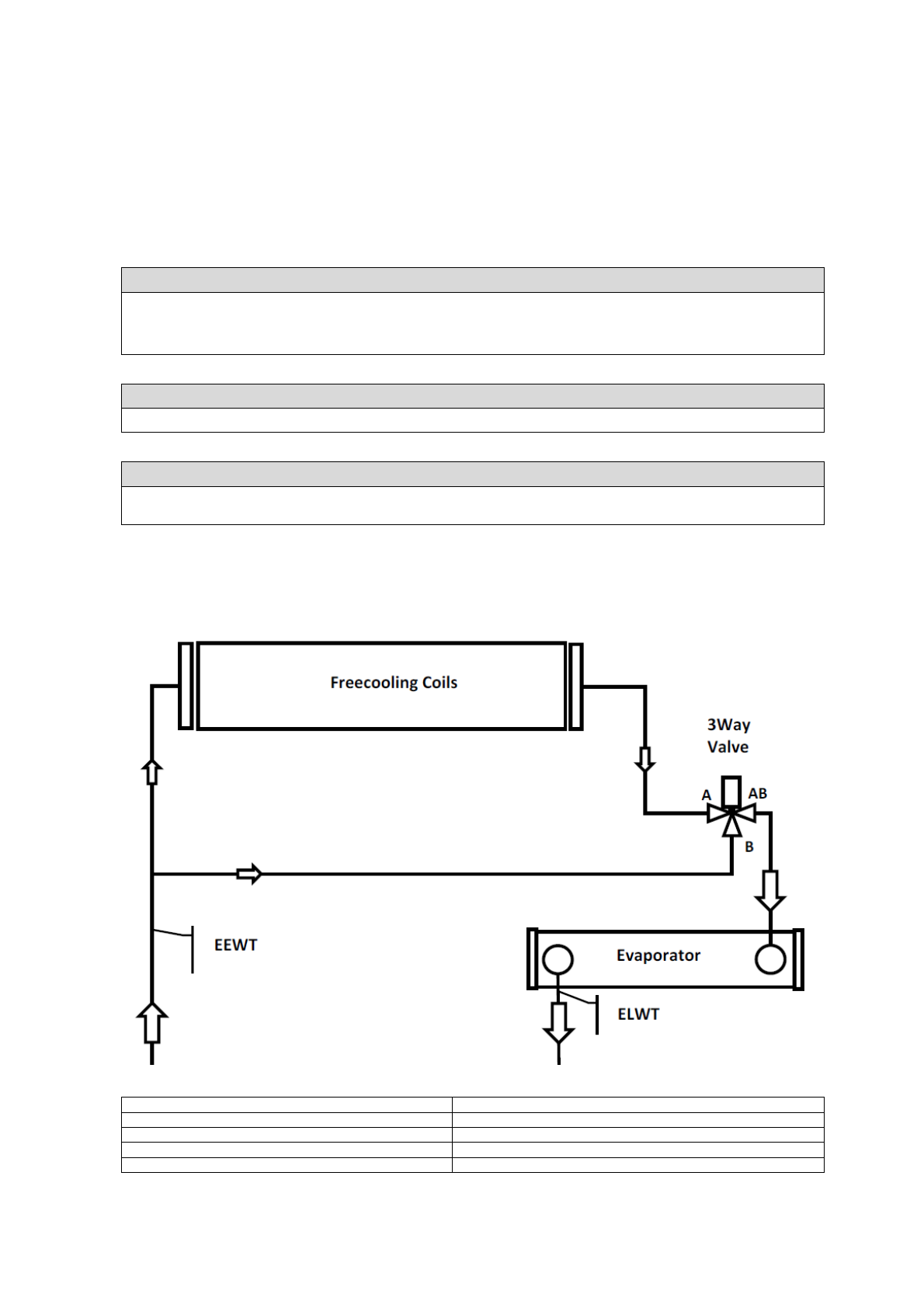
Sustav za prirodno hla
đ
enje s 3-smjernim ventilomm
EWAD640CF-XS/XL ÷ EWADC11CF-XS/XL - EWAD600CF-XR ÷ EWADC10CF-XR
Freecooling coils
Spirale za prirodno hla
đ
enje
3 Way Valve
3-smjerni ventil
EEWT
Temperaturna sonda ulaz vode
Evaporator
Ispariva
č
ELWT
Temperaturna sonda izlaz vode












