Кондиционеры Daikin EWAD-C-SL - инструкция пользователя по применению, эксплуатации и установке на русском языке. Мы надеемся, она поможет вам решить возникшие у вас вопросы при эксплуатации техники.
Если остались вопросы, задайте их в комментариях после инструкции.
"Загружаем инструкцию", означает, что нужно подождать пока файл загрузится и можно будет его читать онлайн. Некоторые инструкции очень большие и время их появления зависит от вашей скорости интернета.

D-EIMAC00604-14EU - 163/196
8. Un filtru sau un dispozitiv pentru reducerea particelelor din
lichid. Folosirea unui filtru cre
ş
te durata de via
ţă
a pompei
contribuind la men
ţ
inerea în bune condi
ţ
ii a sistemului
hidraulic.
9. Vaporizatorul are o rezisten
ţă
electric
ă
, un termostat care
garanteaz
ă
protec
ţ
ia împotriva congel
ă
rii apei la o
temperatur
ă
ambiental
ă
minim
ă
de –25°C. Dar, toate
celelalte tuburi de ap
ă
ş
i dispozitivele hidraulice externe
trebuie protejate împotriva înghe
ţ
ului.
10. Apa din dispozitivul de recuperare al c
ă
ldurii trebuie s
ă
fie
golit
ă
în timpul iernii, cu excep
ţ
ia situa
ţ
iei în care se
adaug
ă
un amestec de etilen glicol în concentra
ţ
ie
adecvat
ă
11. În cazul înlocuirii unit
ăţ
ii, întregul sustem hidraulic trebuie
golit
ş
i cur
ăţ
at înainte de a instala noua unitate. Înainte de
a porni noua unitate, este recomandat
ă
efectuarea unuor
teste regulate
ş
i tratamente chimice adecvate ale apei.
12. Dac
ă
glicolul este ad
ă
ugat în sistemul hidraulic ca
ş
i
protec
ţ
ie împotriva înghe
ţ
ului, fi
ţ
i aten
ţ
i ca presiunea de
aspira
ţ
ie s
ă
fie mai mic
ă
, presta
ţ
iile unit
ăţ
ii vor fi inferioare
iar c
ă
derile de presiune mai mari. Toate sistemele de
protec
ţ
ie ale unit
ăţ
ii, precum antigelul
ş
i protec
ţ
iile
împotriva joasei presiuni vor trebui reglate din nou.
13. Înainte de a izola tuburile de ap
ă
controla
ţ
i s
ă
nu existe
pierderi..
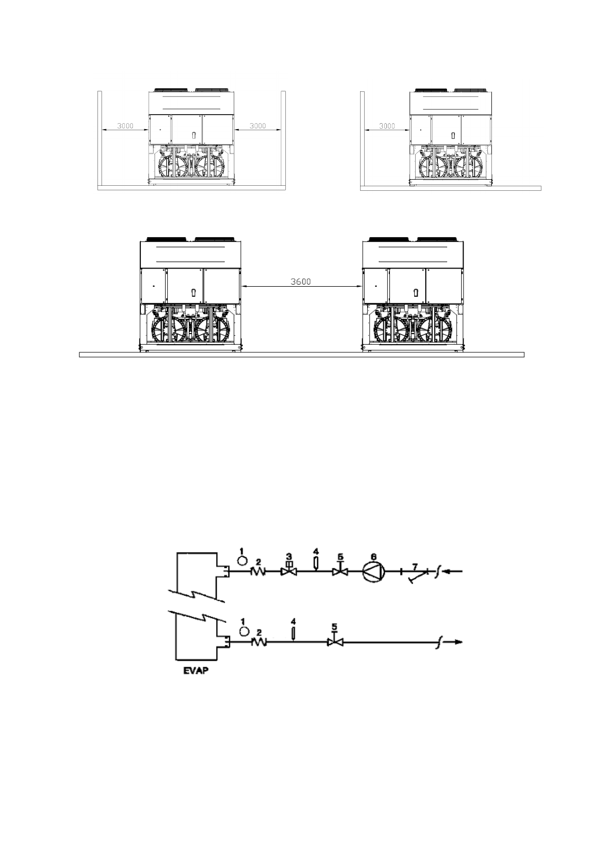
Figura 5 - Conectarea tuburilor de ap
ă
la vaporizator
1. Manometru
2. Conector flexibil
3. Indicator de debit
4. Sond
ă
de temperatur
ă
5. Valv
ă
de izolare
6. Pomp
ă
7. Filtru












