Кондиционеры Daikin EWAD-C-SL - инструкция пользователя по применению, эксплуатации и установке на русском языке. Мы надеемся, она поможет вам решить возникшие у вас вопросы при эксплуатации техники.
Если остались вопросы, задайте их в комментариях после инструкции.
"Загружаем инструкцию", означает, что нужно подождать пока файл загрузится и можно будет его читать онлайн. Некоторые инструкции очень большие и время их появления зависит от вашей скорости интернета.

D-EIMAC00604-14EU - 185/196
Климатична
система
със
свободно
охлаждане
Телата
със
"
свободно
охлаждане
"
разполагат
с
допълнителни
серпентини
,
използвани
за
предварително
охлаждане
на
течността
,
идваща
от
сградата
и
увеличаване
на
общата
ефективност
чрез
разтоварване
на
компресорите
до
пълното
им
спиране
,
ако
климатичните
условия
го
позволяват
.
Водният
контур
може
да
бъде
отклонен
към
допълнителни
серпентини
в
случай
,
че
външната
околна
температура
падне
под
температурата
на
връщащата
се
вода
от
три
-
посочен
клапан
(
или
два
еднопосочни
клапани
.
Това
зависи
от
размера
на
чилъра
).
Функцията
на
свободно
охлаждане
може
да
бъде
активирана
чрез
QFC
превключвател
,
инсталиран
в
контролната
секция
на
електрическия
панел
.
След
като
веднъж
функцията
на
свободно
охлаждане
бъде
активирана
,
контролерът
на
тялото
автоматично
управлява
работата
на
водните
клапани
.
Системата
контролира
също
така
и
работата
на
компресорите
,
като
така
увеличава
до
максимум
ефекта
на
свободно
охлаждане
.
ВНИМАНИЕ
!
Водната
система
ТРЯБВА
да
бъде
напълнена
с
правилното
съотношение
на
вода
и
гликол
.
Крайният
потребител
отговаря
за
поддържането
на
точното
съотношение
на
количеството
вода
/
гликол
.
Повреда
на
серпентините
за
свободно
охлаждане
,
причинена
от
замръзване
,
не
се
покрива
от
гаранцията
.
ВНИМАНИЕ
!
Инсталирайте
превключватели
на
потока
с
вътрешно
блокиране
на
водната
помпа
,
които
да
усещат
водния
поток
на
системата
.
ВНИМАНИЕ
!
За
да
се
предотврати
повреда
на
серпентините
за
свободно
охлаждане
и
тръбите
на
изпарителя
,
инсталирайте
цедка
в
тръбопровода
за
подаване
на
вода
на
тялото
.
Цедката
трябва
да
има
максимум
0,5
мм
мрежа
.
Съществуват
два
типа
системи
за
свободно
охлаждане
:
Система
за
свободно
охлаждане
с
три
-
посочен
клапан
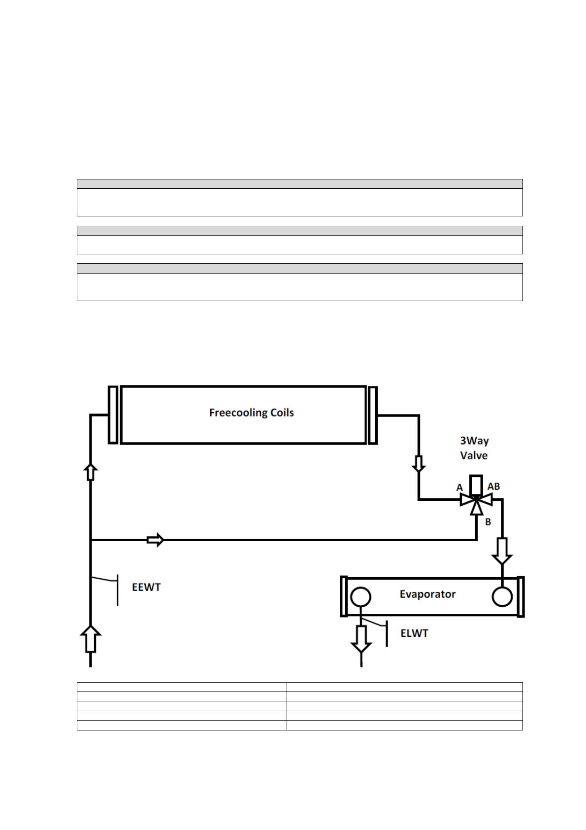
EWAD640CF-XS/XL ÷ EWADC11CF-XS/XL - EWAD600CF-XR ÷ EWADC10CF-XR
Freecooling coils
Серпентини
за
свободно
охлаждане
3 Way Valve
Три
-
посочен
клапан
EEWT
Температурана
сонда
вход
вода
Evaporator
Изпарител
ELWT
Температурна
сонда
изход
вода












