Материнские платы MSI MEG X570 - инструкция пользователя по применению, эксплуатации и установке на русском языке. Мы надеемся, она поможет вам решить возникшие у вас вопросы при эксплуатации техники.
Если остались вопросы, задайте их в комментариях после инструкции.
"Загружаем инструкцию", означает, что нужно подождать пока файл загрузится и можно будет его читать онлайн. Некоторые инструкции очень большие и время их появления зависит от вашей скорости интернета.

16
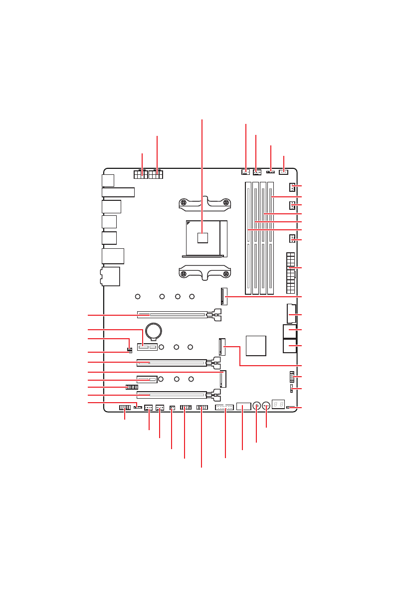
Компоненты материнской платы
BAT1
Компоненты материнской платы
RESET1
JRAINBOW1
JFP2
JFP1
SATA▼1▲2
M2_1
JUSB3
SATA▼3▲4
M2_2
CPU_FAN1
SYS_FAN4
PUMP_FAN1
PCI_E1
PCI_E2
JBAT1
JCI1
PCI_E3
M2_3
PCI_E4
JTPM1
PCI_E5
JRAINBOW2
JUSB4
Процессорный
сокет
CPU_PWR1
CPU_PWR2
SYS_FAN5
JRGB1
JCORSAIR1
JUSB1
POWER1
JUSB2
JAUD1
JPWRLED1
SYS_FAN3
SYS_FAN1
ATX_PWR1
SYS_FAN2
DIMMB2
DIMMB1
DIMMA2
DIMMA1
JUSB5
Содержание
- 7 VII; Connecting the Power Connectors/ Stromanschlüsse
- 159 Содержание
- 160 Установка ОС, драйверов и утилит
- 161 Безопасное использование продукции
- 162 Технические характеристики; Процессор; Слоты расширения
- 163 GPU
- 165 Разъемы на плате
- 166 Разъемы задней
- 167 Эксклюзивные
- 169 Технические характеристики разъема JCORSAIR1; Поддерживаемые продукты; Комплект поставки
- 170 индикатора; Таблица состояний индикатора порта LAN; Порты Аудио; Задняя панель портов ввода/ вывода; ∙ Кнопка очистки данных CMOS
- 171 ∙ Выбор устройства; Автоматическое всплывающее диалоговое окно
- 172 Подключение наушников и микрофона
- 173 Установка антенн
- 175 Процессорный сокет; Процессор AM4
- 176 Слоты DIMM; Рекомендации по установке модулей памяти
- 177 MSI Gaming Series Graphics Card Bolster; Таблица пропускной способности PCIe; Для процессоров AMD RyzenTM 3-го поколения
- 178 Для процессоров AMD RyzenTM 2-го поколения
- 182 JAUD1: Разъем аудио передней панели
- 184 JTPM1: Разъем модуля ТРМ
- 185 вентиляторов; Разъем с управлением постоянным током; Назначение контактов разъема для подключения вентилятора
- 186 JCI1: Разъем датчика открытия корпуса; Использование датчика открытия корпуса
- 187 Сброс настроек BIOS до значений по умолчанию
- 188 JRGB1: Разъем RGB LED; Подключение RGB светодиодных лент
- 189 Подключение адресных RGB светодиодных лент
- 190 JCORSAIR1: Разъем CORSAIR; Подключение вентиляторов CORSAIR с RGB; Подключение светодиодных лент CORSAIR Lighting Node PRO
- 191 Индикаторы отладки EZ; Встроенные индикаторы; JPWRLED1: Индикатор подключения питания
- 192 Таблица шестнадцатиричных символов; Коды ошибок SEC
- 193 Коды ошибок PEI
- 194 Коды ошибок DXE
- 195 Прогресс-коды S3 Resume; Коды ошибок S3 Resume; Прогресс-коды восстановления; Коды состояний ACPI
- 196 Установка Windows® 10
- 197 Настройка BIOS; всегда устанавливайте настройки по умолчанию; Вход в настройки BIOS; Функциональные клавиши
- 198 Сброс BIOS; очистки данных CMOS; Обновление BIOS; Обновление BIOS при помощи M-FLASH
- 199 Обновление BIOS при помощи кнопки Flash BIOS; ROM
- 200 Режим EZ
- 202 Режим разгона; переключатель режимов установки; ∙ Выбор меню BIOS
- 203 Меню OC
- 208 ii
Характеристики
Остались вопросы?Не нашли свой ответ в руководстве или возникли другие проблемы? Задайте свой вопрос в форме ниже с подробным описанием вашей ситуации, чтобы другие люди и специалисты смогли дать на него ответ. Если вы знаете как решить проблему другого человека, пожалуйста, подскажите ему :)