Кондиционеры Daikin FWT-CT - инструкция пользователя по применению, эксплуатации и установке на русском языке. Мы надеемся, она поможет вам решить возникшие у вас вопросы при эксплуатации техники.
Если остались вопросы, задайте их в комментариях после инструкции.
"Загружаем инструкцию", означает, что нужно подождать пока файл загрузится и можно будет его читать онлайн. Некоторые инструкции очень большие и время их появления зависит от вашей скорости интернета.

9-6
VALVE N1
N
L
VALVE N1
N
L
VALVE N1
N
L
3 yollu valf
Röle (220-240V, 10A)
FCU3
3wv
x1
FCU2
3wv
x2
FCU1
3wv
x3
So¤utucu
N
T
S
R
x1x2x3
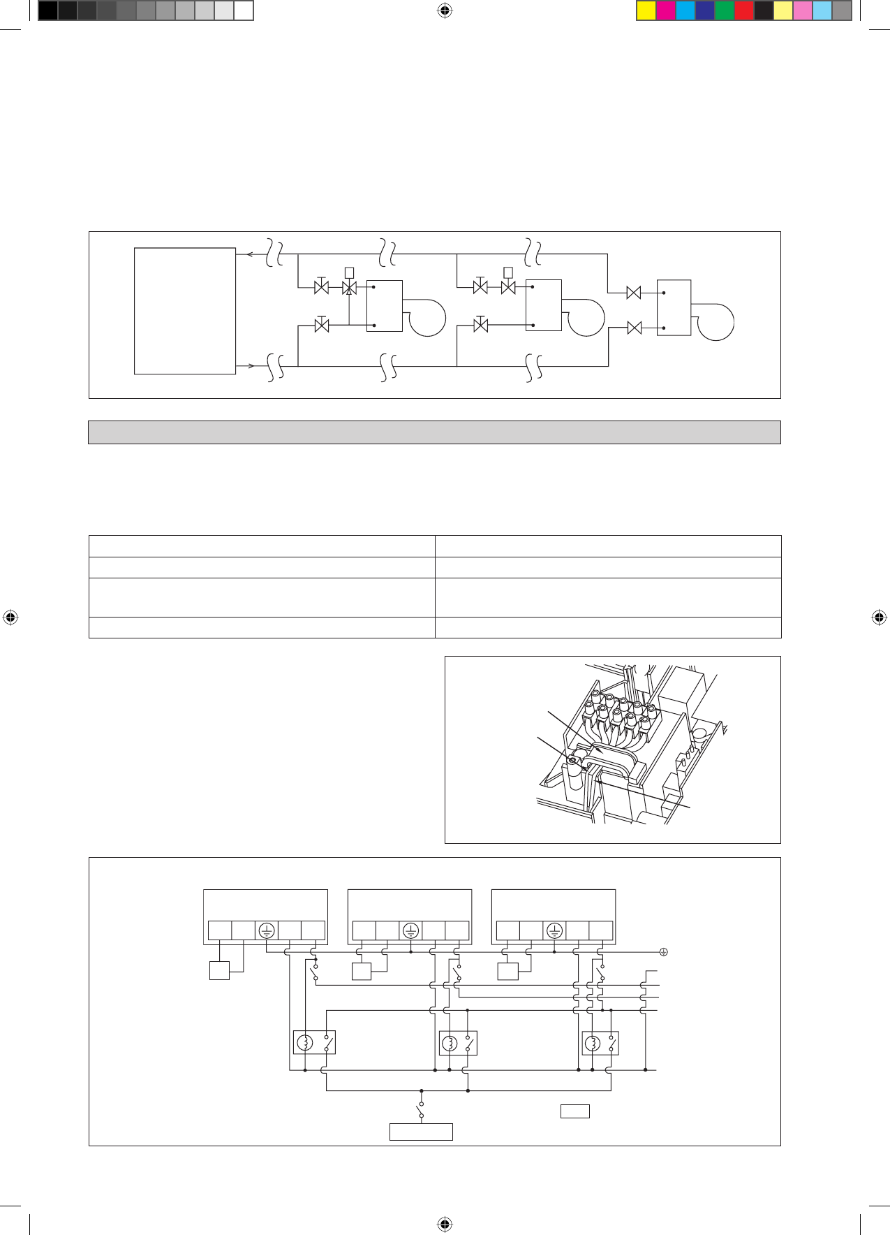
Su Tesisat› Ba¤lant›s›
Su Tesisat› Ba¤lant›s›
‹ç ünitede su ç›k›fl› ve girifli vidal› ba¤lant› vard›r. Hava temizleme sa¤layan su ç›k›fl› ana borusuna tak›lan bir hava tahliye cihaz› mecvuttur.
So¤utulmufl suyu devre d›fl› kalmas› ya da atlayarak dolaflmas› için 3 yollu vanaya ihtiyaç duyulur.
Alan tesisat› için siyah çelik boru, PVC boru ve bak›r boru önerilir.
Yo¤unlaflmay› önlemek için tüm boru ve ba¤lant› tipleri poliüretanla (ARMAFLEX tipi ya da eflde¤eri) yal›t›lmal›d›r.
Kurulumda kirli ya da hasarl› boru ve ba¤lant› kullanmay›n.
Kapasiteyi ve hizmet kolayl›l›¤›n› artt›rmak için sistemde sürgülü vana, dengeleme vanas›, 2 yollu veya 3 yollu valf, filtre, süzgeç, vb. gibi baz›
ana ba¤lant› parçalar›n›n olmas› gerekir.
Sürgülü
Vana
Üç Yollu Vana
Sürgülü
Vana
‹ki Yollu Vana
Sürgülü
Vana
So¤utucu
Sürgülü
Vana
Uygun kontrol
Hatal› kontrol
Sürgülü
Vana
FCU
FCU
FCU
En kötü flekildeki kontrol
Sürgülü
Vana
ELEKTR‹K TES‹SAT BA⁄LANTILARI
ELEKTR‹K TES‹SAT BA⁄LANTILARI
Modeller
Modeller
FWT02/03/04/05/06
FWT02/03/04/05/06
Voltaj aral›¤›
Voltaj aral›¤›
**
220V – 240V/1Ph/50Hz +
!
Besleme kablosu çap›
Besleme kablosu çap›
*
mm
mm
2
Kondüktörlerin say›s›
Kondüktörlerin say›s›
1,5
3
Tavsiye edilen geciktirici sigorta
A
Tavsiye edilen geciktirici sigorta
A
2
Tüm kablolar s›k›ca ba¤lanmal›d›r.
Bütün kablolar›n su tesisat› ya da fan motorunun herhangi
bir hareketli parças› ile temas› engellenmelidir.
Belgili tanımlık baglama tel -e dogru belgili tanımlık ev
içinde olan birim -meli var olmak mengene üstünde
belgili tanımlık tel mengene aynı derecede göstermek
içinde belgili tanımlık biçim.
Enerji kablosu en düfl ük gereklilik olan H07RN-F ’a efl it
olmalı ve koruyucu boru içerisinde kullanılmalıdır.
•
•
•
•
Kablo K›skac›
Ba¤lant› Kablosu
Elektrik Kablosu
ÖNEML‹:
ÖNEML‹:
*
Bu de¤erler yaln›zca bilgi içindir. Yerel ve/veya ulusal yönetmelik ve düzenlemeleri uygun olarak kontrol
edilmeleri ve seçilmeleri gerekir. Bunlar ayn› zamanda kurulum türüne ve kullan›lan ileticilerin boyutuna
tabiidirler.
**
Uygun voltaj aral›¤› ünitedeki etiket verisinden kontrol edilmelidir.
En az 3mm temas ay›rmayla besleme fl ebekesinde tüm kutuplarda ba¤lant› kesilmelidir.
FWT02/03/04/05/06
FWT02/03/04/05/06
3WV
9 IM-WMJW-0312(0)DKdenv_TR.indd 6
9 IM-WMJW-0312(0)DKdenv_TR.indd 6
5/21/12 11:18:34 AM
5/21/12 11:18:34 AM