Кондиционеры Daikin FWT-CT - инструкция пользователя по применению, эксплуатации и установке на русском языке. Мы надеемся, она поможет вам решить возникшие у вас вопросы при эксплуатации техники.
Если остались вопросы, задайте их в комментариях после инструкции.
"Загружаем инструкцию", означает, что нужно подождать пока файл загрузится и можно будет его читать онлайн. Некоторые инструкции очень большие и время их появления зависит от вашей скорости интернета.

5-6
VALVE N1
N
L
VALVE N1
N
L
VALVE N1
N
L
FWT02/03/04/05/06
FCU3
3wv
x1
FCU2
3wv
x2
FCU1
3wv
x3
N
T
S
R
x1x2x3
3WV
Valvola A 3 Vie
Relè (220-240V, 10A)
ALLACCIAMENTI ELETTRICI
Collegamento Dei Condotti D’acqua
L’unità interna dispone di raccordi
fi
lettati per lo scarico e l’ingresso dell’acqua. Vi è uno s
fi
atatoio, montato sul collettore
dello scarico dell’acqua, per lo spurgo dell’aria.
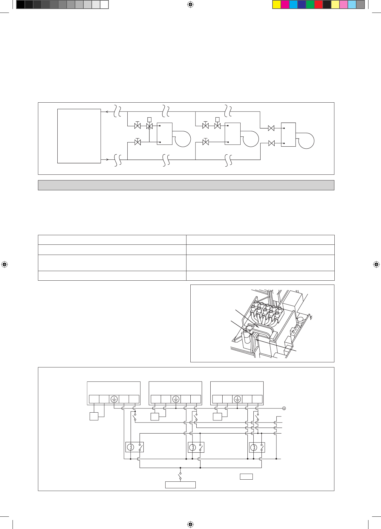
Per disattivare o bypassare il ciclo d’acqua refrigerata è necessaria a 3 vie.
Per l’installazione, si consiglia di utilizzare tubi neri in acciaio, in politrene, in PVC e in rame.
Tutti i tipi di tubi e raccordi devono essere isolati da poliuretano (ARMAFLEX o equivalente) per evitare condensa.
Non utilizzare condotti e accessori contaminati o danneggiati.
È necessario utilizzare dei componenti accessori per migliorare la capacità e la semplicità di servizio , come valvole a saracinesca,
valvole di compensazione, a 2 o 3 vie,
fi
ltri, ecc.
Valvola a
saracinesca
Valvola a 3 vie
Valvola a
saracinesca
Valvola a 2 vie
Valvola a
saracinesca
Refrigeratore
Valvola a
saracinesca
Controllo Buono
Controllo Cattivo
Valvola a
saracinesca
FCU
FCU
FCU
Controllo Peggiore
Valvola a
saracinesca
IMPORTANTE :
* I valori sopra indicati hanno solo un carattere indicativo. Devono quindi essere veri
fi
cati e scelti in
modo da rispondere alle leggi vigenti e ai regolamenti locali. Essi variano anche a seconda del tipo di
installazione e alle dimensioni dei conduttori.
** L’appropriato intervallo di tensione deve essere confrontato con i dati della targa dell’apparecchio.
Tutti i poli devono essere scollegati nella rete di alimentazione, con una separazione di contatto di
almeno 3mm.
Modello FWT02/03/04/05/06
Voltaggi ammessi**
220V – 240V/1Ph/50Hz +
!
Dimensioni del cavetto di alimentazione*
mm
2
Numero di conduttori
1,5
3
Tempo consigliato ritardo fusibile
A
2
Tutti i
fi
li devono essere collegati saldamente.
I
fi
li non devono toccare né i condotti del refrigerante,
ne il compressore né gli organi rotanti del motore della
ventola.
I legare di collegamento all’unità dell’interno devono essere
premuti sui morsetti di legare come appare la
fi
gura.
Il cavo di alimentazione deve essere equivalente a
H07RN-F il quale rappresenta il requisito minimo, e deve
essere inserito in un tubo di protezione.
•
•
•
•
Morsa Elettrica
Cavo Collegameno
Cavo Di
Alimentazione
Refrigeratore
5 IM-WMJW-0312(0)DKdenv_IT.indd 6
5 IM-WMJW-0312(0)DKdenv_IT.indd 6
5/21/12 9:27:02 AM
5/21/12 9:27:02 AM