Варочная панель Gorenje IT 310 KR - инструкция пользователя по применению, эксплуатации и установке на русском языке. Мы надеемся, она поможет вам решить возникшие у вас вопросы при эксплуатации техники.
Если остались вопросы, задайте их в комментариях после инструкции.
"Загружаем инструкцию", означает, что нужно подождать пока файл загрузится и можно будет его читать онлайн. Некоторые инструкции очень большие и время их появления зависит от вашей скорости интернета.

31
В
случае
установки
индукционной панели над
ящиком мебели в данном
ящике
не
должны
находиться
мелкие
предметы
и
бумаги,
которые могли бы забить
отверстия вентиляторов и
ограничить
охлаждение
индукционной панели.
У випадку, коли індукційну
панель встановлено над
ящиком меблів, у цьому
ящику
не
сміють
знаходитися
дрібні
предмети і папери, які
могли б забити отвори
вентиляторів і обмежити
охолоджування індукційної
панелі.
above case, there cant be
small pieces or sheets paper,
because
ventilation
inlets
could be stocked.
Falls
die
Induktionsplatte
über
einer
Schublade
angebracht ist, dann in ihr
keine kleine Gegenstände
oder Papierstücke geladen
werden können, welche die
Saugöffnungen
der
Ventilatoren verstopfen und
die
Kühlung
der
Induktionsplatte
verhindern
könnten.
uszkodzenia.
W przypadku zamontowania
płyty
indukcyjnej
nad
szufladą, nie mogą być w
niej
umieszczone
drobne
przedmioty
oraz
papiery,
które mogą zatkać otwór
ssący
wentylatora
i
ograniczyć chłodzenie płyty
indukcyjnej.
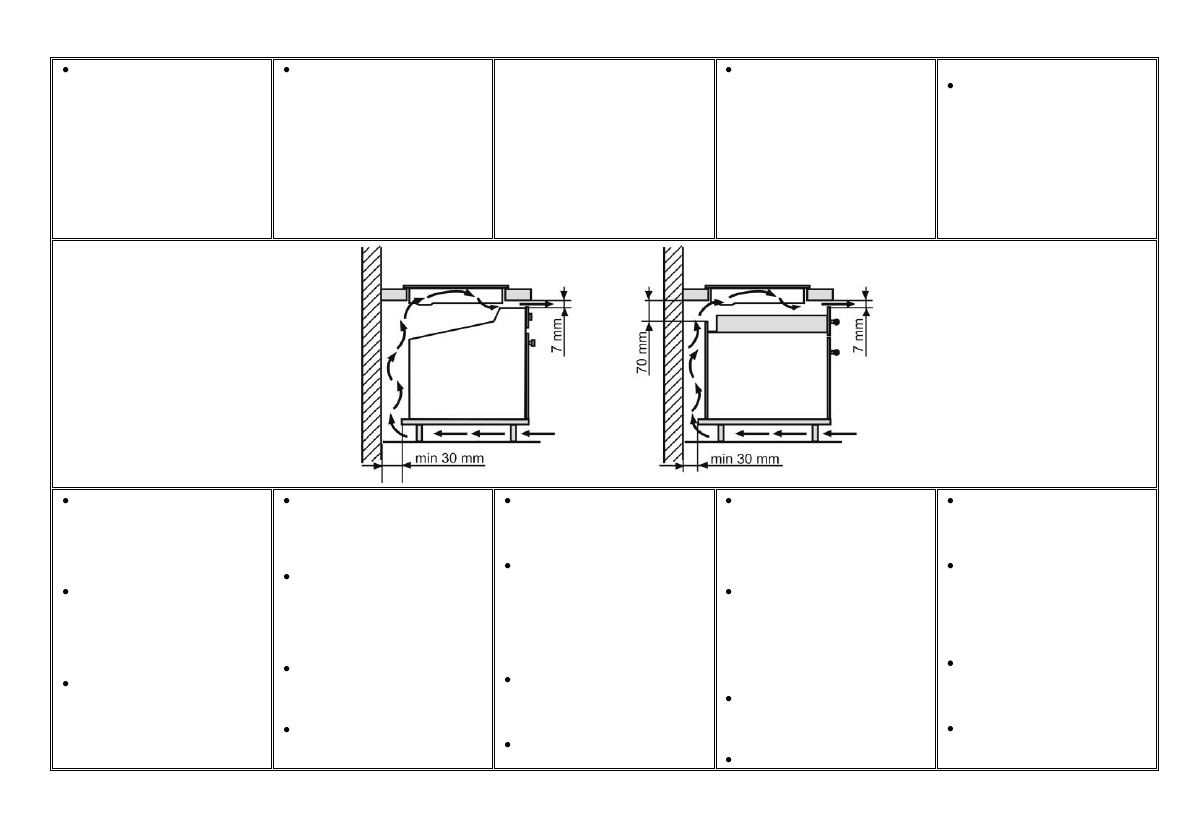
Задняя
стенка
нижнего
шкафчика должна быть в
месте
отверстия
в
столешнице открыта, чтобы
был
обеспечен
обмен
воздуха.
Надо убрать переднее ребро
жесткости мебели, чтобы
возникло отверстие миним. 7
мм под столешницей по всей
ширине потребителя для
протекания воздуха .
Возможные ребра жесткости
под
столешницей
надо
убрать хотя бы в области
столешницы.
Расстояние
между
индукционной
варочной плитой и кухонной
Задня стінка нижньої шафки
повинна бути у області вирізу
у стільниці відкритою, щоб
було забезпечно циркуляцію
повітря.
Необхідно усунути переднє
армування меблів, щоб було
створено отвір як мінімум 7
мм для циркуляції повітря під
стільницею по усій ширині
споживача.
Можливе
армування
під
робочою
стільницею
слід
усунути мінімально у зоні
стільниці.
Віддаль
між
індукційною
варильною
поверхнею
і
кухонними
шафками
або
The rear wall of lower
cabinet in the area of cut out
has to be open, for to ensure
the air exchange.
The front reinforcement of
furniture should be removed,
for to enable of creation of
opening for passage of air, at
least in a height of 7 mm
under the sink over the
whole length of appliance.
The eventual reinforcements
under the sink should be
removed at least in the area
of sink.
The distance between the
induction cooking plate and
Die Hinterwand des unteren
Schrankes
muss
in
dem
Bereich des Ausschnitts des
Arbeitbrettes offen gehalten, für
den
Luftaustausch
zu
ermöglichen.
Die vorderen Streben des
Möbels
müssen
entfernt
werden, um eine Öffnung für
Luftzufuhr, mindestens 7 mm
unter
dem
Arbeitsbrettes
entlang der ganzen Breite des
Geräts, zu schaffen.
Die eventuellen Streben unter
dem
Arbeitsbrett
müssen,
wenigstens im Bereich des
Arbeitsbrettes, entfernt werden.
Die Entfernung zwischen der
Tylna ściana szafki pod płytą
musi być otwarta, tak aby
zabezpieczyć
wymianę
powietrza.
Należy
usunać
przednią
poprzeczkę szafki, tak aby
powstał pod blatem na całej
szerokosci urządzenia otwór
dla
przepływu
powietrza
wy
noszący conajmniej 7 mm
Ewentualne
poprzeczki
szafki, powinny być usunięte,
przynajmniej w obrysie blatu
roboczego.
Odległości
między
indukcyjną płytą grzewczą a
meblami
kuchennymi,
Характеристики
Остались вопросы?Не нашли свой ответ в руководстве или возникли другие проблемы? Задайте свой вопрос в форме ниже с подробным описанием вашей ситуации, чтобы другие люди и специалисты смогли дать на него ответ. Если вы знаете как решить проблему другого человека, пожалуйста, подскажите ему :)