Материнские платы ASRock Z390 - инструкция пользователя по применению, эксплуатации и установке на русском языке. Мы надеемся, она поможет вам решить возникшие у вас вопросы при эксплуатации техники.
Если остались вопросы, задайте их в комментариях после инструкции.
"Загружаем инструкцию", означает, что нужно подождать пока файл загрузится и можно будет его читать онлайн. Некоторые инструкции очень большие и время их появления зависит от вашей скорости интернета.

English
Z390 Extreme4
1
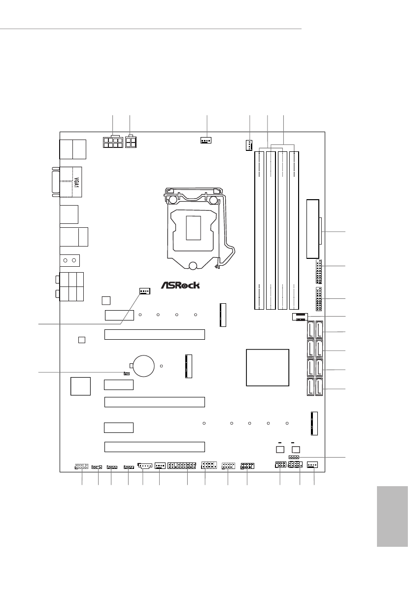
Motherboard Layout
I n t e l
Z 3 9 0
D
D
R
4
_
A
2
(
6
4
b
it
, 2
8
8
-p
in
m
o
d
u
le
)
D
D
R
4
_
A
1
(
6
4
b
it
, 2
8
8
-p
in
m
o
d
u
le
)
D
D
R
4
_
B
2
(
6
4
b
it
, 2
8
8
-p
in
m
o
d
u
le
)
D
D
R
4
_
B
1
(
6
4
b
it
, 2
8
8
-p
in
m
o
d
u
le
)
AT X 1 2 V 1
A
T
X
P
W
R
1
L A N
P C I E 2
To p :
R J - 4 5
T
o
p
:
Central/Bass
C
e
n
te
r:
R
E
A
R
S
P
K
T
o
p
:
L
IN
E
IN
C
e
n
te
r:
F
R
O
N
T
B
o
tt
o
m
:
O
p
ti
c
a
l
S
P
D
IF
B
o
tt
o
m
:
M
IC
IN
P C I E 4
H D L E D R E S E T
P L E D P W R B T N
PA N E L 1
1
1
S P K _ P L E D 1
C O M 1
1
1
H D _ A U D I O 1
Z 3 9 0 E X T R E M E 4
P C I E 6
S
A
T
A
3
_
2
_
3
S
A
T
A
3
_
0
_
1
S
A
T
A
3
_
A
1
_
A
2
P C I E 1
R o H S
7
9
1 0
1 1
1 2
1 3
1 4
U S B _ 1 _ 2
1
2 0
U S B _ 3 _ 4
1
1 9
2 1
2 8
3 0
S
A
T
A
3
_
4
_
5
1
6
5
1 7
P
S
2
K
e
y
b
o
a
r
d
/M
o
u
s
e
C M O S
B a t t e r y
P C I E 3
M
2
_
1
M
2
_
2
C T 2
C T 2
C T 3
C T 3
C T 4
C T 4
C T 5
T B 1
1
2 4
3
U
S
B
3
_
7
_
8
1
1 8
1 6
C P U _ FA N 1
8
2 2
1
T P M S 1
P C I E 5
C T 1
C T 1
C H A _ FA N 1 / W P
U l t r a M . 2
P C I e G e n 3 x 4
C H A _ FA N 2 / W P
C P U _ FA N 2 / W P
C H A _ FA N 3 / W P
4
U
S
B
3
_
5
_
6
1
2 5
C L R M O S 1
1
L A N
2 3
U l t r a M . 2
P C I e G e n 3 x 4
U S B 3 1 _ T C _ 2
U S B 3 . 1 G e n 1
T: U S B 3
B : U S B 4
U
S
B
3
.1
G
e
n
1
T
: U
S
B
1
B
: U
S
B
2
U S B 3 . 1 G e n 2
T: U S B 3 1 _ TA _ 1
B : U S B 3 1 _ T C _ 1
AT X 1 2 V 2
2
R G B _ L E D 2
1
A D D R _ L E D 1
1
2 6
R G B _ L E D 1
1
2 7
B I O S _ A 1
B I O S _ B 1
B I O S
B I O S
B I O S _ A _ L E D 1
B I O S _ B _ L E D 1
2 9
M
2
_
3
C T 1
DIS
PL
AY
1
H
D
M
I1
P u r i t y
S o u n d 4
T M
P M _ O C
1
1 5
Характеристики
Остались вопросы?Не нашли свой ответ в руководстве или возникли другие проблемы? Задайте свой вопрос в форме ниже с подробным описанием вашей ситуации, чтобы другие люди и специалисты смогли дать на него ответ. Если вы знаете как решить проблему другого человека, пожалуйста, подскажите ему :)

