Варочная панель Gorenje IT 310 AC - инструкция пользователя по применению, эксплуатации и установке на русском языке. Мы надеемся, она поможет вам решить возникшие у вас вопросы при эксплуатации техники.
Если остались вопросы, задайте их в комментариях после инструкции.
"Загружаем инструкцию", означает, что нужно подождать пока файл загрузится и можно будет его читать онлайн. Некоторые инструкции очень большие и время их появления зависит от вашей скорости интернета.

31
VĚTRÁNÍ
VETRANIE
WENTYLACJA
ВЕНТИЛЯЦИЯ
ВЕНТИЛЯЦІЯ
DŮLEŅITÉ!
Dbejte následujících pokynů pro
instalaci spotřebiče:
Nedostatečný
přístup
chladícího vzduchu může
vést
k omezení
funkce
spotřebiče, případně k jeho
pońkození.
V
případě umístění indukční
desky nad zásuvkou, nesmí
v
ní být umístěny drobné
p
ředměty a papíry, které by
mohly ucpat sací otvory
ventilátorů a omezit chlazení
indukční desky.
DÔLEŅITÉ !
Dbajte následujúcich pokynov
pre inńtaláciu spotrebiča:
Nedostatečný
prístup
chladiaceho vzduchu môže
byť
príčinou
obmedzení
funkcie spotrebiča, prípadne
k
jeho pońkodeniu.
V
prípade
umiestnenia
indukčnej
dosky
nad
zásuvkou, nesmú v nej byť
umiestnené drobné predmety
a papiere, ktoré by mohli
upchať
sacie
otvory
ventilátorov
a
obmedziť
chladenie indukčné dosky.
WAŻNE OSTRZEŻENIE!
Należy
przestrzegać
poniższych
wskazówek,
dotycząch instalacji urządzenia:
Niedostateczna
ilość
powietrza do chłodzenia,
może
prowadzić
do
nieprawidłowego
działania
urządzenia lub do jego
uszkodzenia.
W przypadku zamontowania
płyty
indukcyjnej
nad
szufladą, nie mogą być w
niej
umieszczone
drobne
przedmioty
oraz
papiery,
które mogą zatkać otwór
ssący
wentylatora
i
ograniczyć chłodzenie płyty
indukcyjnej.
ВАЖНО!
Соблюдайте
следующие
указания
по
установке
прибора.
Недостаточный
доступ
охлаждающего
воздуха
может
стать
причиной
ограничения
функциональности прибора
или его повреждения.
В
случае
установки
индукционной панели над
ящиком мебели в данном
ящике
не
должны
находиться
мелкие
предметы
и
бумаги,
которые могли бы забить
отверстия вентиляторов и
ограничить
охлаждение
индукционной панели.
ВАЖЛИВО!
Дотримуйте
наступні
вказівки
по
установці
приладу.
Недостатній
доступ
охолоджуючого
повітря
може
стати
причиною
обмеження
функціональності приладу
або його пошкодження.
У випадку, коли індукційну
панель встановлено над
ящиком меблів, у цьому
ящику
не
сміють
знаходитися
дрібні
предмети і папери, які
могли б забити отвори
вентиляторів і обмежити
охолоджування індукційної
панелі.
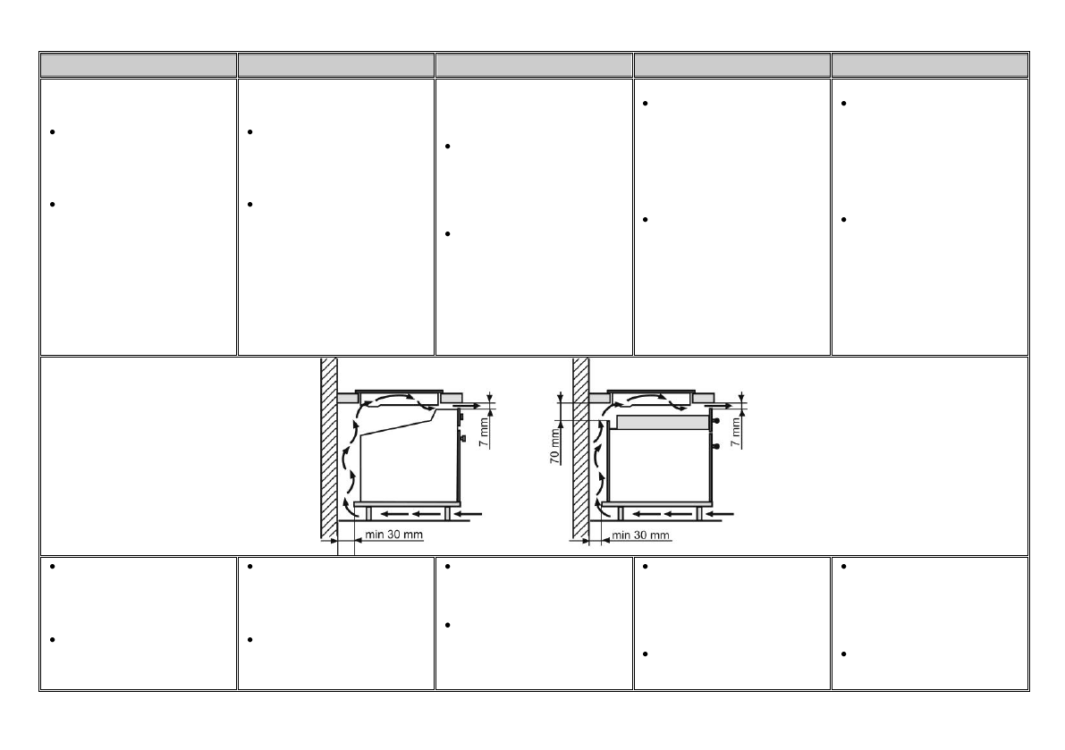
Zadní stěna spodní skříňky
musí být v oblasti výřezu
pracovní desky otevřena,
aby
byla
zabezpečena
výměna vzduchu.
Je třeba odstranit přední
výztuhu nábytku, aby vznikl
otvor pro průchod vzduchu
alespoň 7mm pod pracovní
Zadná stena spodnej skrinky
musí byť v oblasti výrezu
pracovnej dosky otvorená,
aby
bola
zabezpečená
výmena vzduchu.
Je treba odstránit prednú
výztuhu nábytku, aby vznikol
otvor pre priechod vzduchu
min. 7 mm pod pracovnou
Tylna ściana szafki pod płytą
musi być otwarta, tak aby
zabezpieczyć
wymianę
powietrza.
Należy
usunać
przednią
poprzeczkę szafki, tak aby
powstał pod blatem na całej
szerokosci urządzenia otwór
dla
przepływu
powietrza
Задняя
стенка
нижнего
шкафчика должна быть в
месте
отверстия
в
столешнице
открыта,
чтобы
был
обеспечен
обмен воздуха.
Надо
убрать
переднее
ребро жесткости мебели,
чтобы возникло отверстие
Задня
стінка
нижньої
шафки повинна бути у
області вирізу у стільниці
відкритою,
щоб
було
забезпечно
циркуляцію
повітря.
Необхідно усунути переднє
армування меблів, щоб
було створено отвір як












