Котел котёл Baxi SLIM HPS 1.80 A7114600 - инструкция пользователя по применению, эксплуатации и установке на русском языке. Мы надеемся, она поможет вам решить возникшие у вас вопросы при эксплуатации техники.
Если остались вопросы, задайте их в комментариях после инструкции.
"Загружаем инструкцию", означает, что нужно подождать пока файл загрузится и можно будет его читать онлайн. Некоторые инструкции очень большие и время их появления зависит от вашей скорости интернета.

4.1
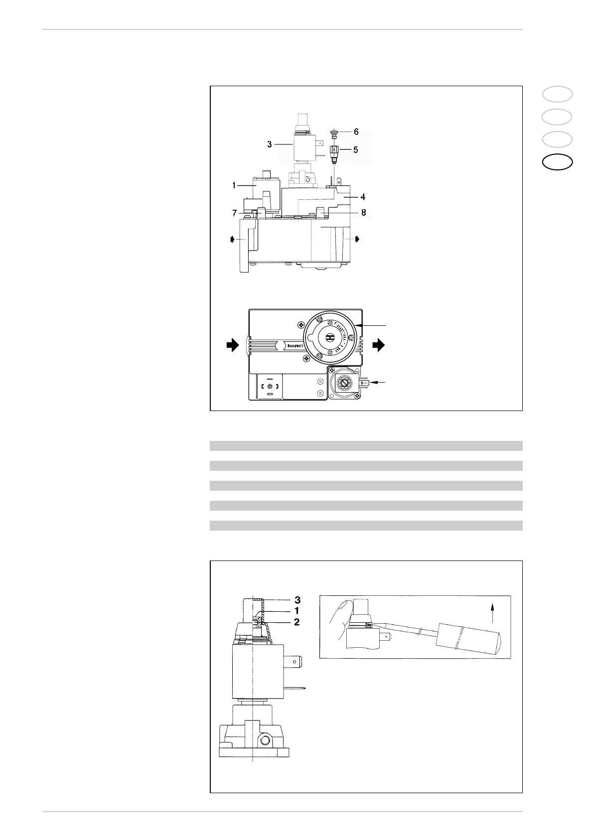
GAS VALVE
(fig. 10)
“Slim HPS”
boilers come equipped stan-
dard with a HONEYWELL VR 4605 CB gas
valve (for
“1.80 - 1.99”
models) and VR 420
PB gas valve (for
“1.110”
models).
When the boiler is ignited the first time, it is
always recommended to bleed the piping by
using the pressure outlet upstream from
the valve (7 fig. 10 - 9 fig. 2).
4.2
GAS VALVE ADJUSTMENT
Calibration of the operating pressures is
done by BAXI in the factory. Consequently
they should not be altered. Only when you
switch to another type of gas (butane or
propane) is it permitted to alter the opera-
ting pressures.
It is essential that this operation be car-
ried out exclusively by authorized techni-
cal staff.
When the working pressures have been
adjusted, reseal the regulators.
When the gas pressures are to be reset,
this must be done following a set order: first
the maximum pressure and then the mini-
mum.
4.2.1
Nominal pressure
adjustment
(fig. 11)
Connect the manometer to the pressure
test point located on the burner manifold,
turn boiler ON, and wait until a steady read-
ing on the manometer is obtained. Compare
this reading with that shown in
Table 1
. If any
correction is required, use an 8mm spanner
on the high pressure adjuster (1) turning
clockwise to increase, counter-clockwise to
decrease the pressure.
4.2.2
Reduced pressure
adjustment
(fig. 11)
Turn the boiler OFF, and remove the plug
from the High - Low Coil. Turn the boiler ON
and wait until a steady reading on the
manometer is obtained. Compare this read-
ing with that shown in
Table 1
.
If any correction is required, use a 3.5 mm
flat blade screwdriver to rotate the low
adjust screw (2), turning clockwise to
increase and counter-clockwise to decrease
the pressure. When all adjustments are
completed, replace the plug on the coil, and
the cap over the adjustment screws.
4.4
GAS CONVERSION
To convert to butane gas (G30) or propane
gas (G31), the main nozzles must be repla-
ced with another supplied in the boiler gas
conversion kit, pressure regulator (3...20
mbar) with pressure regulator (4...37
mbar) and apply the LPG adaptor code
6248303 onto the gas valve (5 fig. 10) for
4
USE AND MAINTENANCE
KEY
1
EV1 coil
3
Pressure regulator 3...20 mbar
4
EV2 coil
5
LPG adaptor
6
Plastic cap
7
Pressure inlet upstream
8
Pressure inlet
downstream
9
EV1- EV2 coil
Fig. 10
Slim HPS
1.80
1.99
1.110
Methane - G20
Burner max. pressure
mbar
9.1
9.3
9.3
Burner min. pressure
mbar
4.6
4.7
4.6
Butane - G30
Burner max. pressure
mbar
25.4
25.1
25.6
Burner min. pressure
mbar
12.3
12.5
12.6
Propane - G31
Burner max. pressure
mbar
30.2
32.7
34.3
Burner min. pressure
mbar
16.1
16.6
16.6
TABLE 1
1
2
HONEYWELL VR 4605 CB
HONEYWELL VR 420 PB
9
3
53
FR
IT
RUS
ENG
KEY
1
Maximum pressure adjusting nut
2
Minimum pressure adjusting screws
3
Plastic cap
Fig. 11