Котел котёл Baxi SLIM HPS 1.80 A7114600 - инструкция пользователя по применению, эксплуатации и установке на русском языке. Мы надеемся, она поможет вам решить возникшие у вас вопросы при эксплуатации техники.
Если остались вопросы, задайте их в комментариях после инструкции.
"Загружаем инструкцию", означает, что нужно подождать пока файл загрузится и можно будет его читать онлайн. Некоторые инструкции очень большие и время их появления зависит от вашей скорости интернета.

The boiler must be installed in a fixed loca-
tion and only by specialized and qualified
f irms in compliance wit h all ins tructions
contained in this manual.
Furthermore, the installation must be in
accordance with current standards and
regulations.
2.1
BOILER ROOM
The
“Slim HPS”
boilers with a rating of
more than 35 kW must be equipped with a
technical room whose dimensions and
requirements correspond to the current
safety standards.
The minimum height of the boiler room
must comply with what is indicated in fig. 3
in relation to the overall thermal capacity.
The minimum distance between the walls of
the room and the external points of the boi-
ler (right, lef t side, rear) must not be less
than 0.60 m.
It is possible to place a number of appara-
tus next to each other, on condition that all
the safety and control devices can be
easily reached. In addition, to circulate air
in the room, air vents must be made on
the outside walls for which the surface
area must never be less than 3,000 cm
2
and 5,000 cm
2
for gas with a density
greater than 0.8.
2.1.1
Handling
Once the boiler is in its place of installation
and the packaging has been removed, pro-
ceed as follows if it must be moved (fig. 3/a):
– remove the casing cover;
– attach the lif ting brackets (located on the
rear of the boiler) and fasten it in place
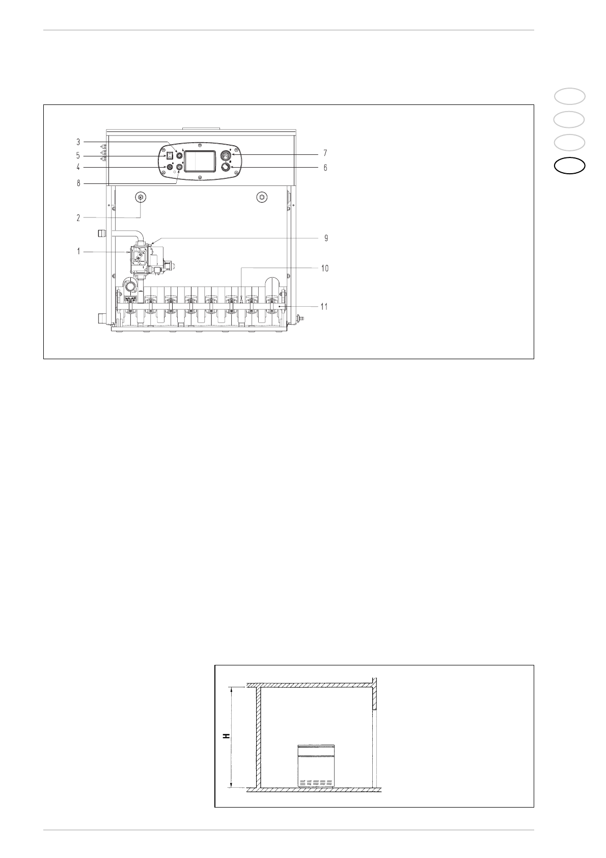
1.4
MAIN COMPONENTS
Fig. 2
KEY
1
Gas valve with coil assembly
2
1/2” bulb holder
3
Safety stat
4
Lock out reset button
5
Main switch
6
Regulation sta with double contact
7
Thermometer
8
Smoke stat
9
1/8” pressure test point (
“1.110”
models)
10
1/8” pressure test point
11
Burner manifold
2
INSTALLATION
Fig. 3
H in relation to the overall
thermal capacity:
– not greater than 116 kW: 2.00 m
– greater than 116 kW and less
than 350 kW: 2.30 m
– greater than 350 kW and less
580 kW: 2.60 m
– greater than 580 kW: 2.90 m
47
FR
IT
RUS
ENG