Кондиционеры Daikin EWLD-J-SS - инструкция пользователя по применению, эксплуатации и установке на русском языке. Мы надеемся, она поможет вам решить возникшие у вас вопросы при эксплуатации техники.
Если остались вопросы, задайте их в комментариях после инструкции.
"Загружаем инструкцию", означает, что нужно подождать пока файл загрузится и можно будет его читать онлайн. Некоторые инструкции очень большие и время их появления зависит от вашей скорости интернета.

D-EIMWC01004-14EU - 126/190
ANGLI
Č
TINA - P
Ů
VODNÍ NÁVOD
Tato p
ř
íru
č
ka je d
ů
ležitým podkladem pro kvalifikovaný personál, ale není jejím ú
č
elem ho nahradit.
EWWD120J-SS ~ 280J-SS
EWLD 110J-SS ~ 265J-SS
EWWD310J-SS ~ 560J-SS
EWLD 290J-SS ~ 530J-SS
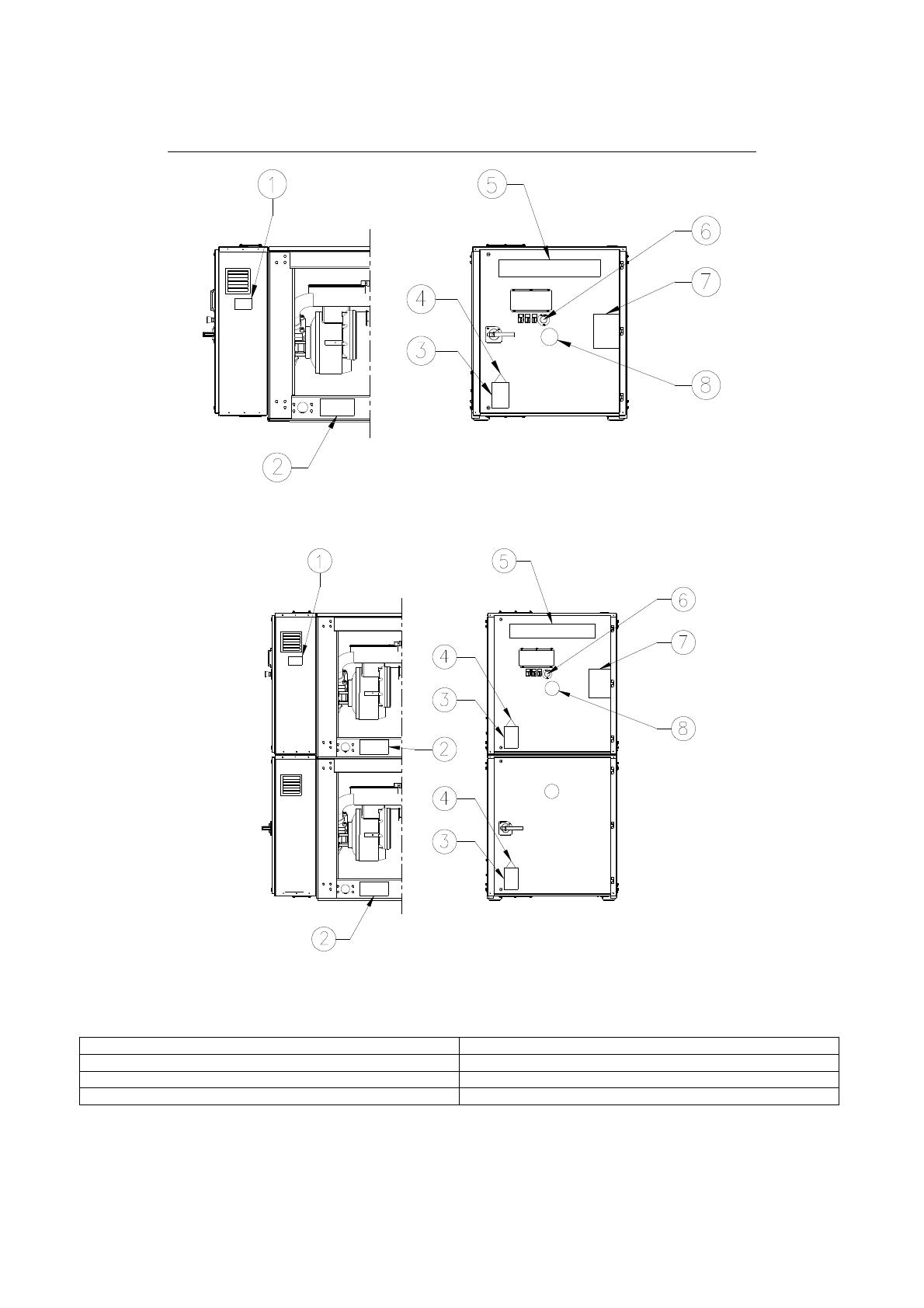
Identifikace na štítku
1 – Data na štítku jednotky
5 – Logo výrobce
2 – Návod ke zvedání
6 – Nouzové zastavení
3 – Varování p
ř
ed nebezpe
č
ným nap
ě
tím
7 – Symbol neho
ř
lavého plynu
4 – Symbol elektrického nebezpe
č
í
8 – Typ plynu












