Котел Buderus Logamax GB072-14 - инструкция пользователя по применению, эксплуатации и установке на русском языке. Мы надеемся, она поможет вам решить возникшие у вас вопросы при эксплуатации техники.
Если остались вопросы, задайте их в комментариях после инструкции.
"Загружаем инструкцию", означает, что нужно подождать пока файл загрузится и можно будет его читать онлайн. Некоторые инструкции очень большие и время их появления зависит от вашей скорости интернета.
Загружаем инструкцию

3
Сведения о котле
Logamax plus – 6 720 803 788 (2012/10)
12
3.9
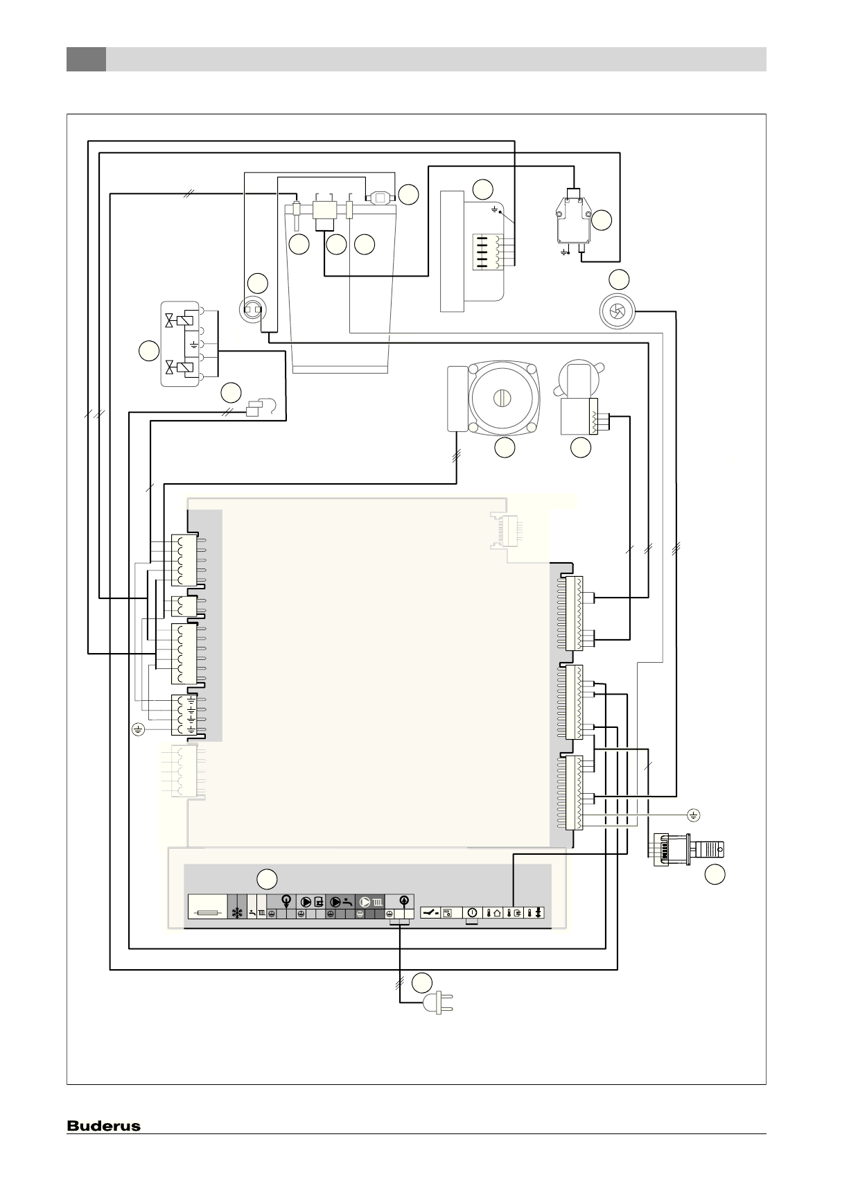
Электрическая схема
Рис. 6
L1
L2
N
N
N
3
LR LR
FS
FR
230V
OUT
230V
IN
N
L
N
L
N
L
N
L
N
L
Fuse
5AF
EMS
EMS
1
6
4
4
4
6 720 646 606-05 .1O
7
6
8
9
10
11
12
13
15
14
5
4
2
Содержание
- 2 Logamax plus
- 3 Содержание; Подключение котла проводом с сетевым штекером 22
- 5 Комплект поставки
- 6 Сведения о котле; Использование по назначению; Рис. 2 Заводская табличка; Вид котла
- 7 Описание котла
- 8 Размеры и минимальные расстояния; Облицовка
- 9 Конструкция прибора
- 13 Электрическая схема
- 14 Таб. 4 Разводка клемм на клеммной колодке для внешнего; Fuse
- 15 Технические данные
- 16 Состав конденсата; Вещество; Таб. 6 Состав конденсата сильно зависит от качества топлива.
- 17 Важные указания
- 18 Установка котла; Качество воды (вода для наполнения и подпитки); Рис. 7 Требования к воде для заполнения; Проверка емкости расширительного бака; Требования к помещению для монтажа
- 19 Предварительный монтаж трубопроводов; Рис. 9 Монтажный шаблон
- 20 Монтаж котла; Снятие кожуха
- 21 Рис. 14 Установка крана для заполнения и слива
- 22 Рис. 15 Подключение конусного сифона; Подключение газоотводной арматуры; Подача воды; Эксплуатация котла без бака-водонагревателя; Электрические соединения; Общие указания; Предохранители
- 25 Ввод в эксплуатацию
- 26 Показания на дисплее; Рис. 21 Показания на дисплее; Перед вводом в эксплуатацию; Включение
- 27 Включение отопления; Рис. 23 Индикация работы отопления; Настройка приготовления горячей воды; Рис. 27 Индикация приготовления горячей воды
- 28 Рис. 28 Индикация экономичного режима; Настройка пульта управления
- 29 Проведение термической дезинфекции; Общие положения
- 31 Отопительный насос; Рис. 34 Диаграмма насоса; Защита насоса от заклинивания; ▶ Обычно это требуется для того, чтобы снизить шум
- 32 Управление из сервисного меню; Рис. 35 Элементы управления; Настройки в сервисном меню; Организация, ответственная за монтаж
- 33 Обзор сервисных функций; Сервисные функции; Таб. 10 Меню информации
- 40 Перенастройка на другой вид газа; Переоборудование на другой вид газа
- 41 или O; Таб. 16 Показание номинальной теплопроизводительности в
- 42 Проверка подаваемого давления газа
- 43 Замеры дымовых газов; теплопроизводительностью); Таб. 19 Показание номинальной теплопроизводительности в
- 44 Описание различных рабочих шагов
- 46 Проверка/техобслуживание
- 49 Индикация рабочих сообщений и неисправностей; Рис. 56 Пример индикации рабочего кода; Устранение неисправностей
- 50 Индикация рабочих сообщений и неисправностей; Рабочие сообщения и неисправности, показываемые на дисплее; Код; Таб. 23 Рабочие сообщения; Описание
- 51 Таб. 25 Блокирующие неисправности
- 52 Таб. 26 Запирающие неисправности
- 54 Неисправности, не показываемые на дисплее; Неисправности котла; Таб. 27 Неисправности без индикации на экране
- 55 Акт сдачи котла в эксплуатацию; для каждого котла заполнить собственный протокол!
- 57 Приложение; Характеристики датчиков
- 58 Отопительная кривая; max