Кондиционеры Daikin FTXN-M - инструкция пользователя по применению, эксплуатации и установке на русском языке. Мы надеемся, она поможет вам решить возникшие у вас вопросы при эксплуатации техники.
Если остались вопросы, задайте их в комментариях после инструкции.
"Загружаем инструкцию", означает, что нужно подождать пока файл загрузится и можно будет его читать онлайн. Некоторые инструкции очень большие и время их появления зависит от вашей скорости интернета.

5-3
Français
B
A
Q
P
R
S
D
O
K
L
L
M
N
F
E
C
G
H
I
J
N
3,0
U
T
V
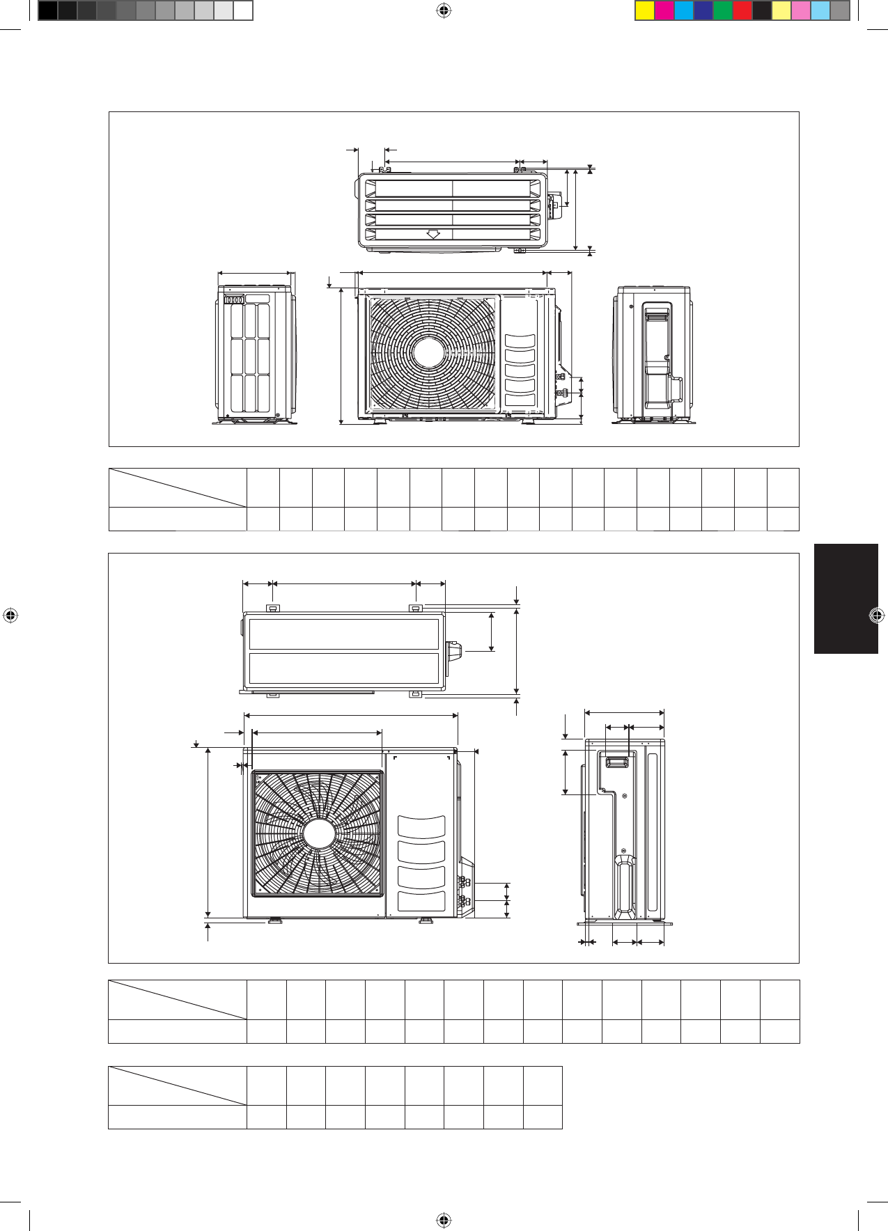
Unité Extérieure [RXN/RK]
Toutes les dimensions sont données en mm
Dimension
Modèle
A
B
C
D
E
F
G
H
I
J
K
L
M
N
50/60
855
730
328
520
179
46
93
149
101
113
603
126
164
15
Toutes les dimensions sont données en mm
E
F
B
H
I
N
Q
KL
G
A
M
C
D
J
2,0
O
P
Dimension
Modèle
A
B
C
D
E
F
G
H
I
J
K
L
M
N
O
P
Q
25/35
550 658
51
11
273
16
14
470
96
93
94
60
14
133
8
10
299
Dimension
Modèle
O
P
Q
R
S
T
U
V
50/60
34
23
362
73
75
8
67
7
5 IM-5WMYJ-1113(2)DK_FR-39396B.i3 3
5 IM-5WMYJ-1113(2)DK_FR-39396B.i3 3
4/23/14 12:04:50 PM
4/23/14 12:04:50 PM
Содержание
- 114 МЕРЫ ПРЕДОСТОРОЖНОСТИ; РУКОВОДСТВО ПО УСТАНОВКЕ; ПPEДУПPEЖДEHИE
- 116 РИСУНОК УСТАНОВКИ; Kомнатного блок; Наружный блок; Одна сторона обращена к стене
- 117 Прокладка дренажной системы.; Установочные габариты; П р и н а л и ч и и л ю б о г о п р е п я т с т в и я; Размер
- 118 УСТАНОВКА КОМНАТНОГО БЛОКА
- 119 Отвод воды; Прицепите кулачковые захваты нижней рамы к установочной плате.; ОCTOPOЖHO
- 120 ухудшением качества функционирования.; Допустимая длина трубопровода; Модель
- 121 Дюйм; ПРОВЕДЕНИЕ ТРУБОПРОВОДОВ ХЛАДАГЕНТА
- 122 ЭЛЕКТРИЧЕСКАЯ СХЕМА СОЕДИНЕНИЙ; Прикрепите изоляционный рукав
- 123 Осторожно; Операция заправки
- 124 Операция; ВКЛ; Модуль Охлаждения/Обогревательный Насос; долгий звуковой сигнал; Дополнительная информация; коротких звуковых сигнала
- 126 ВОЗДУШНЫЙ ФИЛЬТР; Биологический фильтр следует использовать во время; сухого периода; на эксплуатационные характеристики устройства.; Работа с загрязненными фильтрами:
- 127 СЕРВИС И ТЕХНИЧЕСКОЕ ОБСЛУЖИВАНИЕ; Узлы
- 128 МЕРЫ ПО УСТРАНЕНИЮ; Неисправность; Длительный перерыв в использовании кондиционера
- 133 Importer for Turkey