Кондиционеры Daikin EWYQ-F-XL - инструкция пользователя по применению, эксплуатации и установке на русском языке. Мы надеемся, она поможет вам решить возникшие у вас вопросы при эксплуатации техники.
Если остались вопросы, задайте их в комментариях после инструкции.
"Загружаем инструкцию", означает, что нужно подождать пока файл загрузится и можно будет его читать онлайн. Некоторые инструкции очень большие и время их появления зависит от вашей скорости интернета.

D-EIMHP00604-14EU - 8/208
ENGLISH - ORIGINAL INSTRUCTIONS
This manual is an important supporting document for qualified personnel but it is not intended to replace such personnel.
Thank you for purchasing this chiller
READ
THIS
MANUAL
CAREFULLY
BEFORE
INSTALLING AND STARTING UP THE UNIT.
IMPROPER INSTALLATION COULD RESULT IN
ELECTRIC SHOCK, SHORT-CIRCUIT, LEAKS, FIRE
OR OTHER DAMAGE TO THE EQUIPMENT OR
INJURE TO PEOPLE.
THE
UNIT
MUST
BE
INSTALLED
BY
A
PROFESSIONAL OPERATOR/TECHNICIAN.
UNIT STARTUP HAS TO BE PERFORMED BY
AUTHORIZED AND TRAINED PROFESSIONAL.
ALL
ACTIVITIES
HAVE
TO
BE
PERFORMED
ACCORDING TO LOCAL LAWS AND REGULATION.
UNIT
INSTALLATION
AND
START
UP
IS
ABOSOLUTELY FORBIDDEN IF ALL INSTRUCTION
CONTAINED IN THIS MANUAL ARE NOT CLEAR.
IF CASE OF DOUBT CONTACT THE
MANUFACTURER REPRESENTATIVE FOR ADVICE
AND INFORMATION.
Description
The unit you bought is an Heat Pump a machine aimed to cool
/ heat water (or water-glycol mixture) within the limits described
in the following. The unit operation is based on vapour
compression, condensation and evaporation according to
reverse Carnot cycle.The main components are:
-
Scroll compressor to rise the refrigerant vapour pressure
from evaporating pressure to condensing pressure.
-
Evaporator, where the low pressure liquid refrigerant
evaporates to cool the water. In “Cooling Mode” and
where the refrigerant condensate to heat the water in
“Heating Mode”.
-
Coil, where high pressure vapour condensate rejecting
heat removed from the chilled water in the atmosphere
thanks to an air cooled heat exchanger. In cooling mode
in heating mode the low pressure refrigerant evaporate
taking heat from low temperature ambient.
-
Expansion valve allowing to reduced the pressure of
condensed liquid from condensation pressure to
evaporation pressure.
General Information
All units are delivered with wiring diagrams, certified
drawings, nameplate; and DOC (Declaration Of
Conformity); these documents show all technical data
for the unit you have bought and they
MUST BE CONSIDERED ESSENTIAL DOCUMENTS OF
THIS MANUAL
In case of any discrepancy between this manual and the
equipment’s documents please refer to on board documents.
In case of any doubt contact the manufacturer representative.
The purpose of this manual is to allow the installer and the
qualified operator to ensure proper installation, commissioning
and maintenance of the unit, without any risk to people,
animals and/or objects.
Receiving the unit
The unit must be inspected for any possible damage
immediately upon reaching final place of installation. All
components described in the delivery note must be inspected
and checked.
In case the unit be damaged, do not remove the damaged
material and immediately report the damage to the
transportation company and request they inspect the unit.
Immediately report the damage to the manufacturer
representative, a set of photographs are helpful in recognizing
responsibility
Damage must not be repaired before the inspection of the
transportation company representative.
Before installing the unit, check that the model and power
supply voltage shown on the nameplate are correct.
Responsibility for any damage after acceptance of the unit
cannot be attributed to the manufacturer.
Operating limits
Storing
Environmental conditions must be within the following limits:
Minimum ambient temperature
:
-20°C
Maximum ambient temperature
:
+42°C
Maximum R.H.
:
95% not condensing
Storing below the minimum temperature may cause damage to
components. Storing above the maximum temperature causes
opening of safety valves. Storing in condensing atmosphere
may damage electronic components.
Operation
Operation out of the mentioned limits may damage the unit.
In case of doubts contact manufacturer representative.
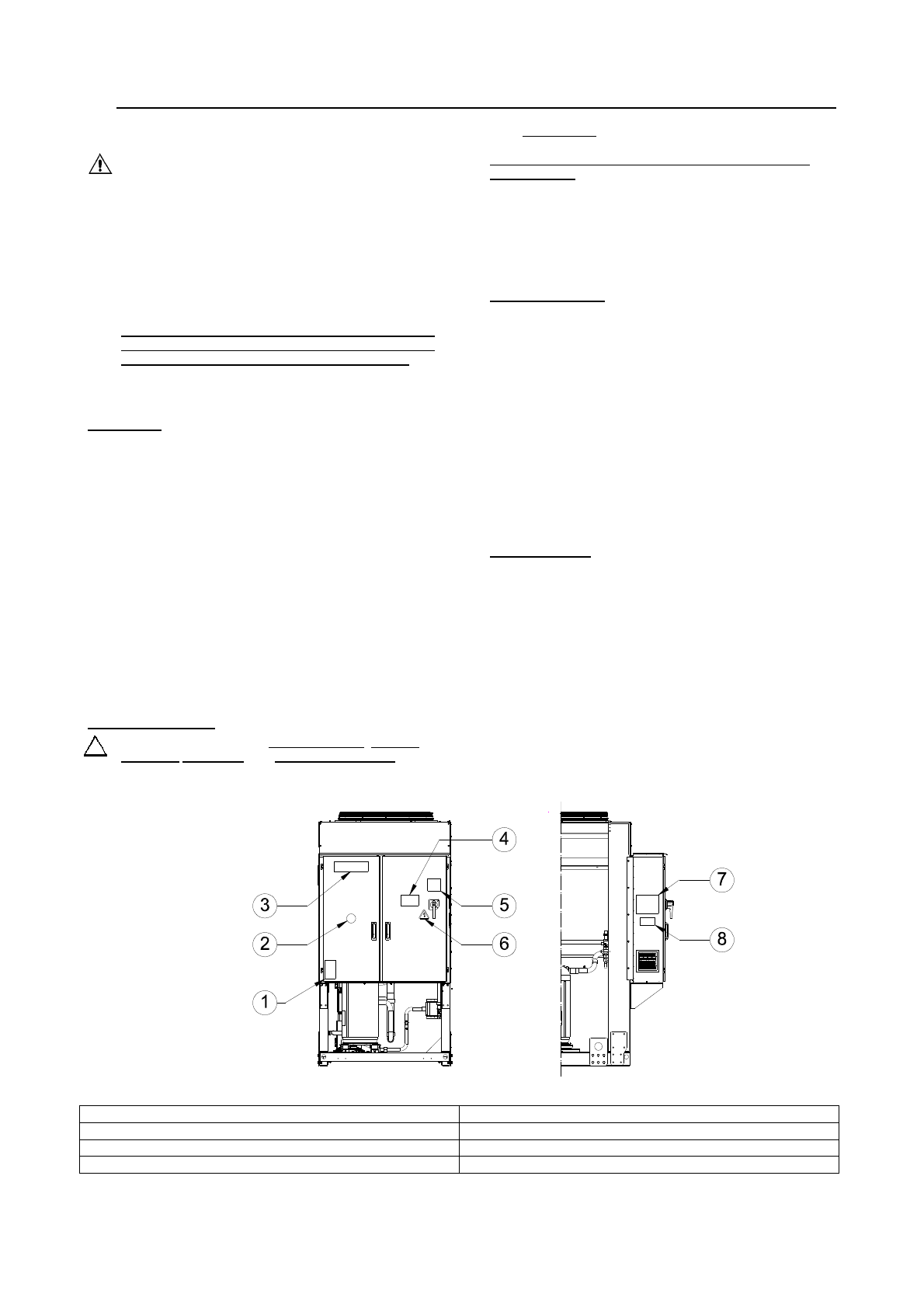
Figure 1 - Description of the labels applied to the electrical panel
Label Identification
1 – Non flammable gas symbol
5 – Cable tightening warning
2 – Gas type
6 – Electrical hazard symbol
3 – Manufacturer’s logo
7 – Lifting instructions
4 – Hazardous Voltage warning
8 – Unit nameplate data












