Кондиционеры Daikin EWYQ-F-XL - инструкция пользователя по применению, эксплуатации и установке на русском языке. Мы надеемся, она поможет вам решить возникшие у вас вопросы при эксплуатации техники.
Если остались вопросы, задайте их в комментариях после инструкции.
"Загружаем инструкцию", означает, что нужно подождать пока файл загрузится и можно будет его читать онлайн. Некоторые инструкции очень большие и время их появления зависит от вашей скорости интернета.

D-EIMHP00604-14EU - 198/208
NAVODILA V ANGLEŠKEM IZVIRNIKU
Ta priro
č
nik je pomemben podporni dokument za usposobljeno osebje, vseeno pa ne more nikoli nadomestiti samega osebja.
Zahvaljujemo se vam za nakup tega hladilnega agregata
PRED NAMEŠ
Č
ANJEM IN ZAGONOM NAPRAVE
POZORNO PREBERITE TA PRIRO
Č
NIK.
NEPRAVILNA NAMESTITEV IMA LAHKO ZA
POSLEDICO ELEKTRI
Č
NI UDAR, PUŠ
Č
ANJE, POŽAR
ALI DRUGE POŠKODBE NAPRAVE ALI LJUDI.
ENOTO MORA NAMESTITI STROKOVNO
USPOSOBLJENI DELAVEC/TEHNIK.
ZA ZAGON ENOTE MORAJO POSKRBETI
POOBLAŠ
Č
ENE IN STROKOVNO USPOSOBLJENE
OSEBE.
VSE DEJAVNOSTI MORAJO POTEKATI SKLADNO Z
LOKALNIMI ZAKONI IN PREDPISI.
Č
E NE BI JASNO RAZUMELI VSEH NAVODIL IZ TEGA
PRIRO
Č
NIKA, STA NAMESTITEV IN ZAGON ENOTE
STROGO PREPOVEDANA.
V PRIMERU DVOMOV ALI ŽELJE PO PODROBNEJŠIH
INFORMACIJAH IN NASVETIH SE OBRNITE NA
PROIZVAJAL
Č
EVEGA ZASTOPNIKA.
Opis
Enota, ki ste jo kupili, je toplotna
č
rpalka , zasnovana za
hlajenje / gretje vode (ali mešanice vode in glikola) znotraj
omejitev, ki so opisane v nadaljevanju. Delovanje enote temelji
na stiskanju, kondenzaciji in izhlapevanju pare skladno z
obrnjenim Carnotovim ciklom. Glavni sestavni deli naprave so:
-
Vija
č
ni kompresor za pove
č
anje tlaka hladilne pare iz
izparilnega v kondenzacijskega.
-
Izparilnik, kjer hladilna teko
č
ina pod nizkim tlakom
izpareva in tako hladi vodo v "na
č
inu hlajenja", in kjer
hladilna teko
č
ina kondenzira in greje vodo v "na
č
inu
gretja".
-
Tuljava, kjer para pod visokim tlakom kondenzira in tako v
ozra
č
je, zahvaljujo
č
zra
č
no hlajenemu toplotnemu
izmenjevalniku, sproš
č
a toploto, odvzeto ohlajeni vodi v
na
č
inu hlajenja, v na
č
inu gretja pa hladilna teko
č
ina pod
nizkim tlakom izpareva in odvzema toploto iz nizke
temperature okolja.
-
Ekspanzijski ventil, ki zmanjšuje tlak kondenzirane
teko
č
ine iz kondenzacijskega v izparilni.
Splošni podatki
Vsem enotam so ob dobavi priložene elektri
č
ne sheme,
certificirani na
č
rti, identifikacijska tablica in izjava o
skladnosti; ti dokumenti navajajo vse tehni
č
ne podatke o
kupljeni enoti ter
JIH JE TREBA UPOŠTEVATI KOT SESTAVNI IN
TEMELJNI DEL TEGA PRIRO
Č
NIKA
V primeru neskladij med tem priro
č
nikom in dokumenti o napravi,
se sklicujte na dokumente, ki so priloženi napravi. V primeru
dvomov se posvetujte s proizvajal
č
evim zastopnikom.
Namen tega priro
č
nika je inštalaterju in usposobljenemu
upravljavcu zagotoviti pravilno delovanje, zagon in vzdrževanje
naprave, brez ogrožanja ljudi, živali in/ali predmetov.
Prejem enote
Č
im enota dospe v kraj namestitve, jo je treba pregledati glede
morebitnih poškodb. Vse sestavne dele, opisane v dobavnici, je
treba pregledati in preveriti.
V primeru daje enota poškodovana, poškodovanih delov ne
odstranjujte in o škodi takoj obvestite prevozno podjetje, ki naj
preveri enoto.
O škodi takoj obvestite proizvajal
č
evega zastopnika in
č
e je
mogo
č
e, mu pošljite fotografije, ki lahko pripomorejo k ugotovitvi
odgovornosti.
Poškodb se ne sme popraviti, dokler zastopnik prevoznega
podjetja ne opravi pregleda.
Pred namestitvijo enote preverite, ali sta model in elektri
č
na
napetost, navedena na tablici, pravilna. Odgovornosti za
morebitne poškodbe po prejemu enote ni mogo
č
e pripisati
proizvajalcu.
Omejitve delovanja
Skladiš
č
enje
Prostorski pogoji morajo izpolnjevati naslednje zahteve:
Minimalna sobna temperatura:
:
-20 °C
Maksimalna sobna temperatura:
:
+42 °C
Maksimalna relativna vlažnost
:
95% brez kondenzata
V primeru skladiš
č
enja pri temperaturah, nižjih od minimalne
navedene vrednosti, lahko pride do poškodb sestavnih delov,
medtem ko se lahko pri skladiš
č
enju pri temperaturah, višjih od
maksimalne, sprožijo varnostni ventili. Pri skladiš
č
enju v ozra
č
ju s
kondenzom lahko pride do poškodb elektri
č
nih komponent.
Delovanje
V primeru delovanja izven navedenih mejnih vrednosti lahko pride
do poškodb enote.
V primeru dvomov se posvetujte s proizvajal
č
evim zastopnikom.
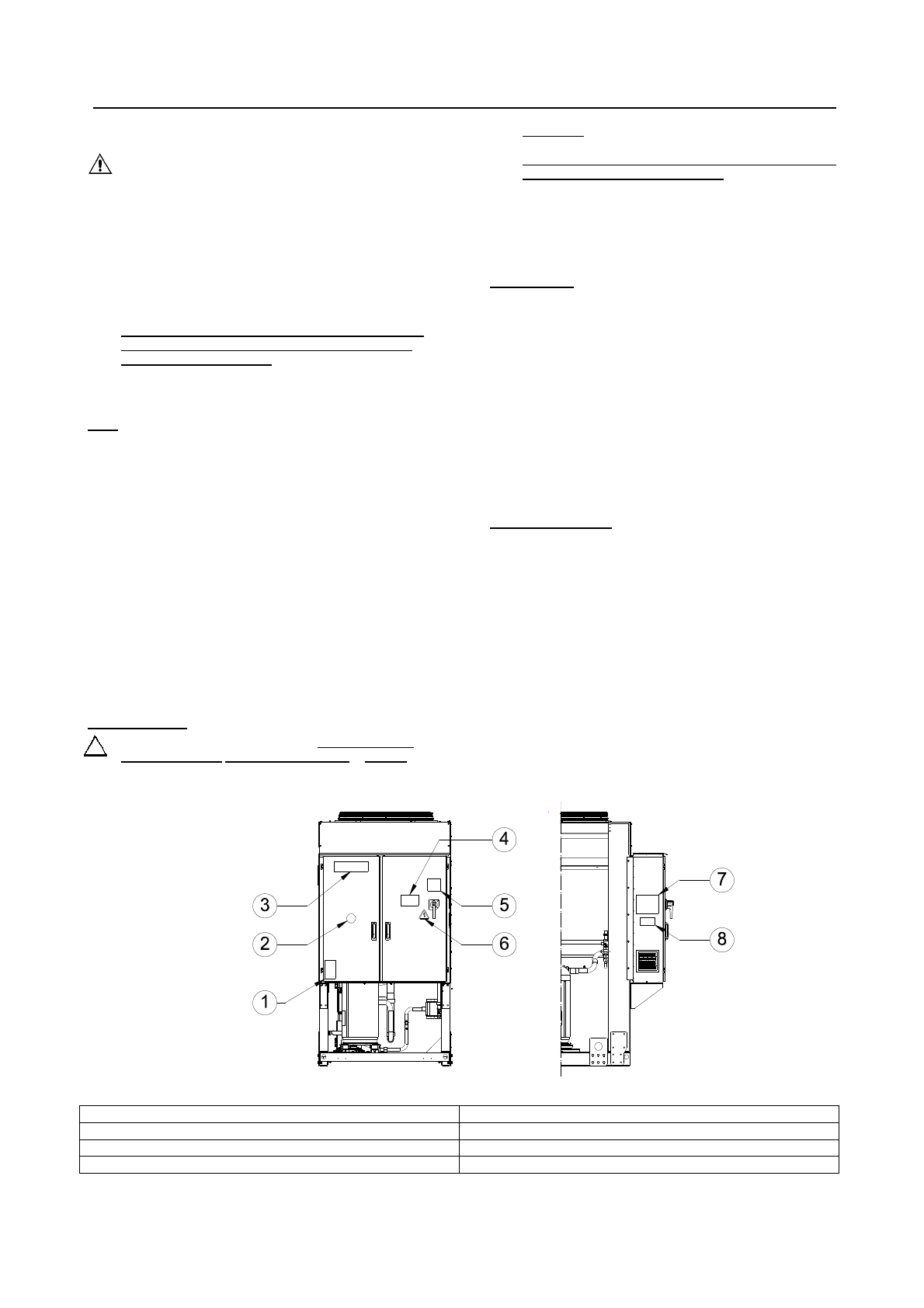
Slika 1 - Opis nalepk na elektri
č
ni omarici
Identifikacija nalepke
1 – Simbol nevnetljivega plina
5 – Opozorilo glede privitosti vodnikov
2 – Vrsta plina
6 – Nevarna napetost
3 – Logotip proizvajalca
7 – Navodila za dvigovanje
4 – Hazardous Voltage warning
8 – Identifikacijska ploš
č
ica enote












