Кондиционеры Daikin EWYQ-F-XL - инструкция пользователя по применению, эксплуатации и установке на русском языке. Мы надеемся, она поможет вам решить возникшие у вас вопросы при эксплуатации техники.
Если остались вопросы, задайте их в комментариях после инструкции.
"Загружаем инструкцию", означает, что нужно подождать пока файл загрузится и можно будет его читать онлайн. Некоторые инструкции очень большие и время их появления зависит от вашей скорости интернета.

D-EIMHP00604-14EU - 159/208
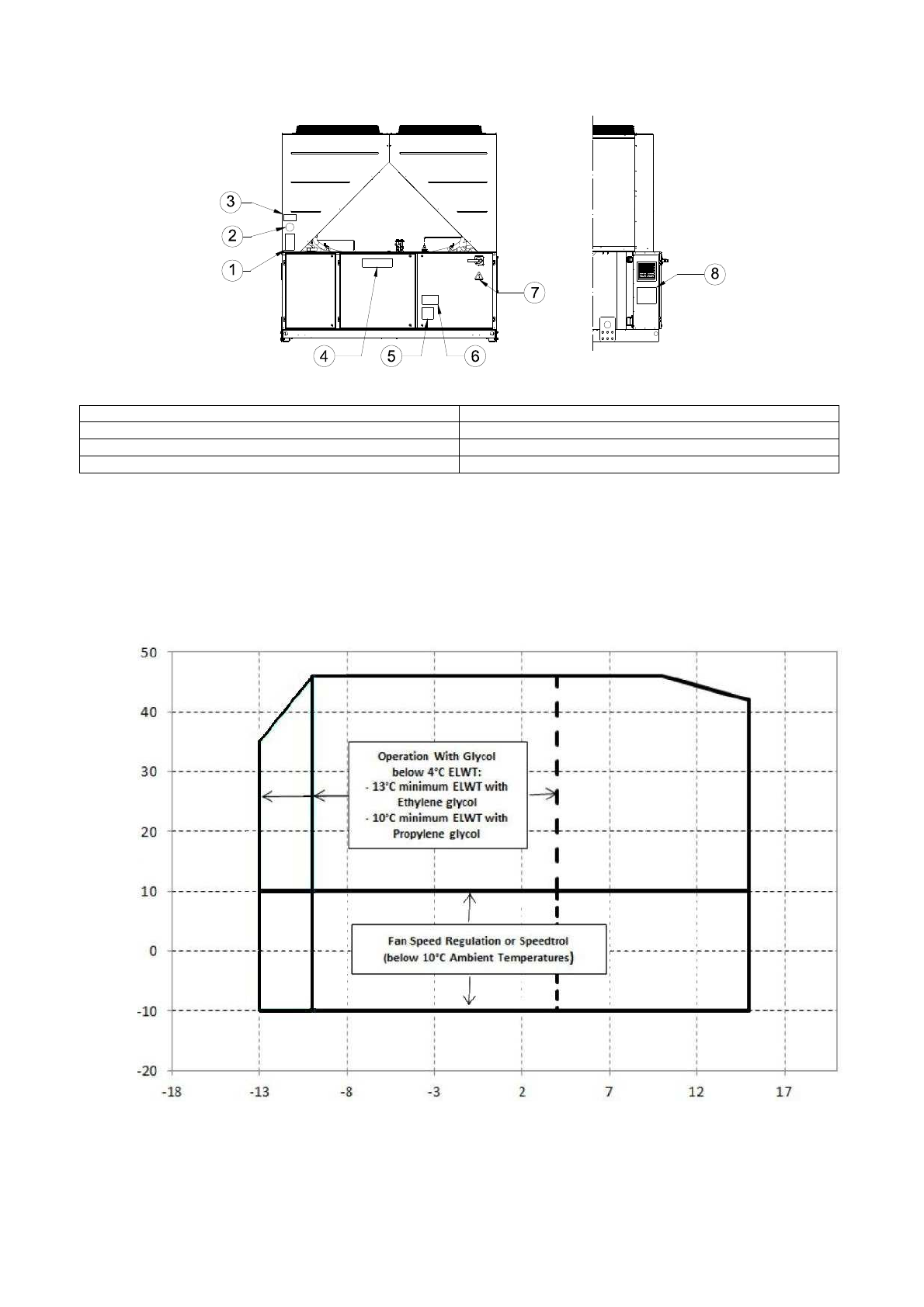
A címke értelmezése
Ábra 2 - Üzemi tartomány
1 – Nem gy
ű
lékony gáz jele
5 – Figyelem vezeték befogás
2 – Gáz típusa
6 – Figyelem veszélyes feszültség
3 – A berendezés adatait tartalmazó tábla
7 – Áramütés veszélye jel
4 – A gyártó logója
8 – Utasítások a berendezés felemeléséhez
H
ű
tési tartomány
K
ü
ls
ő
h
ő
m
é
rs
é
k
le
t
(°
C
)
Kilép
ő
víz h
ő
mérséklete (°C)












