Кондиционеры Daikin EWYQ-F-XL - инструкция пользователя по применению, эксплуатации и установке на русском языке. Мы надеемся, она поможет вам решить возникшие у вас вопросы при эксплуатации техники.
Если остались вопросы, задайте их в комментариях после инструкции.
"Загружаем инструкцию", означает, что нужно подождать пока файл загрузится и можно будет его читать онлайн. Некоторые инструкции очень большие и время их появления зависит от вашей скорости интернета.

D-EIMHP00604-14EU - 138/208
ORIGINÁLNÍ POKYNY V ANGLI
Č
TIN
Ě
Tato p
ř
íru
č
ka p
ř
edstavuje d
ů
ležitý pomocný dokument pro kvalifikovaný personál; v žádném p
ř
ípad
ě
však nikdy nem
ů
že být náhražkou
samotného personálu.
D
ě
kujeme, že jste si zakoupili tento chiller
P
Ř
ED INSTALACÍ A UVEDENÍM DO PROVOZU SI POZORN
Ě
P
Ř
E
Č
T
Ě
TE TUTO P
Ř
ÍRU
Č
KU.
NESPRÁVNÁ INSTALACE M
Ů
ŽE ZAP
Ř
Í
Č
INIT ZÁSAHY
ELEKTRICKÝM PROUDEM, ZKRATY, POŽÁR ANEBO JINÉ
ŠKODY NA P
Ř
ÍSTROJI A ZRAN
Ě
NÍ OSOB.
ZA
Ř
ÍZENÍ MUSÍ BÝT NAINSTALOVÁNO KVALIFIKOVANÝM
PRACOVNÍKEM/TECHNIKEM.
UVEDENÍ ZA
Ř
ÍZENÍ DO PROVOZU M
Ů
ŽOU VYKONAT
POUZE
ZKUŠENÍ
A
OPRÁVN
Ě
NÍ
PROFESIONÁLNÍ
PRACOVNÍCI.
VŠECHNY ÚKONY SE MUSÍ PROVÁD
Ě
T V SOULADU S
MÍSTNÍMI P
Ř
EDPISY A NORMAMI.
INSTALACE ZA
Ř
ÍZENÍ A JEHO UVEDENÍ DO PROVOZU JE
P
Ř
ÍSN
Ě
ZAKÁZÁNO V P
Ř
ÍPAD
Ě
, ŽE VŠECHNY POKYNY V
TÉTO P
Ř
ÍRU
Č
CE NEJSOU ZROZUMITELNÉ.
V P
Ř
ÍPAD
Ě
POCHYBNOSTÍ, PRO DALŠÍ INFORMACE A
RADY KONTAKTUJTE KONCESIONÁ
Ř
E VÝROBCU.
Popis
Za
ř
ízení, které jste si zakoupili, je tepelné
č
erpadlo, které slouží k
chlazení / oh
ř
evu vody (nebo sm
ě
si vody a glykolu) v mezích níže
uvedených provozních hodnot. Fungování za
ř
ízení je založeno na
stla
č
ování, kondenzaci a odpa
ř
ování par podle reverzního Carnotova
cyklu. Hlavními sou
č
ástmi za
ř
ízení jsou:
-
Šroubový kompresor, který zvyšuje tlak par chladiva z
odpa
ř
ovacího tlaku na kondenza
č
ní tlak.
-
Výparník, kde se v „režimu chlazení“ tekuté chladivo p
ř
i nízkém
tlaku odpa
ř
uje a chladí vodu a kde v „režimu topení“ chladivo
kondenzuje a vodu oh
ř
ívá.
-
Spirála, kde v režimu chlazení páry p
ř
i vysokém tlaku kondenzují a
odevzdávají teplo odebrané z chlazené vody do atmosféry za
pomoci vzduchem chlazeného vým
ě
níku tepla. V režimu topení se
zde chladivo p
ř
i nízkém tlaku odpa
ř
uje a odebírá teplo z chladného
okolního prost
ř
edí.
-
Expanzní ventil, který umož
ň
uje snižovat tlak kondenzované
kapaliny z kondenza
č
ního tlaku na odpa
ř
ovací tlak.
Obecné informace
Všechna za
ř
ízení jsou dodávány s elektrickými schématy,
certifikovanými výkresy, identifika
č
ním štítkem; a DOC
(Prohlášení o shod
ě
);, v této dokumentaci jsou uvedené
všechny technické údaje zakoupeného za
ř
ízení a
NEODD
Ě
LITELNOU A PODSTATNOU
Č
ÁSTÍ TÉTO
P
Ř
ÍRU
Č
KY
V p
ř
ípad
ě
neshody mezi touto p
ř
íru
č
kou a dokumentací p
ř
ístroje jsou
sm
ě
rodatné údaje, uvedené na samotném p
ř
ístroji. V p
ř
ípad
ě
pochybností kontaktujte koncesioná
ř
e výrobce.
Ú
č
elem této p
ř
íru
č
ky je poskytnout pomoc kvalifikovanému instalatérovi
a pracovníkovi, aby byla zajišt
ě
na správná instalace, uvedení do provozu
a údržba za
ř
ízení, bez ohrožení osob, zví
ř
at a/nebo p
ř
edm
ě
t
ů
.
Dodání za
ř
ízení
Po dodání za
ř
ízení na místo instalace je zapot
ř
ebí jej zkontrolovat, aby
se zjistili eventuální škody. Je zapot
ř
ebí prohlédnout a zkontrolovat
všechny komponenty, vyjmenované v dodacím listu.
V p
ř
ípad
ě
, že bude za
ř
ízení poškozeno, neodstra
ň
ujte poškozený
materiál a okamžit
ě
ohlaste škodu p
ř
epravní spole
č
nosti, aby za
ř
ízení
prozkoumala.
Okamžit
ě
škodu nahlaste koncesioná
ř
i výrobce, pošlete mu podle
možnosti snímky, které m
ů
žou být užite
č
né p
ř
i zjiš
ť
ování odpov
ě
dnosti.
Škoda se nesmí odstranit, dokud nebyla vykonána kontrola ze strany
p
ř
edstavitele výrobce anebo p
ř
epravní spole
č
nosti.
P
ř
ed instalací za
ř
ízení se ujist
ě
te, že model a elektrické nap
ě
tí uvedené
na štítku je správné. Výrobce neodpovídá za eventuální škody vzniklé po
p
ř
ijetí za
ř
ízení.
Opera
č
ní limity
Uskladn
ě
ní
Podmínky prost
ř
edí musí odpovídat následujícím limit
ů
m:
Minimální teplota prost
ř
edí
:
-20°C
Maximální teplota prost
ř
edí
:
+42°C
Maximální relativní vlhkost
:
95% bez kondenzace
Uskladn
ě
ní p
ř
i nižší teplot
ě
jako je minimální teplota m
ů
že poškodit
komponenty za
ř
ízení, zatímco p
ř
i vyšší teplot
ě
jako je maximální m
ů
že
zp
ů
sobit otev
ř
ení bezpe
č
nostních ventil
ů
. Uskladn
ě
ní v prost
ř
edí s
kondenzací m
ů
že poškodit elektrické komponenty.
Fungování
Fungování je povoleno v mezích limit
ů
uvedených na Obrázku 2.
Za
ř
ízení se musí používat s pr
ů
tokem vody evaporátoru mezi 50% a
140% nominálního pr
ů
toku (standardní opera
č
ní podmínky).
Provoz mimo uvedených limit
ů
m
ů
že za
ř
ízení poškodit.
V p
ř
ípad
ě
pochybností kontaktujte koncesioná
ř
e výrobce.
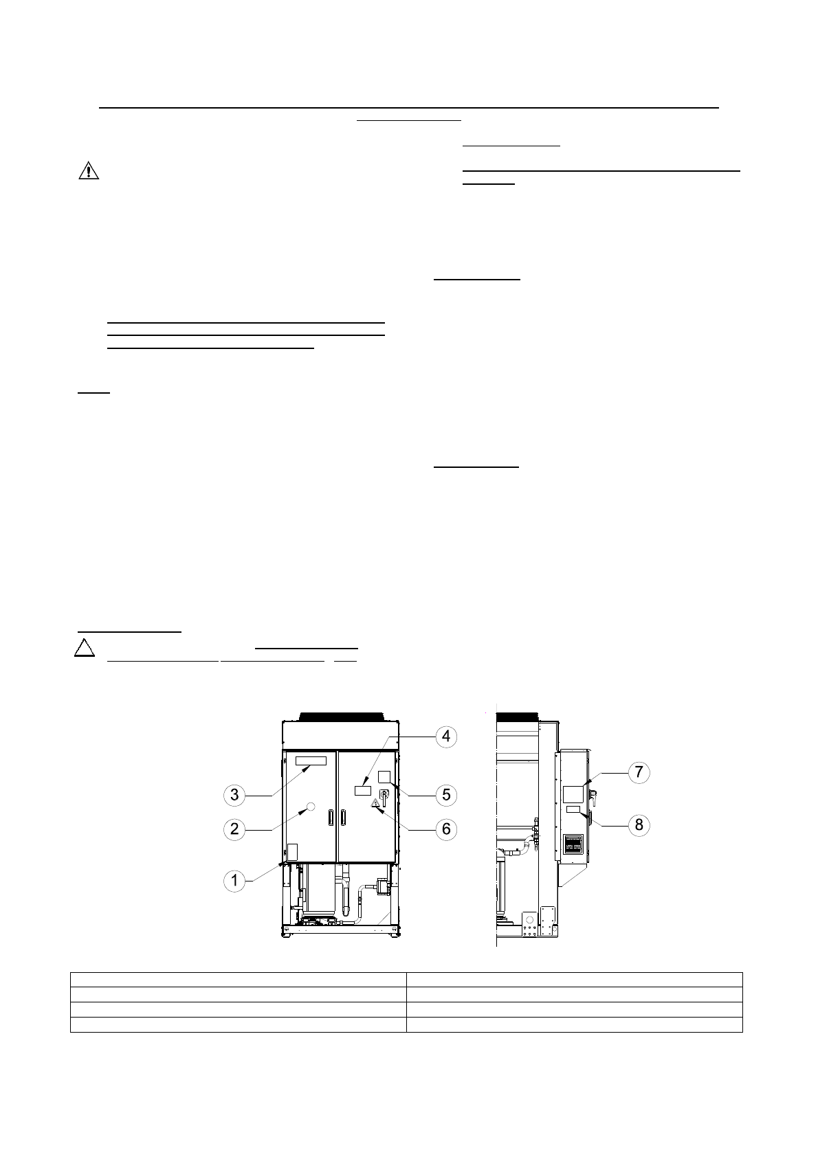
Obrázek 1 – Popis štítk
ů
aplikovaných na elektrickém panelu
Identifikace štítku
1 – Symbol neho
ř
lavého plynu
5 – Upozorn
ě
ní o utažení kabel
ů
2 – Typ plynu
6 – Symbol elektrického nebezpe
č
í
3 – Logo výrobce
7 – Pokyny ke zvedání
4 – Upozorn
ě
ní o nebezpe
č
ném nap
ě
tí
8 – Údaje identifika
č
ního štítku za
ř
ízení












