Кондиционеры Daikin EWYQ-F-XL - инструкция пользователя по применению, эксплуатации и установке на русском языке. Мы надеемся, она поможет вам решить возникшие у вас вопросы при эксплуатации техники.
Если остались вопросы, задайте их в комментариях после инструкции.
"Загружаем инструкцию", означает, что нужно подождать пока файл загрузится и можно будет его читать онлайн. Некоторые инструкции очень большие и время их появления зависит от вашей скорости интернета.

D-EIMHP00604-14EU - 158/208
EREDETI ANGOL NYELV
Ű
UTASÍTÁSOK
Ezen kézikönyv fontos segítséget jelent a szakemberek számára, ám nem helyettesítheti a szakember jelenlétét.
Köszönjük, hogy termékünket választotta
A BERENDEZÉS BESZERELÉSE ÉS HASZNÁLATÁNAK
MEGKEZDÉSE EL
Ő
TT OLVASSA EL FIGYELMESEN A JELEN
ÚTMUTATÓT.
A NEM MEGFELEL
Ő
BESZERELÉS ÁRAMÜTÉST,
RÖVIDZÁRLATOT, SZIVÁRGÁST, TÜZET VAGY MÁS
KÁROKAT ILLETVE SZEMÉLYI SÉRÜLÉSEKET OKOZHAT.
A BERENDEZÉST CSAK SZAKEMBER/TECHNIKUS
SZERELHETI BE.
A BERENDEZÉS BEINDÍTÁSÁT CSAK MEGFELEL
Ő
SZAKÉRTELEMMEL ÉS ENGEDÉLLYEL RENDELKEZ
Ő
SZEMÉLYEK VÉGEZHETIK.
A M
Ű
VELETEKET A HELYI TÖRVÉNYEKNEK ÉS
SZABÁLYOZÁSOKNAK MEGFELEL
Ő
EN KELL ELVÉGEZNI.
AMENNYIBEN A JELEN ÚTMUTATÓ BÁRMELY RÉSZE NEM
LENNE EGYÉRTELM
Ű
A BERENDEZÉS BESZERELÉSE ÉS
BEINDÍTÁSA SZIGORÚAN TILOS.
KÉRDÉSEK ESETÉN ILL. TANÁCSOKÉRT ÉS
INFORMÁCIÓKÉRT FODULJON A GYÁRTÓ
KÉPVISEL
Ő
JÉHEZ.
Leírás
Az ön által vásárolt "h
ő
szivattyú" egy olyan berendezés, amelyet víz (vagy
víz és glikol) h
ű
tésére/f
ű
tésére terveztek az alábbi üzemi tartományokon
belül. A berendezés m
ű
ködése a fordított Carnot cikluson (kompresszió,
kondenzáció és a g
ő
z elpárolgása) alapul. A legfontosabb alkotóelemek:
-
Csavarkompresszor a h
ű
t
ő
g
ő
z nyomásának növelésére a párolgási
nyomásról a kondenzációs nyomásra.
-
Párologtató, ahol az alacsony nyomású h
ű
t
ő
folyadék elpárolog, hogy
h
ű
tési üzemmódban h
ű
tse a vizet, és ahol a h
ű
t
ő
közeg lecsapódik,
hogy f
ű
tési üzemmódban melegítse a vizet.
-
Tekercs, ahol a nagy nyomású gáz kondenzálódik, és egy
légh
ű
téses h
ő
cserél
ő
segítségével leadja a légkörbe a leh
ű
tött vízb
ő
l
eltávolított h
ő
t. H
ű
tési és f
ű
tési üzemmódban az alacsony nyomású
h
ű
t
ő
közeg elpárolog, melynek során h
ő
t von el az alacsony
h
ő
mérséklet
ű
környezetb
ő
l.
-
Szabályozószelep, amely lehet
ő
vé teszi a kondenzált folyadék
nyomásának csökkentését a kondenzációs nyomásról a párolgási
nyomásra.
Álatános információk
Minden berendezést kapcsolási rajzokkal, hitelesített rajzokkal,
azonosító címkével; és megfelel
ő
ségi nyilatkozattalszállítunk;
ezek tartalmazzák az ön által vásárolt berendezés minden m
ű
szaki
adatát. EZEKET AZ ÚTMUTATÓ ALAPVET
Ő
ÉS SZERVES
RÉSZEKÉNT KELL KEZELNI
Amennyiben az útmutatóban szerepl
ő
és a berendezés dokumentumai
által tartalmazott adatok között eltérések lennének, a berendezés
dokumentumaiban szerepl
ő
adatok az irányadóak. Ha kérdése merülne
fel, forduljon a gyártó képvisel
ő
jéhez.
A jelen útmutató célja, hogy a berendezést beszerel
ő
szakember és a
berendezés kezel
ő
je biztosíthassák a berendezés megfelel
ő
beszerelését,
üzembehelyezését és karbantartását anélül, hogy károkat okozna
tárgyakban, háziállatokban vagy személyi sérüléseket okozna.
A berendezés átvétele
Amikor a berendezés eléri a beszerelés helyét, vizsgálja át, hogy nem
szenvedett-e sérüléseket a szállítás során. Az átvételi jegyz
ő
könyvben
szerepl
ő
összes alkatrészt ellen
ő
rizze.
Ha a berendezésen sérülések láthatók, ne távolítsa el a sérült alkatrészt,
hanem közölje a fuvarozóval a kárt, és kérje az alkatrész átvizsgálását.
A kárról haladéktalanul értesítse a gyártó képvisel
ő
jét, és lehet
ő
ség szerint
mellékeljen fényképeket is, amelyek segítségével tisztázható a felel
ő
sség
kérdése.
A kárt ne javítsa ki, amíg a szállítást végz
ő
cég képvisel
ő
je nem ellen
ő
rizte
a berendezést.
A berendezés beszerelése el
ő
tt ellen
ő
rizze, hogy modell és a címkén
jelzett feszültségérték megfelel
ő
ek. A berendezés átvételét követ
ő
en az
esetleges károkért a gyártó nem vonható felel
ő
sségre.
Üzemi tartomány
Tárolás
A környezeti értékeknek az alábbi tartományokon belül kell maradniuk:
Minimum küls
ő
h
ő
mérséklet
:
-20°C
Maximum küls
ő
h
ő
mérséklet
:
+42
℃
Relatív páratartalom
:
95% lecsapódás nélkül
Ha a berendezét a fentinél alacsonyabb h
ő
mérsékleten tárolja az egyes
részek sérülhetnek. Ha a h
ő
mérséklet meghaladja a fenti határértéket,
kinyílhatnak a biztonsági szelepek. Az olyan környezetben, ahol nagy a
páralecsapódás mértéke, az elektromos részek sérülhetnek.
M
ű
ködés
A üzemeltetési tartományon kív
ű
es
ő
m
ű
ködtetés károsíthatja a
berendezést.
Ha kérdése merülne fel, forduljon a gyártó képvisel
ő
jéhez.
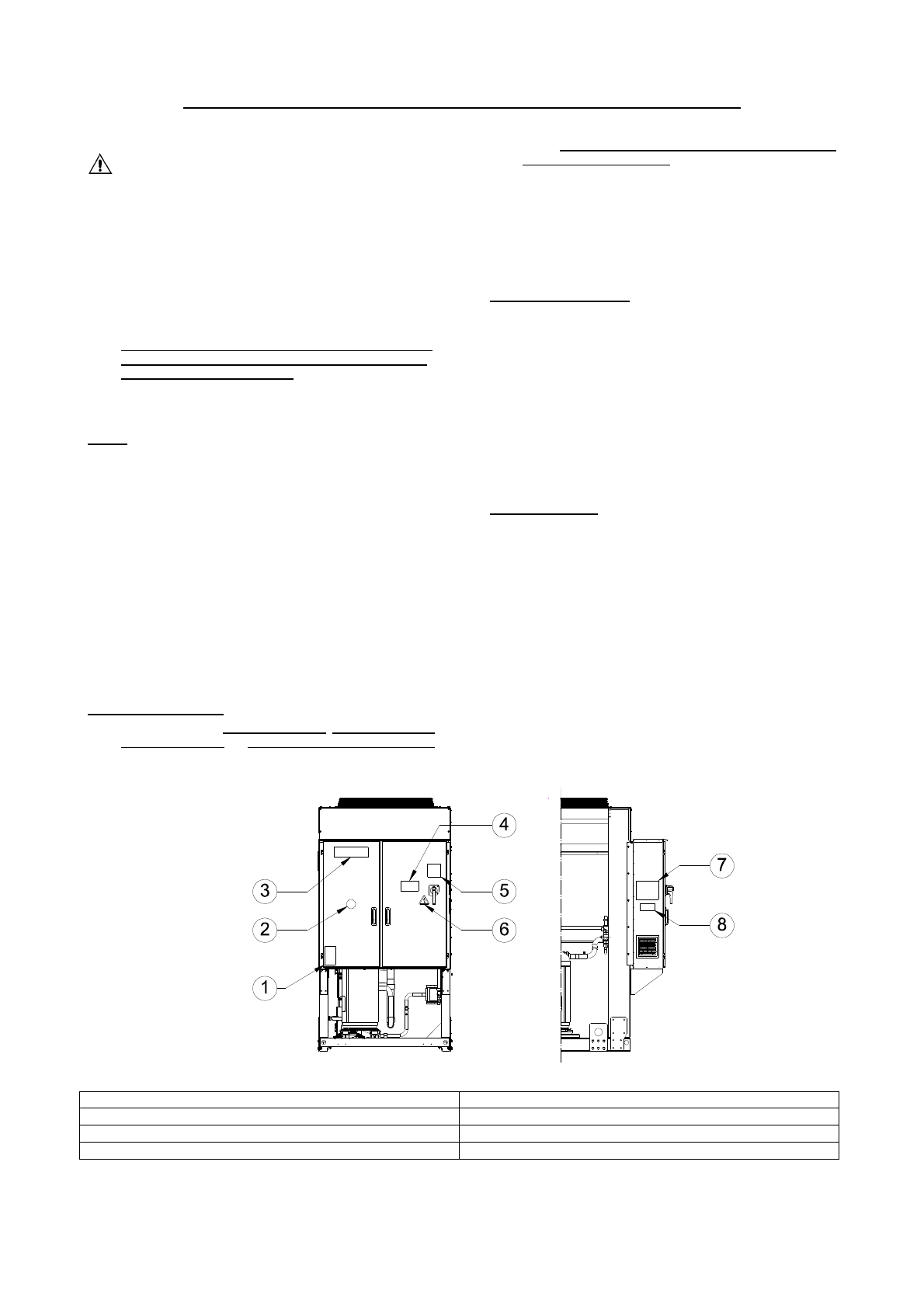
Ábra 1 - Az elektromos burokaltokra elhelyezett címkék értelmezése
A címke értelmezése
1 – Nem gy
ű
lékony gáz jele
5 – Figyelem vezeték befogás
2 – Gáz típusa
6 – Áramütés veszélye jel
3 – A gyártó logója
7 – Utasítások a berendezés felemeléséhez
4 – Figyelem veszélyes feszültség
8 – A berendezés adatait tartalmazó tábla












