Кондиционеры Daikin HXHD-A8 - инструкция пользователя по применению, эксплуатации и установке на русском языке. Мы надеемся, она поможет вам решить возникшие у вас вопросы при эксплуатации техники.
Если остались вопросы, задайте их в комментариях после инструкции.
"Загружаем инструкцию", означает, что нужно подождать пока файл загрузится и можно будет его читать онлайн. Некоторые инструкции очень большие и время их появления зависит от вашей скорости интернета.

Инструкция по монтажу
12
HXHD125A8V1B
Внутренний агрегат системы VRV IV
4P404571-3 – 2015.04
7.2.
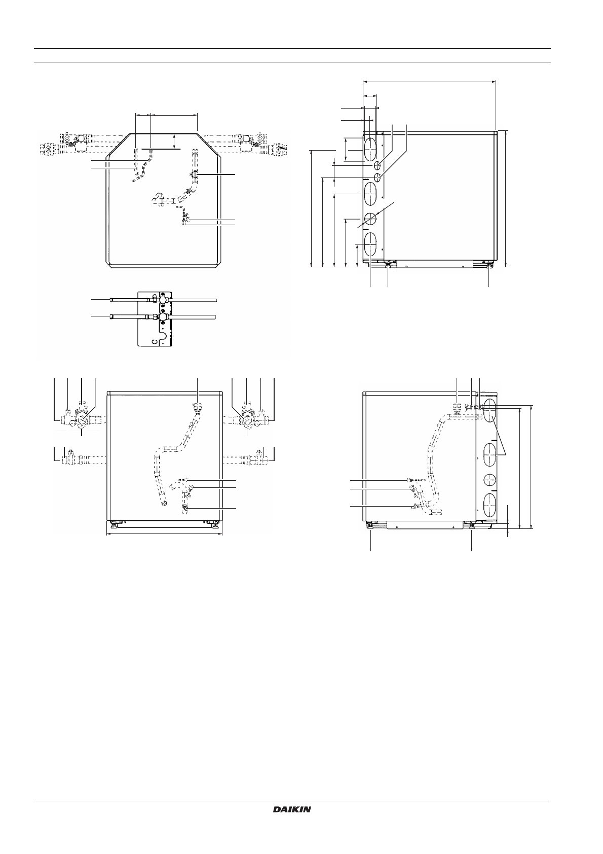
Размеры и пространство для обслуживания
Габариты блока
1
HP/LP подсоединение газовой трубы
Ø
12,7 для пайки
(R410A)
2
Подсоединение трубы жидкости
Ø
9,52 для пайки
(R410A)
3
R134a сервисные порты 5/16" конус (низкий)
4
R134a сервисные порты 5/16" конус (высокий)
5
Манометр
6
Клапан сброса давления
7
Дренажный клапан в контуре циркуляции воды
8
Выпуск воздуха
9
Запорные клапаны
10
Фильтр для воды
11
Разъем впуска воды G1" (охватывающий)
12
Разъем выпуска воды G1" (охватывающий)
13
Ввод проводки управления (выбивное отверстие
Ø
37)
14
Ввод проводки питания (выбивное отверстие
Ø
37)
15
Выбивное отверстие для трубопроводов хладагента
и водопровода
16
Выравнивающие опоры
17
Запорный вентиль в контуре жидкого хладагента
Ø
9,52 для пайки (R410A)
18
HP/LP запорный вентиль
Ø
12,7 для пайки (R410A)
79
242
694
611
465
381
251
120
120
62
708
74
2x 60
38
600
1
17
18
4
3
3
4
7
8
6
6
8
8
2 1
5
10
10
9
9
9
9
11
11
12
12
2
3
4
7
81
5
∅
60
15
16
16
16
15
16
13 14
637
622
26.5