Кондиционеры Daikin HXHD-A8 - инструкция пользователя по применению, эксплуатации и установке на русском языке. Мы надеемся, она поможет вам решить возникшие у вас вопросы при эксплуатации техники.
Если остались вопросы, задайте их в комментариях после инструкции.
"Загружаем инструкцию", означает, что нужно подождать пока файл загрузится и можно будет его читать онлайн. Некоторые инструкции очень большие и время их появления зависит от вашей скорости интернета.

HXHD125A8V1B
Внутренний агрегат системы VRV IV
4P404571-3 – 2015.04
Инструкция по монтажу
9
6.3.
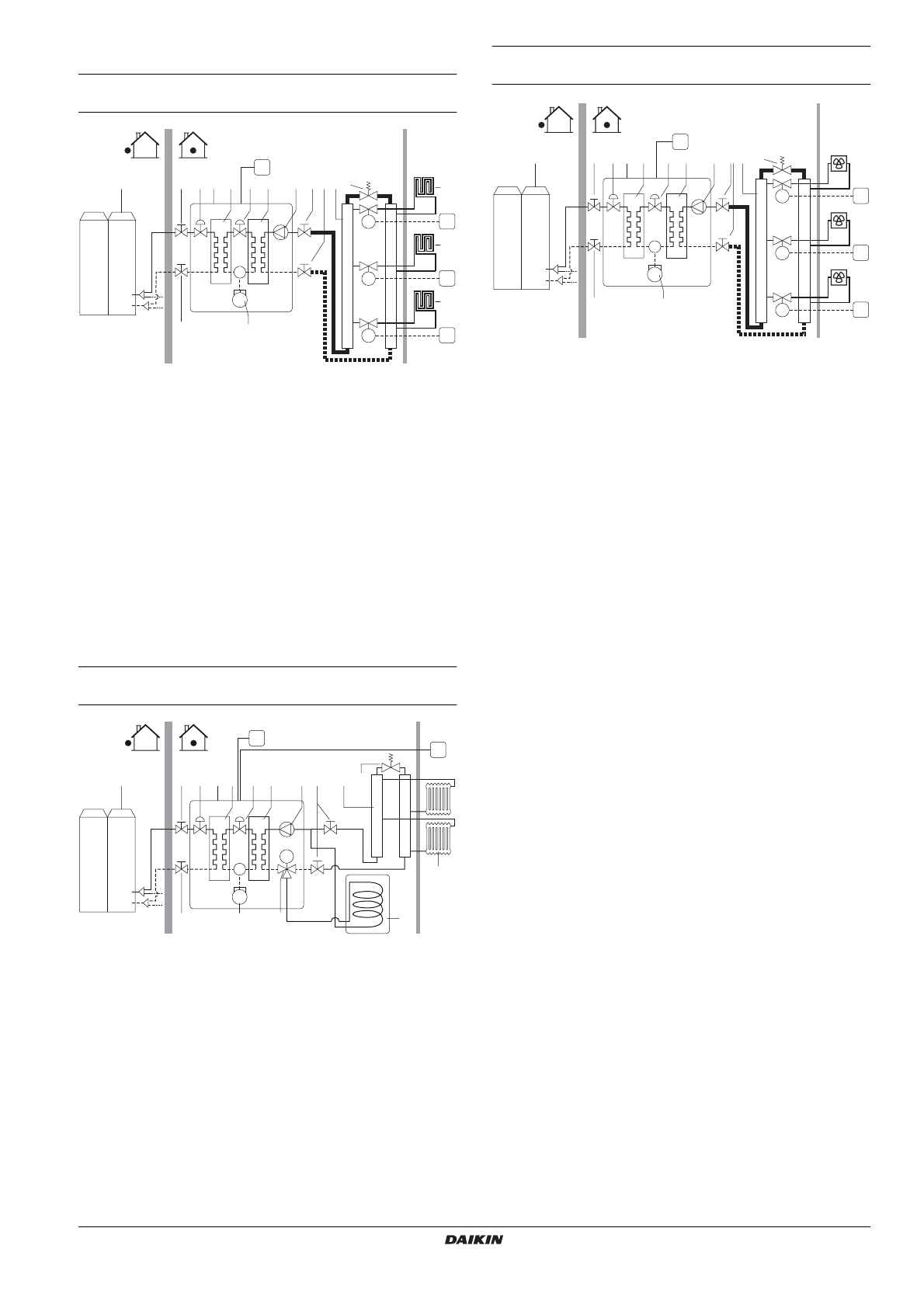
Примеры применения
Подогрев полов без резервуара горячей воды бытового
потребления
1
Наружный агрегат
2
Внутренний агрегат
3
Теплообменник хладагента
4
Водяной теплообменник
5
Компрессор
6
Насос
7
Запорный клапан
8
Коллектор (приобретается по месту установки)
9
Обходной клапан (приобретается по месту установки)
10
FHL: Контур подогрева полов (приобретается по месту
установки)
11
Электронный расширительный клапан
12
Запорный вентиль хладагента внутреннего блока
C1
Пульт дистанционного управления
M1...M3
Отдельный клапан с электроприводом для контроля
радиаторов контура (приобретается по месту
установки)
T1...T3
Термостаты отдельных помещений (приобретаются по
месту установки)
A
Место установки
B
Жилое помещение
Радиатор с резервуаром для горячей воды бытового
потребления
1
Наружный агрегат
2
Внутренний агрегат
3
Теплообменник хладагента
4
Водяной теплообменник
5
Компрессор
6
Насос
7
Запорный клапан
8
3-ходовой клапан с приводом от электродвигателя
(по дополнительному заказу)
9
Резервуар для горячей воды бытового потребления
(дополнительное оборудование)
10
Коллектор
11
Радиатор (приобретается по месту установки)
12
Электронный расширительный клапан
13
Обходной клапан (приобретается по месту установки)
14
Запорный вентиль хладагента внутреннего блока
C1
Пульт дистанционного управления (главный)
C2
Пульт дистанционного управления (подчиненный)
A
Место установки
B
Жилое помещение
Фанкойлы без резервуара горячей воды бытового
потребления
1
Наружный агрегат
2
Внутренний агрегат
3
Теплообменник хладагента
4
Водяной теплообменник
5
Компрессор
6
Насос
7
Запорный клапан
8
Коллектор (приобретается по месту установки)
9
Обходной клапан (приобретается по месту установки)
10
FCU: Блок фанкойла (приобретается по месту
установки)
11
Электронный расширительный клапан
12
Запорный вентиль хладагента внутреннего блока
C1
Пульт дистанционного управления
M1...M3
Отдельный клапан с электроприводом для контроля
радиаторов контура (приобретается по месту
установки)
T1...T3
Термостаты отдельных помещений (приобретаются по
месту установки)
A
Место установки
B
Жилое помещение
7 7 8
4
3
2
9
1
6
10
5
12
T3
A
B
C1
M3
M2
M1
11
11
12
FHL3
10
T2
FHL2
10
T1
FHL1
10 13
C1
A
B
C2
7
4
3 12
12
14
2
1
8
6
5
14
M
11
9
7 8
4
3
2
9
1
6
10
5
12
T3
A
B
C1
M3
M2
M1
11
11
12
FCU3
10
T2
FCU2
10
T1
FCU1