Кондиционеры Daikin ATXC50B/ARXC50B 104365 - инструкция пользователя по применению, эксплуатации и установке на русском языке. Мы надеемся, она поможет вам решить возникшие у вас вопросы при эксплуатации техники.
Если остались вопросы, задайте их в комментариях после инструкции.
"Загружаем инструкцию", означает, что нужно подождать пока файл загрузится и можно будет его читать онлайн. Некоторые инструкции очень большие и время их появления зависит от вашей скорости интернета.

8-11
Еλληνικă
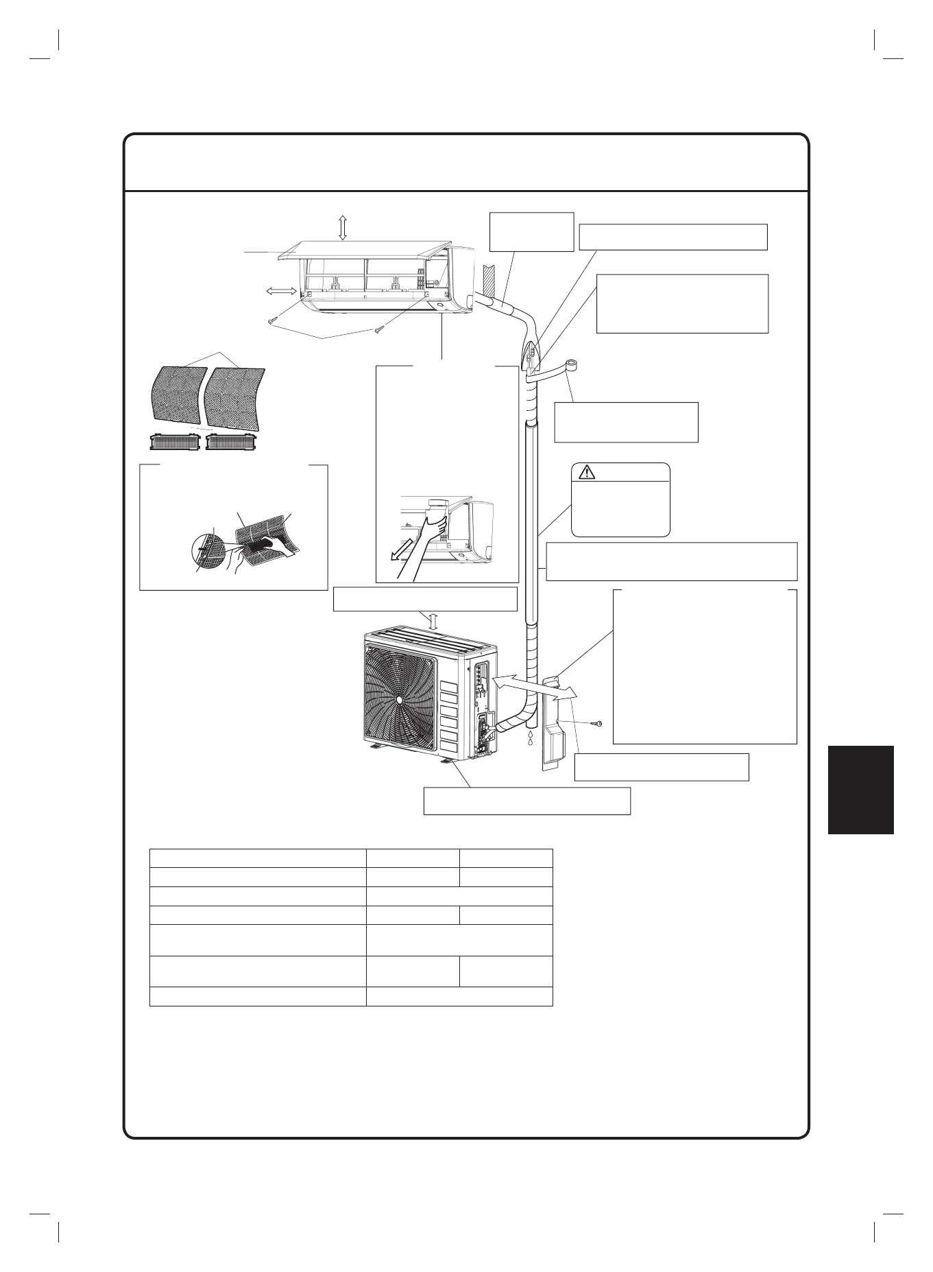
ΣΧΕΔΙΑΓΡΑΜΜΑ
ΕΓΚΑΤΑΣΤΑΣΗΣ
ΕΣΩΤΕΡΙΗΣ
/
ΕΞΩΤΕΡΙΚΗΣ
ΜΟΝΑΔΑΣ
500mm from w
all
55mm
ή
περισσότερο
από
την
οροφή
Κλείστε
το
κενό
του
σωλήνα
με
στόκο
.
Η
σύνδεση
φλόγας
πρέπει
να
εγκατασταθεί
σε
εξωτερικούς
χώρους
Κόψτε
το
σωλήνα
θερμομόνωσης
στο
κατάλληλο
μήκος
και
τυλίξτε
το
με
ταινία
,
και
βεβαιωθείτε
ότι
δεν
υπάρχει
κενό
στη
γραμμή
κοπής
του
σωλήνα
μόνωσης
.
Τυλίξτε
το
σωλήνα
μόνωσης
με
την
ταινία
από
κάτω
προς
τα
πάνω
.
Οι
σωληνώσεις
του
ψυκτικού
μέσου
πρέπει
να
προστατεύονται
από
φυσικές
βλάβες
.
Τοποθετήστε
ένα
πλαστικό
κάλυμμα
ή
κάτι
αντίστοιχο
.
ΠΡΟΣΟΧΗ
Ρυθμίστε
το
μήκος
των
σωληνώσεων
από
3m
έως
30m
Αφήστε
χώρο
για
τις
σωληνώσεις
και
τη
συντήρηση
των
ηλεκτρικών
.
Όταν
υπάρχει
κίνδυνος
πτώσης
της
μονάδας
,
χρησιμοποιήστε
βίδες
ποδιών
.
Αφήστε
χώρο
εργασίας
300 mm
κάτω
από
την
επιφάνεια
της
οροφής
.
Φίλτρα
αέρα
Πρόσοψη
Φίλτρα
αέρα
Πλαίσιο
φίλτρου
Γλωττίδα
Αποσμητικό
φίλτρο
τιτανίου
με
επικάλυψη
απατίτη
Αποσμητικό
φίλτρο
τιτανίου
με
επικάλυψη
απατίτη
(2)
Βίδες
(M4 x 12L)
50 mm
ή
περισσότερο
από
τοίχους
(
και
στις
δύο
πλευρές
)
Πώς
να
αφαιρέσετε
το
καπάκι
της
βαλβίδας
διακοπής
.
•
Αφαιρέστε
τη
βίδα
από
το
καπάκι
της
βαλβίδας
διακοπής
.
•
Σύρετε
το
καπάκι
προς
τα
κάτω
για
να
το
αφαιρέσετε
.
Πώς
να
συνδέσετε
το
καπάκι
της
βαλβίδας
διακοπής
.
•
Τοποθετήστε
το
επάνω
μέρος
του
καλύμματος
της
βαλβίδας
διακοπής
στην
εξωτερική
μονάδα
.
•
Σφίξτε
τις
βίδες
.
Κλείστε
το
καπάκι
της
βαλβίδας
Καπάκι
σέρβις
Το
καπάκι
σέρβις
μπορεί
να
αφαιρεθεί
Μέθοδος
ανοίγματος
1)
Αφαιρέστε
τις
βίδες
του
καπακιού
σέρβις
2)
Σπρώξτε
το
καπάκι
σέρβις
διαγώνια
προς
τα
κάτω
,
στην
κατεύθυνση
του
βέλους
.
3)
Σπρώξτε
προς
τα
κάτω
.
500mm
από
τοίχους
ARXC20/25/35
ARXC50/60/71
Μέγιστο
μήκος
σωληνώσεων
20m
30m
Ελάχιστο
μήκος
σωληνώσεων
**
3m
Μέγιστο
ύψος
σωληνώσεων
15m
20m
Απαιτείται
πρόσθετο
ψυκτικό
μέσο
για
σωλήνες
ψυκτικού
άνω
των
7.5m*
17g/m
Σωλήνας
αερίου
3/8
ίντσα
(9.52mm)
1/2
ίντσα
(12.7mm)
Σωλήνας
υγρού
1/4
ίντσα
(6.4mm)
*
Βεβαιωθείτε
ότι
έχετε
προσθέσει
τη
σωστή
ποσότητα
ψυκτικού
μέσου
.
Σε
αντίθετη
περίπτωση
,
μπορεί
να
μειωθεί
η
απόδοση
.
**
Το
προτεινόμενο
ελάχιστο
μήκος
σωλήνα
είναι
10ft (3m),
προκειμένου
να
αποφευχθεί
ο
θόρυβος
από
την
εξωτερική
μονάδα
και
οι
κραδασμοί
.
(
Μπορεί
να
παρουσιαστεί
μηχανικός
θόρυβος
και
κραδασμοί
ανάλογα
με
τον
τρόπο
εγκατάστασης
της
μονάδας
και
το
περιβάλλον
όπου
χρησιμοποιείται
η
μονάδα
.)