Духовые шкафы Miele H7260B OBSW - инструкция пользователя по применению, эксплуатации и установке на русском языке. Мы надеемся, она поможет вам решить возникшие у вас вопросы при эксплуатации техники.
Если остались вопросы, задайте их в комментариях после инструкции.
"Загружаем инструкцию", означает, что нужно подождать пока файл загрузится и можно будет его читать онлайн. Некоторые инструкции очень большие и время их появления зависит от вашей скорости интернета.
Загружаем инструкцию

Монтаж
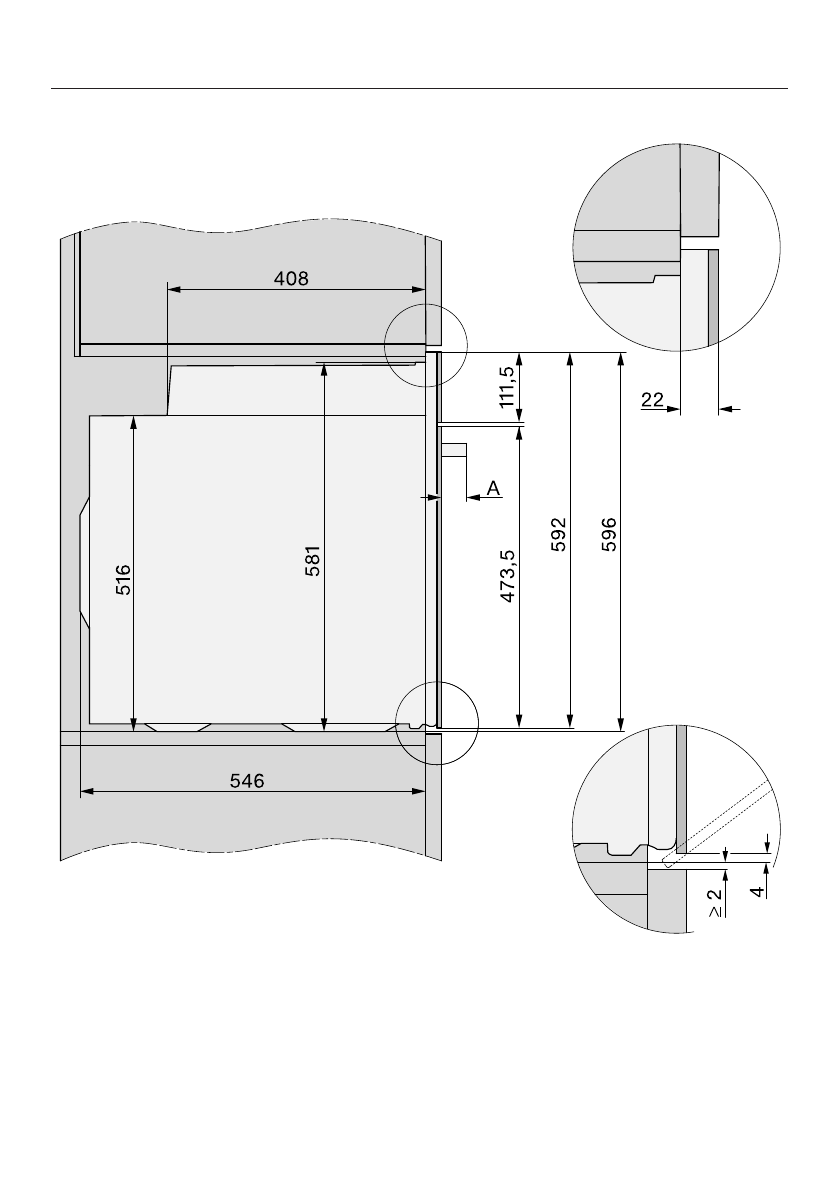
*INSTALLATION*
81
Вид сбоку
A
H 71xx: 43 мм
H 72xx: 47 мм
Содержание
- 2 Содержание
- 5 Указания по безопасности и предупреждения; Надлежащее использование; Этот духовой шкаф предназначен для использования в до-
- 6 Если у вас есть дети
- 7 Техническая безопасность
- 10 Правильная эксплуатация
- 12 Для поверхностей из нержавеющей стали:; Чистка и уход
- 13 Эмалированную каталитическую заднюю стенку можно снять; Принадлежности; Используйте исключительно оригинальные принадлежности
- 14 Ваш вклад в охрану окружающей среды; Утилизация прибора
- 15 Обзор; Духовой шкаф
- 16 Элементы управления; Сенсорная кнопка
- 17 Дисплей; появляется; Сенсорные кнопки; Сенсорные кнопки над дисплеем
- 18 Сенсорные кнопки под дисплеем
- 19 Символы; На экране дисплея могут появиться следующие символы:
- 20 Принцип управления; ОК; Выбор пункта меню; OK
- 21 Ввод чисел
- 22 Оснащение; Типовая табличка; Боковые направляющие
- 23 Универсальный противень HUBB 71:
- 25 Опасность получения ожогов
- 27 Круглая форма для выпечки
- 28 Боковые стенки
- 29 Функции безопасности; Блокировка запуска
- 30 Ввод в эксплуатацию; Основные установки; Опасность получения травм
- 31 Появляется; Выберите; Подтвердите нажатием кнопки
- 32 Установки; Обзор установок; Пункт меню
- 33 Открытие меню «Установки»; Индикация
- 34 Освещение; Яркость; Громкость звука; Звуковые сигналы
- 35 Звук нажатия кнопок; Единицы измерения; Температура; Рекоменд. температуры
- 36 Остат. ход вентилятора; Блокировка кнопок
- 37 Версия ПО; Заводские настройки
- 38 Таймер; Использование функции Таймер; Установка времени таймера
- 39 Изменение времени таймера; Удаление времени таймера
- 40 Главное меню и подменю; Меню
- 41 Советы по экономии электроэнергии; Процессы приготовления; - Вынимайте из рабочей камеры все; возможности используйте режим
- 42 расход электроэнергии.; или; Энергосберегающий режим
- 43 Управление прибором
- 44 Установка времени приготовления
- 48 Другие варианты использования; ние; Опасность заражения из-за
- 49 Консервирование
- 50 Консервирование овощей
- 51 Сушка; Извлечение продуктов для сушки
- 53 Выберите режим; и температуру 120 °C.
- 54 - Несколько раз переворачивайте; Подогрев посуды; Установите температуру 50–80 °C.
- 55 Опасность получения ожогов!
- 56 Выпекание; Рекомендации по выпеканию; - Всегда ставьте формы для выпечки
- 57 Выбор температуры; Указания по режимам работы; Следуйте указаниям на дисплее.
- 58 Не
- 59 Запекание; Советы по запеканию
- 60 Выбор времени приготовления
- 61 Выбирайте режим
- 62 Гриль
- 63 Для
- 65 Загрязнения остатками фрук-
- 67 Опасность получения ожога
- 68 Снятие дверцы; Дверца весит около 9 кг.
- 69 Разборка дверцы; Опасность получения травм от
- 70 Приподнимите
- 71 Установка дверцы; Полностью откройте дверцу.
- 73 Демонтаж задней стенки
- 79 Сервисная служба; Гарантия
- 80 Монтаж; Размеры для встраивания; Указания размеров приведены в мм.
- 83 Встраивание духового шкафа
- 84 Подключение к электросети; Опасность получения травм!
- 86 Таблицы приготовления; Сдобное тесто
- 87 Песочное тесто
- 88 Дрожжевое тесто
- 89 Творожно-сдобное тесто
- 90 Бисквитное тесто
- 91 Заварное тесто, слоёное тесто, белковая выпечка
- 92 Закуски; Продукт
- 93 Говядина
- 94 Телятина
- 95 Свинина
- 98 Данные для организаций, проводящих испытания и тесты; Тестовые блюда
- 99 Класс энергоэффективности; - Измерение проводится в режиме; - Выберите настройку
- 100 Гарантия качества товара
- 102 Контактная информация о Miele
- 103 Факс
Характеристики
Остались вопросы?Не нашли свой ответ в руководстве или возникли другие проблемы? Задайте свой вопрос в форме ниже с подробным описанием вашей ситуации, чтобы другие люди и специалисты смогли дать на него ответ. Если вы знаете как решить проблему другого человека, пожалуйста, подскажите ему :)
Часто задаваемые вопросы
Как посмотреть инструкцию к Miele H7260B OBSW?
Необходимо подождать полной загрузки инструкции в сером окне на данной странице
Руководство на русском языке?
Все наши руководства представлены на русском языке или схематично, поэтому вы без труда сможете разобраться с вашей моделью
Как скопировать текст из PDF?
Чтобы скопировать текст со страницы инструкции воспользуйтесь вкладкой "HTML"