Духовые шкафы Miele DO7860 BRWS - инструкция пользователя по применению, эксплуатации и установке на русском языке. Мы надеемся, она поможет вам решить возникшие у вас вопросы при эксплуатации техники.
Если остались вопросы, задайте их в комментариях после инструкции.
"Загружаем инструкцию", означает, что нужно подождать пока файл загрузится и можно будет его читать онлайн. Некоторые инструкции очень большие и время их появления зависит от вашей скорости интернета.
Загружаем инструкцию

Монтаж
*
I
N
S
T
A
L
L
A
T
I
O
N
*
146
Вид сбоку
Содержание
- 2 Содержание; Блокировка запуска
- 4 Использование предупреждающего сигнала
- 5 Управление: режимы приготовления М Chef
- 7 Удаление накипи из испарительной системы
- 8 Указания по безопасности и предупреждения
- 9 Надлежащее использование
- 10 Если у Вас есть дети
- 11 Опасность получения ожогов! Кожа детей чувствительнее
- 12 Техническая безопасность
- 15 Правильная эксплуатация; Опасность получения ожогов!
- 16 При использовании остаточного тепла для поддержания блюд
- 17 При разогреве блюд тепло образуется непосредственно в пи-
- 19 Посуда с полыми элементами ручек и крышек не подходит для
- 20 Для фронтальных панелей из нержавеющей стали действует правило:
- 21 Чистка и уход; Пар из пароструйного очистителя может попасть на детали,
- 22 Принадлежности
- 23 Ваш вклад в охрану окружающей среды; Утилизация прибора
- 24 Обзор; Комбинированный духовой шкаф
- 26 «утоплена» и реагирует на прикосновение.; Сенсорные кнопки; Функция
- 27 Сенсорный дисплей; верхней строке; центре дисплея; OK
- 28 Символы; На экране дисплея могут появиться следующие символы:
- 29 Принцип управления; Выбрать или вызвать меню
- 31 Оснащение; Обозначение модели; Боковые направляющие
- 32 Универсальный противень HUBB 51:
- 33 Камень для выпечки HBS 60
- 34 мов работы
- 35 Термощуп
- 36 Функции безопасности
- 37 Защитное отключение
- 38 Ввод в эксплуатацию; Основные установки; Текст приветствия на дисплее
- 41 Установки; Вызвать меню «Установки»; Вы находитесь в главном меню.; Изменение и сохранение установок; Подтвердите с помощью
- 42 Обзор установок; Пункт меню
- 44 Язык; Отображение; Дата
- 45 Стартовый экран; Дисплей; Фон; Звуковые сигналы
- 46 Звук нажатия кнопок; Мелодия приветствия; Единицы измерения; Вес; Температура
- 47 Пиролиз; Выберите нужный режим работы.; Безопасность; и держите
- 48 Блокировка кнопок; Катализатор; Выберите; Объединение в сеть
- 49 Установки модуля
- 50 Начать работу модуля
- 51 На дисплее появляется; ОК; Дистанционное управление; Символ
- 52 Функция SuperVision; Индикация SuperVision
- 53 Демонстрационный режим; Заводские настройки; Все записи MyMiele удаляются.
- 54 MyMiele; Добавить запись
- 55 Обработка MyMiele; Удаление записей
- 56 Предупреждающий сигнал + таймер
- 57 Использование таймера
- 58 Установка времени таймера
- 59 Технология M Chef; Принцип действия; Энергетические единицы Гурмэ
- 60 Интенсивность; Рецепты для режимов M Chef
- 61 Режим работы
- 63 В главном меню под; дятся меню; Программы Гурмэ Профи
- 64 Обзор режимов работы; Для приготовления блюд в распоряжении имеются различные режимы.; Режимы приготовления М Chef
- 65 », так как тепло сразу же распределяется
- 66 Обычные режимы работы
- 67 ется в рабочей камере.
- 68 Выбор посуды для режимов работы M Chef
- 69 Металл
- 70 Посуда с полыми элементами
- 71 Советы по экономии электроэнергии; Процессы приготовления
- 72 Выберите установку; Режим энергопотребления
- 73 Простое управление
- 74 Расширенное управление; температуру
- 75 Изменение температуры; Измените температуру.
- 77 Изменить интенсивность; Измените интенсивность.
- 78 Предварительный нагрев
- 80 Установка времени приготовления
- 84 Управление: обычные режимы работы
- 86 Быстрый разогрев
- 87 Конвекция плюс
- 88 Изменение режима работы
- 92 Режимы приготовления с использованием пара; ром; » и «Конвекция с; Другие жидкости, отличные от
- 93 дрожжевыми видами
- 94 Запуск паровых ударов вручную
- 96 Запуск паровых ударов
- 97 Выпаривание остатков воды; », «Конвекция с паром; Слив выпаренных остатков воды
- 99 Автоматические программы; Указания по использованию
- 101 Поиск
- 102 Персональные программы
- 104 Выпекание
- 106 Время выпекания; M Chef + Конвекция плюс
- 107 Запекание
- 110 Использование термощупа
- 111 Использование остаточного тепла
- 112 Низкотемпературное приготовление; Рекомендации; без костей; После приготовления
- 115 Запекание на гриле; M Chef + Гриль большой
- 116 Посуда; – Плоский продукт: уровень 3 или 4
- 117 Гриль; на; Проверка готовности
- 118 Специальные программы
- 119 Размораживание; Опасность распространения
- 120 Установите блюдо на решётку.
- 121 Сушка; Время сушки
- 122 Подогрев посуды; Подъем дрожжевого теста
- 123 Режим «Шаббат»; Использование режима «Шаббат»
- 124 Консервирование; Ёмкость для кипячения; Длительность консервирования; После консервирования
- 125 Приготовление
- 127 Загрязнения остатками фрук-; Нормальные загрязнения
- 128 Стойкие загрязнения
- 129 – ступень 1 при лёгком загрязнении
- 130 Запуск пиролитической очистки
- 131 и раздастся звуковой сиг-
- 132 – То, что вы выключили духовой
- 133 Ход процесса удаления накипи
- 134 Дополнительно таблетки мож-
- 135 или
- 136 После фазы воздействия
- 137 Выключите духовой шкаф.
- 142 Подсветка рабочей камеры неисправна.
- 144 Сервисная служба; – в сервисные центры Miele.
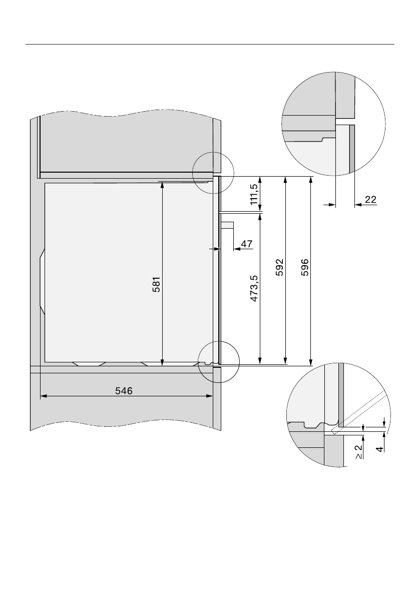
- 145 Монтаж; Размеры для встраивания; Указания размеров приведены в мм.
- 148 Встраивание; Духовой шкаф может исполь-
- 149 Подключение к электросети; Необходимые
- 150 Обзор программ Гурмэ Ассистент; Программы Гурмэ Ассистент
- 155 Обзор автоматических программ
- 160 Авторские права и лицензии; – размножение и распространение,
- 161 Заявление о соответствии товара
- 162 Гарантия качества товара
- 164 Контактная информация о Miele
- 165 Факс
Характеристики
Остались вопросы?Не нашли свой ответ в руководстве или возникли другие проблемы? Задайте свой вопрос в форме ниже с подробным описанием вашей ситуации, чтобы другие люди и специалисты смогли дать на него ответ. Если вы знаете как решить проблему другого человека, пожалуйста, подскажите ему :)
Часто задаваемые вопросы
Как посмотреть инструкцию к Miele DO7860 BRWS?
Необходимо подождать полной загрузки инструкции в сером окне на данной странице
Руководство на русском языке?
Все наши руководства представлены на русском языке или схематично, поэтому вы без труда сможете разобраться с вашей моделью
Как скопировать текст из PDF?
Чтобы скопировать текст со страницы инструкции воспользуйтесь вкладкой "HTML"