Варочная панель Gorenje IT310KR - инструкция пользователя по применению, эксплуатации и установке на русском языке. Мы надеемся, она поможет вам решить возникшие у вас вопросы при эксплуатации техники.
Если остались вопросы, задайте их в комментариях после инструкции.
"Загружаем инструкцию", означает, что нужно подождать пока файл загрузится и можно будет его читать онлайн. Некоторые инструкции очень большие и время их появления зависит от вашей скорости интернета.

38
ВЕНТИЛЯЦИЯ
ВЕНТИЛЯЦІЯ
VENTILATION
LÜFTUNG
WENTYLACJA
ВАЖНО
!
x
Соблюдайте
следующие
указания
по
установке
прибора
.
Недостаточный
доступ
охлаждающего
воздуха
может
стать
причиной
ограничения
функциональности
прибора
или
его
повреждения
.
x
В
случае
установки
индукционной
панели
над
ящиком
мебели
в
данном
ящике
не
должны
находиться
мелкие
предметы
и
бумаги
,
которые
могли
бы
забить
отверстия
вентиляторов
и
ограничить
охлаждение
индукционной
панели
.
ВАЖЛИВО
!
x
Дотримуйте
наступні
вказівки
по
установці
приладу
.
Недостатній
доступ
охолоджуючого
повітря
може
стати
причиною
обмеження
функціональності
приладу
або
його
пошкодження
.
x
У
випадку
,
коли
індукційну
панель
встановлено
над
ящиком
меблів
,
у
цьому
ящику
не
сміють
знаходитися
дрібні
предмети
і
папери
,
які
могли
б
забити
отвори
вентиляторів
і
обмежити
охолоджування
індукційної
панелі
.
IMPORTANT!
x
Observe the following
instructions for installation of
appliance. The insufficient
access of cooling air could
cause the limitation of
appliance or its damaging,
eventually.
x
If the hob is built in furniture
above case, there cant be
small pieces or sheets paper,
because ventilation inlets
could be stocked.
WICHTIG!
x
Beachten Sie die folgenden
Hinweise für Einbau des
Geräts.
x
Die ungenügende Zufuhr der
Kühlluft kann die Funktion des
Geräts begrenzen oder eben
zu Beschädigung des Geräts
zu führen.
x
Falls die Induk
tionsplatte über
einer Schublade angebracht
ist, dann in ihr keine kleine
Gegenstände oder
Papierstücke geladen werden
können, welche die
Saugöffnungen der
Ventilatoren verstopfen und
die Kühlung der
Induktionsplatte verhindern
könnten.
WA
Ż
NE OSTRZE
Ż
ENIE!
x
Nale
ż
y przestrzega
ć
poni
ż
szych wskazówek,
dotycz
ą
ch instalacji
urz
ą
dze
nia:
x
Niedostateczna ilo
ść
powietrza do ch
ł
odzenia,
mo
ż
e prowadzi
ć
do
nieprawid
ł
owego dzia
ł
ania
urz
ą
dzenia lub do jego
uszkodzenia.
x
W przypadku zamontowania
p
ł
yty indukcyjnej nad
szuflad
ą
, nie mog
ą
by
ć
w niej
umieszczone drobne
przedmioty oraz papiery,
które mog
ą
zatka
ć
otwór
ss
ą
cy wentylatora i
ograniczy
ć
ch
ł
odzenie p
ł
yty
indukcyjnej.
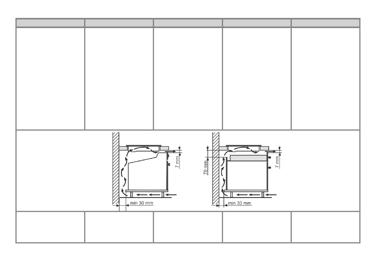
x
Задняя
стенка
нижнего
шкафчика
должна
быть
в
месте
отверстия
в
столешнице
открыта
,
чтобы
был
обеспечен
обмен
воздуха
.
x
Задня
стінка
нижньої
шафки
повинна
бути
у
області
вирізу
у
стільниці
відкритою
,
щоб
було
забезпечно
циркуляцію
повітря
.
x
The rear wall of lower cabinet
in the area of cut out has to
be open, for to ensure the air
exchange.
x
The front reinforcement of
x
Die Hinterwand des unteren
Schrankes muss in dem
Bereich des Ausschnitts des
Arbeitbrettes offen gehalten,
für den Luftaustausch zu
ermöglichen.
x
Tylna
ś
ciana szafki pod p
ł
yt
ą
musi by
ć
otwarta, tak aby
zabezpieczy
ć
wymian
ę
powietrza.
x
Nale
ż
y usuna
ć
przedni
ą