Винные шкафы AEG SWB61501DG - инструкция пользователя по применению, эксплуатации и установке на русском языке. Мы надеемся, она поможет вам решить возникшие у вас вопросы при эксплуатации техники.
Если остались вопросы, задайте их в комментариях после инструкции.
"Загружаем инструкцию", означает, что нужно подождать пока файл загрузится и можно будет его читать онлайн. Некоторые инструкции очень большие и время их появления зависит от вашей скорости интернета.

ITALIANO
79
LUOGO D'INSTALLAZIONE
È importante garantire un'adeguata
circolazione d'aria intorno
all'apparecchiatura, per evitare un
possibile surriscaldamento. Per ottenere
un'aerazione sufficiente, seguire le
relative istruzioni di installazione.
Installare l'apparecchiatura in un luogo
la cui temperatura ambiente corrisponda
alla classe climatica indicata sulla
targhetta dei dati dell'apparecchiatura:
COLLEGAMENTO ELETTRICO
ATTENZIONE!
Se si rendesse necessaria una
modifica all'impianto elettrico per
l'installazione dell’apparecchiatur
a, l’intervento dovrà essere effet-
tuato da personale qualificato e
competente.
Classe
climatica
Temperatura
ambiente
SN
da +10 °C a +32 °C
N
da +16 °C a +32 °C
ST
da +16 °C a +38 °C
T
da +16 °C a +43 °C
AVVERTENZA!
Questa apparecchiatura deve
essere collegata alla messa a
terra. Il costruttore declina ogni
responsabilità qualora non siano
rispettate le norme di sicurezza.
Consultare un elettricista qualificato o
un addetto se le istruzioni per la messa
a terra non sono state comprese appieno
o in caso di dubbi sull'adeguata messa
a terra dell'apparecchiatura.
Prima di inserire la spina, verificare che
la tensione e la frequenza riportate sulla
targhetta dei dati corrispondano a quelle
dell'impianto domestico.
AVVERTENZA!
Si consiglia di attendere 4 ore
prima di collegare ed installare
l'apparecchiatura per permettere
al refrigerante di fluire nuovamente
nel compressore.
Questa apparecchiatura deve essere
collegata alla messa a terra.
La spina del cavo di alimentazione
è dotata di un apposito contatto.
Se la presa di corrente non è messa
a terra, collegare l’apparecchiatura
ad un dispositivo di terra separato
conformemente alle normative vigenti.
Rivolgersi a un elettricista qualificato.
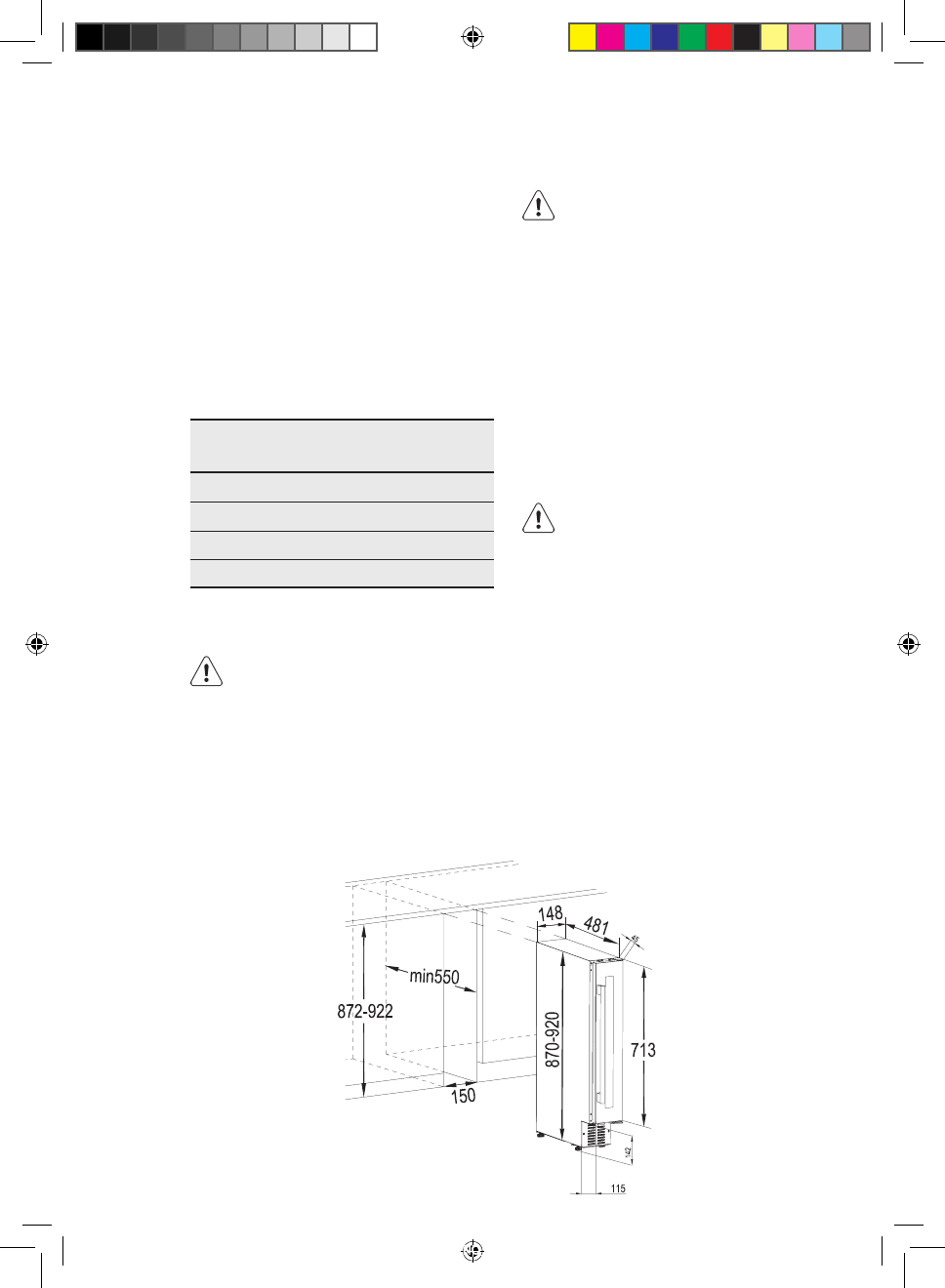
INSTALLAZIONE
DIMENSIONI DI INSTALLAZIONE (IN MM)
E REQUISITI DI VENTILAZIONE
SWB61501DG-SWE61501DG_Wine_cellar_AEG_CZ_DA_EN_FI_FR_IT_NO_PL_RU_SK_SV_UK.indd 79
2017-06-28 10:06:04
Содержание
- 115 СВЕДЕНИЯ ПО ТЕХНИКЕ БЕЗОПАСНОСТИ
- 116 УКАЗАНИЯ ПО БЕЗОПАСНОСТИ
- 117 ЭКСПЛУАТАЦИЯ
- 119 ВКЛЮЧЕНИЕ; ЕЖЕДНЕВНОЕ ИСПОЛЬЗОВАНИЕ; ОЧИСТКА
- 120 ХРАНЕНИЕ ВИНА
- 121 РАЗМЕЩЕНИЕ; УСТАНОВКА; И ТРЕБОВАНИЯ К ВЕНТИЛЯЦИИ
- 122 УХОД И ОЧИСТКА; ЗАМЕНА ЛАМПЫ
- 123 ПЕРЕРЫВЫ В; ПОИСК И УСТРАНЕНИЕ НЕИСПРАВНОСТЕЙ; СБОЙ В СЕТИ
- 125 ШУМЫ ПРИ РАБОТЕ
- 126 ТЕХНИЧЕСКИЕ ДАННЫЕ
- 127 ОХРАНА ОКРУЖАЮЩЕЙ СРЕДЫ; УПАКОВОЧНЫЕ
Характеристики
Остались вопросы?Не нашли свой ответ в руководстве или возникли другие проблемы? Задайте свой вопрос в форме ниже с подробным описанием вашей ситуации, чтобы другие люди и специалисты смогли дать на него ответ. Если вы знаете как решить проблему другого человека, пожалуйста, подскажите ему :)













