Винные шкафы AEG SWB61501DG - инструкция пользователя по применению, эксплуатации и установке на русском языке. Мы надеемся, она поможет вам решить возникшие у вас вопросы при эксплуатации техники.
Если остались вопросы, задайте их в комментариях после инструкции.
"Загружаем инструкцию", означает, что нужно подождать пока файл загрузится и можно будет его читать онлайн. Некоторые инструкции очень большие и время их появления зависит от вашей скорости интернета.

163
УКРАЇНА
РОЗМІЩЕННЯ
Повітря має вільно циркулювати
довкола приладу, аби попередити
перегрівання. Щоб забезпечити
належну вентиляцію, дотримуйтеся
інструкцій щодо встановлення.
Встановіть прилад у місці,
де температура навколишнього
середовища відповідає кліматичному
класу, вказаному на табличці
з технічними даними приладу:
ПІД’ЄДНАННЯ ДО
ЕЛЕКТРОМЕРЕЖІ
УВАГА!
Будь-які електротехнічні роботи,
необхідні для встановлення
цього приладу, мають
виконуватися кваліфікованим
електриком або іншою
компетентною особою.
Кліматичний
клас
Температура
навколишнього
середовища
SN
від +10°C до +32°C
N
від +16°C до +32°C
ST
від +16°C до +38°C
T
від +16°C до +43°C
ПОПЕРЕДЖЕННЯ!
Цей прилад необхідно
заземлити. Виробник не несе
жодної відповідальності за
наслідки недотримання цих
заходів безпеки.
Зверніться до кваліфікованого
електрика або спеціаліста служби
сервісу, якщо інструкції щодо
заземлення не зовсім зрозумілі,
або, якщо є сумніви у тому, що прилад
правильно заземлений.
Перш ніж під’єднати прилад до
електромережі, переконайтеся,
що показники напруги й частоти,
вказані на табличці з паспортними
даними, відповідають показникам
мережі у вашому регіоні.
ПОПЕРЕДЖЕННЯ!
Рекомендується зачекати
щонайменше 4 години, перш ніж
підключати та встановлювати
прилад, з тим щоб масло
повернулося до компресора.
Прилад повинен бути заземленим.
З цією метою вилка приладу оснащена
спеціальним контактом.
Якщо у розетці немає заземлення,
заземліть прилад окремо у відповідності
до чинних нормативних вимог.
Проконсультуйтесь із кваліфікованим
електриком.
ВСТАНОВЛЕННЯ
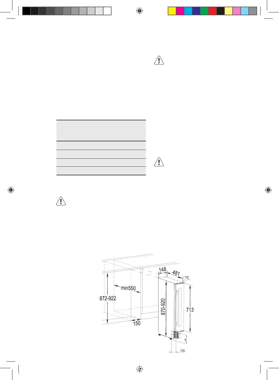
ВИМОГИ ДО РОЗМІРІВ НІШІ ДЛЯ ВСТАНОВЛЕННЯ (ММ)
ТА ВЕНТИЛЯЦІЇ
SWB61501DG-SWE61501DG_Wine_cellar_AEG_CZ_DA_EN_FI_FR_IT_NO_PL_RU_SK_SV_UK.indd 163
2017-06-28 10:06:21
Содержание
- 115 СВЕДЕНИЯ ПО ТЕХНИКЕ БЕЗОПАСНОСТИ
- 116 УКАЗАНИЯ ПО БЕЗОПАСНОСТИ
- 117 ЭКСПЛУАТАЦИЯ
- 119 ВКЛЮЧЕНИЕ; ЕЖЕДНЕВНОЕ ИСПОЛЬЗОВАНИЕ; ОЧИСТКА
- 120 ХРАНЕНИЕ ВИНА
- 121 РАЗМЕЩЕНИЕ; УСТАНОВКА; И ТРЕБОВАНИЯ К ВЕНТИЛЯЦИИ
- 122 УХОД И ОЧИСТКА; ЗАМЕНА ЛАМПЫ
- 123 ПЕРЕРЫВЫ В; ПОИСК И УСТРАНЕНИЕ НЕИСПРАВНОСТЕЙ; СБОЙ В СЕТИ
- 125 ШУМЫ ПРИ РАБОТЕ
- 126 ТЕХНИЧЕСКИЕ ДАННЫЕ
- 127 ОХРАНА ОКРУЖАЮЩЕЙ СРЕДЫ; УПАКОВОЧНЫЕ
Характеристики
Остались вопросы?Не нашли свой ответ в руководстве или возникли другие проблемы? Задайте свой вопрос в форме ниже с подробным описанием вашей ситуации, чтобы другие люди и специалисты смогли дать на него ответ. Если вы знаете как решить проблему другого человека, пожалуйста, подскажите ему :)













