Винные шкафы AEG SWB61501DG - инструкция пользователя по применению, эксплуатации и установке на русском языке. Мы надеемся, она поможет вам решить возникшие у вас вопросы при эксплуатации техники.
Если остались вопросы, задайте их в комментариях после инструкции.
"Загружаем инструкцию", означает, что нужно подождать пока файл загрузится и можно будет его читать онлайн. Некоторые инструкции очень большие и время их появления зависит от вашей скорости интернета.

SLOVENSKY
135
UMIESTNENIE
Okolo spotrebiča musí byť zabezpečené
dostatočné vetranie, aby sa predišlo
prehrievaniu. Dostatočné vetranie
zabezpečíte tak, že sa budete riadiť
pokynmi na inštaláciu.
Tento spotrebič nainštalujte v mieste, kde
teplota prostredia zodpovedá klimatickej
triede uvedenej na typovom štítku
spotrebiča:
ZAPOJENIE DO
ELEKTRICKEJ SIETE
POZOR!
Akékoľvek práce súvisiace
so zapojením do elektrickej
siete spotrebiča musí vykonať
kvalifikovaný elektrikár alebo
zaškolená osoba.
Klimatická
trieda
Okolitá
teplota
SN
+10 °C až +32 °C
N
+16 °C až +32 °C
ST
+16 °C až +38 °C
T
+16 °C až +43 °C
VAROVANIE!
Tento prístroj musí byť uzemnený.
V prípade nedodržania týchto
bezpečnostných opatrení výrobca
odmieta akúkoľvek zodpovednosť.
V prípade neúplného pochopenia
pokynov ohľadom uzemnenia alebo
pochybností o správnom uzemnení
spotrebiča sa obráťte na kvalifikovaného
elektrikára alebo servisného technika.
Pred pripojením sa presvedčte, či
napätie a frekvencia uvedené na
typovom štítku zodpovedajú parametrom
vašej domácej elektrickej siete.
VAROVANIE!
Odporúčame vám počkať 4 hodiny
pred zapojením a nainštalovaním
spotrebiča, aby mohlo chladivo
vtiecť späť do kompresora.
Spotrebič musí byť uzemnený.
Napájací elektrický kábel je na tento
účel vybavený príslušným kontaktom.
Ak domáca sieťová zásuvka nie
je uzemnená, spotrebič pripojte
k samostatnému uzemneniu v súlade
s platnými predpismi.
Poraďte sa s elektrikárom.
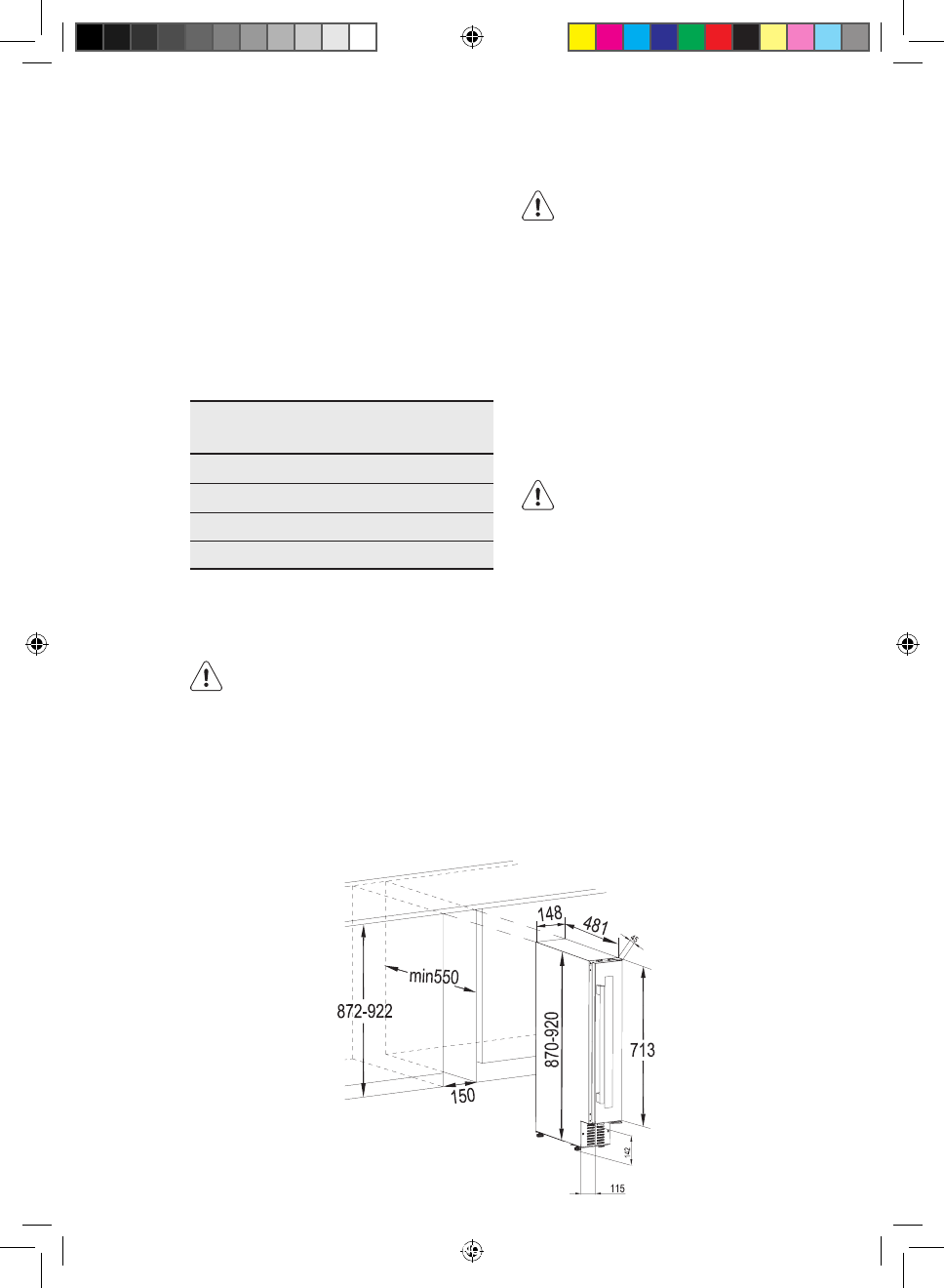
INŠTALÁCIA
ROZMERY INŠTALÁCIE (MM)
A POŽIADAVKY NA VETRANIE
SWB61501DG-SWE61501DG_Wine_cellar_AEG_CZ_DA_EN_FI_FR_IT_NO_PL_RU_SK_SV_UK.indd 135
2017-06-28 10:06:14
Содержание
- 115 СВЕДЕНИЯ ПО ТЕХНИКЕ БЕЗОПАСНОСТИ
- 116 УКАЗАНИЯ ПО БЕЗОПАСНОСТИ
- 117 ЭКСПЛУАТАЦИЯ
- 119 ВКЛЮЧЕНИЕ; ЕЖЕДНЕВНОЕ ИСПОЛЬЗОВАНИЕ; ОЧИСТКА
- 120 ХРАНЕНИЕ ВИНА
- 121 РАЗМЕЩЕНИЕ; УСТАНОВКА; И ТРЕБОВАНИЯ К ВЕНТИЛЯЦИИ
- 122 УХОД И ОЧИСТКА; ЗАМЕНА ЛАМПЫ
- 123 ПЕРЕРЫВЫ В; ПОИСК И УСТРАНЕНИЕ НЕИСПРАВНОСТЕЙ; СБОЙ В СЕТИ
- 125 ШУМЫ ПРИ РАБОТЕ
- 126 ТЕХНИЧЕСКИЕ ДАННЫЕ
- 127 ОХРАНА ОКРУЖАЮЩЕЙ СРЕДЫ; УПАКОВОЧНЫЕ
Характеристики
Остались вопросы?Не нашли свой ответ в руководстве или возникли другие проблемы? Задайте свой вопрос в форме ниже с подробным описанием вашей ситуации, чтобы другие люди и специалисты смогли дать на него ответ. Если вы знаете как решить проблему другого человека, пожалуйста, подскажите ему :)













