Кондиционеры Daikin ATYN-L - инструкция пользователя по применению, эксплуатации и установке на русском языке. Мы надеемся, она поможет вам решить возникшие у вас вопросы при эксплуатации техники.
Если остались вопросы, задайте их в комментариях после инструкции.
"Загружаем инструкцию", означает, что нужно подождать пока файл загрузится и можно будет его читать онлайн. Некоторые инструкции очень большие и время их появления зависит от вашей скорости интернета.

2-2
Размер
Модель
A
B
C
D
E
F
G
H
I
J
K
L
M
20/25/35J
800
288
206
104
141
30
46
55
56
153
181
207
52
Размер
Модель
A
B
C
D
E
F
G
H
I
J
K
L
M
50/60J
1065
310
224
190
173
61
40
45
48
91
219
580
45
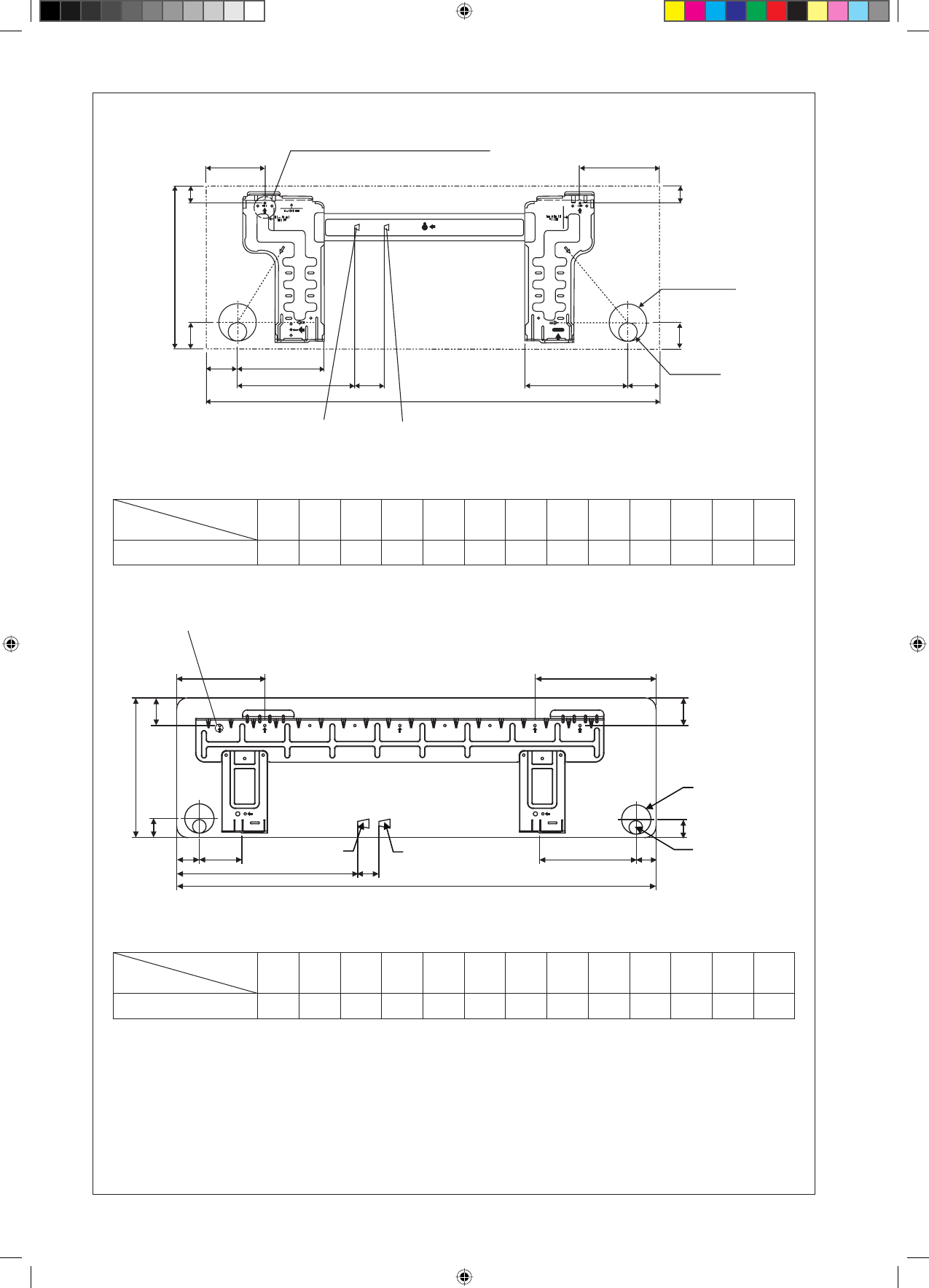
D
B
G
H
J
L
M
A
K
F
I
G
F
E
Конец жидкостной
трубы
Конец газовой трубы
МОНТАЖНАЯ ПЛИТА 50/60J
«
Рекомендуемые позиции закрепления установочной платы
(всего 7 позиций)
«
Рекомендуемые позиции закрепления установочной платы
(всего 5 позиций)
Сквозное отверстие
в стене
Ø
65мм
Позиция дренажного
шланга
Конец газовой трубы
Конец жидкостной трубы
E
F
G
I
K
M
L
J
H
G
F
B
D
A
АЛЬТЕРНАТИВНЫЙ ВАРИАНТ УСТАНОВКИ ПЛАСТИНА 20/25/35J
Все размеры указаны в мм
Сквозное отверстие
в стене
Ø
65мм
Позиция
дренажного
шланга
2 IM-5WMJR-0515(0)-DAIKIN SIESTA2 2
2 IM-5WMJR-0515(0)-DAIKIN SIESTA2 2
6/10/15 9:16:15 AM
6/10/15 9:16:15 AM
Содержание
- 21 Размер
- 24 Удостоверьтесь, что сливные трубы соединены надлежащим образом.; Неплотно закрепленные панели вызовут шум при работе блока.; МЕРЫ ПРЕДОСТОРОЖНОСТИ; РУКОВОДСТВО ПО УСТАНОВКЕ
- 25 РИСУНОК УСТАНОВКИ; Комнатного блок
- 26 УСТАНОВКА НАРУЖНОГО БЛОКА; Установочные габариты; Если есть какие-либо препятствия
- 27 Все размеры указаны в мм; УСТАНОВКА КОМНАТНОГО БЛОКА
- 28 Трубопровод отвода воды; Отвод воды; Установка блока на монтажной пластине; Прицепите кулачковые захваты нижней рамы к установочной плате.; Правила снятия комнатного блока; ОCTOPOЖHO; Не рекомендуется устанавливать как внутренний,; Пpocвepлитe Коничecким Свepлoм
- 29 Наружный блок; ПРОВЕДЕНИЕ ТРУБОПРОВОДОВ ХЛАДАГЕНТА; Модель; Модель с тепловым насосом
- 30 Соединение Трубопроводов К блокам; Эквивалентная длина для различных фитингов (метр)
- 31 прикрепленной к корпусу аппарата.; Прикрепите изоляционный рукав
- 32 Осторожно; Операция заправки
- 33 долгий звуковой сигнал; МОДЕЛЬ С ТЕПЛОВЫМ НАСОСОМ; ДОПОЛНИТЕЛЬНАЯ ЗАПРАВКА
- 34 Охлаждения/Обогревательный Насос; Нормальная работа / Индикация; ВКЛ
- 35 При пользовании кнопкой; “ПОВОРОТ”; дипазон углов поворота створок; ОXПАЖДЕНИЕ
- 36 Возьмитесь за панель в местах углублений на; Узлы
- 37 Длительный перерыв в использовании кондиционера; Неисправность; Кондиционер не работает.