Кондиционеры Daikin ATXC60B/ARXC60B 104366 - инструкция пользователя по применению, эксплуатации и установке на русском языке. Мы надеемся, она поможет вам решить возникшие у вас вопросы при эксплуатации техники.
Если остались вопросы, задайте их в комментариях после инструкции.
"Загружаем инструкцию", означает, что нужно подождать пока файл загрузится и можно будет его читать онлайн. Некоторые инструкции очень большие и время их появления зависит от вашей скорости интернета.

3-11
Deutsch
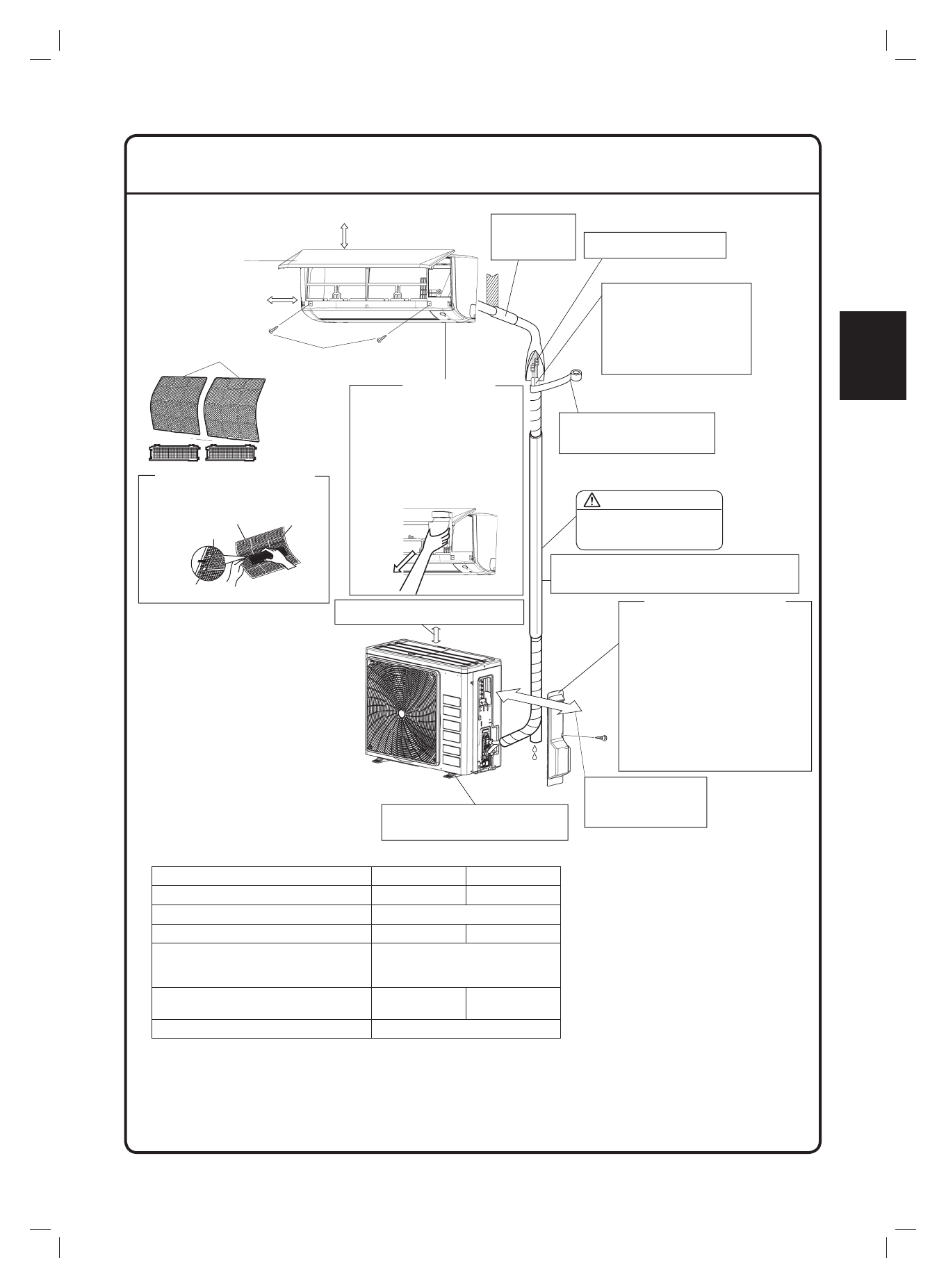
INSTALLATIONSSKIZZEN FÜR DIE INNEN-/
AUSSENBEREICHSEINHEIT
500mm from w
all
Der Wartungsdeckel ist abnehmbar
Öffnungsmethode
1) Entfernen Sie die Schrauben
des Wartungsdeckels
2) Ziehen Sie den
Wartungsdeckel in
Pfeilrichtung diagonal nach
unten heraus.
3) Ziehen Sie nach unten.
Wartungsdeckel
55mm oder mehr
unterhalb der Decke
Hohlraumspalte
mit
Spachtelmasse.
Die Bördelverbindung muss
im Freien installiert werden
Das Wärmeisolierungsrohr
muss auf die entsprechende
Länge zugeschnitten und
mit Klebeband umwickelt
werden, wobei darauf zu
achten ist, dass keine
Spalte in der Schnittlinie des
Isolierrohrs verbleibt.
Umwickeln Sie das Isolierrohr
mit dem Abschlussband von
unten nach oben.
Kältemittelleitungen müssen vor physischer
Beschädigung geschützt werden. Installieren Sie
eine Kunststoffabdeckung oder etwas Ähnliches.
VORSICHTSHINWEIS
Legen Sie die
Rohrleitungslänge
zwischen 3m und 30m fest
Berücksichtigen
Sie den Platz für
Rohrleitungen und eine
elektrische Wartung.
Sollte Gefahr bestehen, dass die
Einheit herunterfällt, verwenden Sie
Fußschrauben.
Berücksichtigen Sie 300mm an
Arbeitsraum unterhalb der Decken
fl
äche.
Luft
fi
lter
Frontblende
Luft
fi
lter
Filterrahmen
Register
Titan-Apatit-
Desodorierungs
fi
lter
Titan-Apatit-Desodorierungs
fi
lter (2)
Schrauben
(M4 x 12L)
50mm oder mehr von
Wänden (auf beiden
Seiten) entfernt
Wie man die Absperrventilabdeckung
entfernt.
• Schraube an der
Absperrventilabdeckung entfernen.
• Schieben Sie den Deckel nach
unten, um ihn entfernen zu können.
Wie man die Absperrventilabdeckung
befestigt.
• Führen Sie den oberen Teil der
Absperrventilabdeckung in die
Außeneinheit ein, um sie zu
installieren.
• Schrauben festziehen.
Absperrventilabdeckung
500mm von Wänden
ARXC20/25/35
ARXC50/60/71
Max. zulässige Rohrleitungslänge
20m
30m
Min. zulässige Rohrleitungslänge**
3m
Max. zulässige Rohrleitungshöhe
15m
20m
Für Kältemittelleitungen, die länger als
7,5 m sind, wird zusätzliches Kältemittel
benötigt*
17g/m
Gasleitung
3/8 zoll
(9,52mm)
1/2 zoll
(12,7mm)
Flüssigkeitsrohr
1/4 zoll (6,4mm)
* Stellen Sie sicher, dass die richtige Menge an zusätzlichem Kältemittel hinzugefügt wird.
Eine Nichtbeachtung kann zu einer eingeschränkten Leistung führen.
** Die empfohlene kürzeste Rohrlänge muss 10 Fuß (3m) betragen, um Geräusche von der Außeneinheit und Vibrationen zu
vermeiden.
(Abhängig von der Art der Installation der Einheit und der Umgebung, in der sie betrieben wird, können mechanische Geräusche
und Vibrationen auftreten.)