Компрессоры Бежецк АСО К-22 2552 - инструкция пользователя по применению, эксплуатации и установке на русском языке. Мы надеемся, она поможет вам решить возникшие у вас вопросы при эксплуатации техники.
Если остались вопросы, задайте их в комментариях после инструкции.
"Загружаем инструкцию", означает, что нужно подождать пока файл загрузится и можно будет его читать онлайн. Некоторые инструкции очень большие и время их появления зависит от вашей скорости интернета.

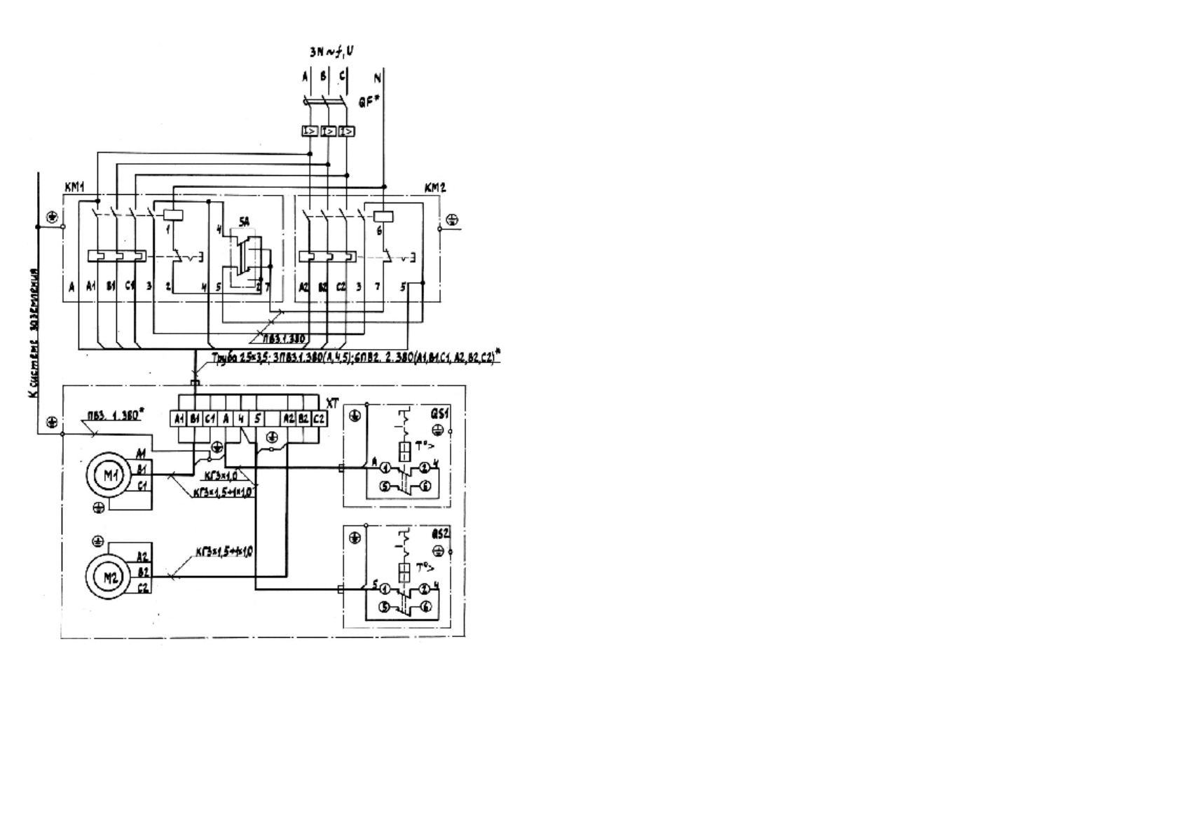
Рис
.36.
Схема
электрическая
принципиальная
и
соединений
установки
компрессорной
,
модель
К
-20
Схема
электрическая
принципиальная
и
соединений
установки
компрессорной
,
модель
К
-30
(
различием
является
кабель
от
двигателей
М
1
и
М
2
до
клеммного
блока
КГ
3
×
1,0+1
×
1,0).
74
Для
поддержания
в
ресивере
необходимого
для
работы
давления
в
пределах
заданных
значений
и
для
автоматического
включения
и
выключения
двигателя
служит
реле
давления
(
рис
.23
и
24).
Тепловые
элементы
,
встроенные
в
реле
давления
,
защищают
электродвигатель
установок
К
-2,
К
-22
и
КВ
-15
от
длитель
-
ных
перегрузок
.
Принцип
реле
давления
зарубежной
фирмы
основан
на
сравнении
сил
,
воз
-
никающих
от
давления
сжатого
воздуха
,
передаваемого
мембраной
и
сил
упру
-
гой
деформации
пружины
.
Для
ручного
управления
двигателем
установки
на
реле
имеется
переключатель
.
Настройка
реле
давления
М
DR 3/11
или
М
DR 3/25
осуществляется
сле
-
дующим
образом
:
-
снять
защитный
кожух
;
-
отрегулировать
диапазон
рабочего
давления
(
Р
отк
.
и
Р
вкл
.
) –
для
этого
вра
-
щать
болт
,
сжимая
или
отпуска
пружину
большего
диаметра
;
-
отрегулировать
величину
перепада
(
∆Р
)
между
давлением
отключения
(
Р
отк
.
)
и
давлением
включения
(
Р
вкл
.
) –
для
этого
вращать
болт
,
сжимая
или
от
-
пуская
пружину
меньшего
диаметра
.
Настройка
реле
давления
М
DR 2/11
осуществляется
следующим
образом
:
-
снять
защитный
кожух
;
-
отрегулировать
диапазон
рабочего
давления
(
Р
отк
.
и
Р
вкл
.
) –
для
этого
вра
-
щать
на
равное
число
оборотов
гайки
на
обеих
шпильках
,
сжимая
или
отпуская
пружину
.
-
отрегулировать
величину
перепада
(
∆Р
)
между
давлением
отключения
(
Р
отк
.
)
и
давлением
включения
(
Р
вкл
.
) –
для
этого
вращать
болт
, (
он
удерживает
пружину
меньшего
диаметра
)
сжимая
или
отпуская
пружину
.
В
какую
сторону
производить
вращение
винта
указывают
рядом
располо
-
женные
стрелки
.
Знак
+ (
плюс
)
около
стрелки
указывает
на
увеличение
величи
-
ны
рабочего
давления
,
знак
– (
минус
)
около
стрелки
указывает
на
уменьшение
величины
рабочего
давления
.
Число
оборотов
,
на
которое
необходимо
повернуть
гайки
или
винт
при
настройке
реле
,
определяется
непосредственно
на
компрессорной
установке
опытным
путем
,
при
этом
изменение
величины
давления
определяют
по
мано
-
метру
на
ресивере
.
Реле
давления
зарубежной
фирмы
позволяет
осуществлять
регулировку
дав
-
ления
от
0,4
МПа
до
1,0
МПа
–
для
К
-2,
К
-3,
К
-30,
К
-31,
КВ
-15
и
от
0,75
МПа
до
1,6
МПа
–
для
К
-20,
К
-22
с
перепадом
от
min 0,2
МПа
до
0,35
МПа
.
7












