Компрессоры Бежецк АСО К-22 2552 - инструкция пользователя по применению, эксплуатации и установке на русском языке. Мы надеемся, она поможет вам решить возникшие у вас вопросы при эксплуатации техники.
Если остались вопросы, задайте их в комментариях после инструкции.
"Загружаем инструкцию", означает, что нужно подождать пока файл загрузится и можно будет его читать онлайн. Некоторые инструкции очень большие и время их появления зависит от вашей скорости интернета.

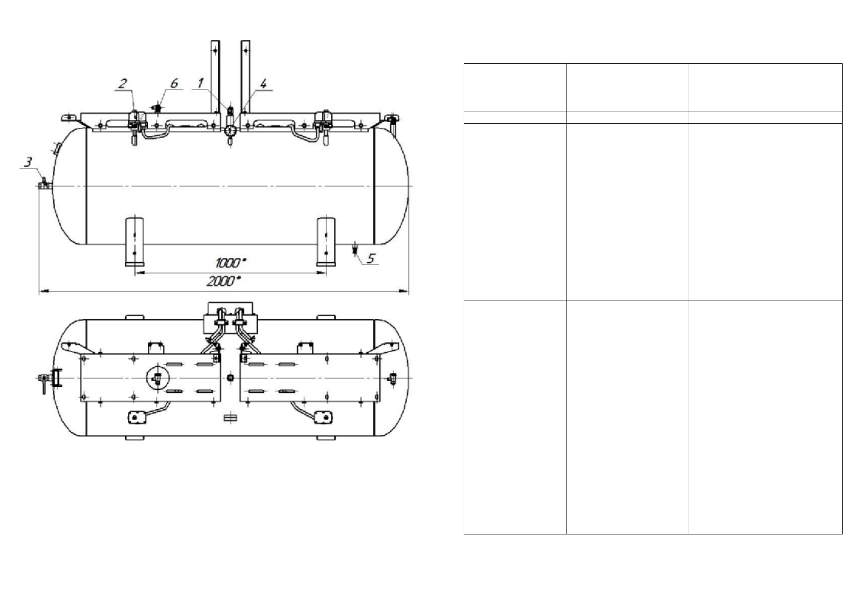
Рис
.18.
Ресивер
установки
компрессорной
,
модель
К
-30:
1-
клапан
предохранительный
; 2-
реле
давления
; 3-
вентиль
раздаточ
-
ный
; 4-
манометр
контроля
давления
воздуха
; 5-
пробка
сливная
;
6-
клапан
обратный
.
56
11.
ВОЗМОЖНЫЕ
ПРИЧИНЫ
ОТКАЗОВ
И
ПОВРЕЖДЕНИЙ
Таблица
8
Наименование
неис
-
правности
,
внешнее
проявление
и
допол
-
нительные
признаки
Вероятная
причина
Методы
устранения
1
2
3
Уменьшилась
про
-
изводительность
установки
Утечка
воздуха
через
не
плотности
соединений
.
Поломка
и
зависание
клапанных
пластин
.
Не
герметичность
кла
-
панного
блока
из
-
за
пло
-
хого
прилегания
клапа
-
нов
или
клапанных
пла
-
стин
.
Засорился
воздушный
фильтр
.
Износ
,
поломка
или
пригорание
поршневых
колец
.
Определить
место
утечки
и
устранить
.
Промыть
клапаны
,
заменить
клапанные
пластины
.
Клапанный
блок
разобрать
,
очистить
,
промыть
,
дефектные
пластины
заменить
новыми
,
поверхности
прилегания
вы
-
ровнять
.
Промыть
фильтр
от
загряз
-
нения
или
заменить
фильтро
-
элемент
.
Заменить
дефектные
порш
-
невые
кольца
(
в
комплекте
).
Повышенный
нагрев
компрессор
-
ной
головки
Недостаточное
охла
-
ждение
.
Несвоевременная
заме
-
на
загрязненного
масла
после
длительной
работы
головки
.
Применение
марки
масла
,
не
соответствую
-
щего
указанному
в
пас
-
порте
.
Сильная
затяжка
ша
-
тунных
болтов
(
после
об
-
катки
или
ремонта
голов
-
ки
),
ограничивающая
по
-
ступление
масло
к
вкла
-
дышам
.
Ослабление
затяжки
шпилек
крепления
блока
.
Очистить
загрязненные
по
-
верхности
головки
.
Заменить
масло
,
следить
за
пе
-
риодичностью
замены
.
Заменить
масло
указанным
в
паспорте
.
Произвести
требуемую
затяж
-
ку
в
соответствии
с
таблицами
11
и
12.
Произвести
требуемую
затяжку
шпилек
в
соответствии
с
табли
-
цами
11
и
12.
25











