Компрессоры Бежецк АСО К-22 2552 - инструкция пользователя по применению, эксплуатации и установке на русском языке. Мы надеемся, она поможет вам решить возникшие у вас вопросы при эксплуатации техники.
Если остались вопросы, задайте их в комментариях после инструкции.
"Загружаем инструкцию", означает, что нужно подождать пока файл загрузится и можно будет его читать онлайн. Некоторые инструкции очень большие и время их появления зависит от вашей скорости интернета.

Воздушный
фильтр
(
рис
.9
и
10)
устанавливается
на
всасывающем
фланце
го
-
ловки
блока
цилиндров
.
Воздух
,
поступая
в
фильтр
,
проходит
через
фильтроэле
-
мент
,
изготовленный
на
основе
ультратонкого
стекловолокна
,
и
направляется
по
патрубку
во
всасывающую
полость
крышки
блока
цилиндров
.
Охлаждение
компрессорной
головки
осуществляется
воздушным
потоком
,
со
-
здаваемым
лопастями
маховика
–
вентилятора
.
Направление
вращения
должно
быть
таким
,
чтобы
воздушный
поток
был
направлен
на
компрессорную
головку
.
Система
охлаждения
обеспечивает
для
поддержания
нормальной
температуры
деталей
головки
,
масла
и
межступенчатое
охлаждение
воздуха
.
Коллектор
одновременно
является
гасителем
пульсации
сжатого
воздуха
.
Предохранительный
клапан
,
установленный
на
коллекторе
,
является
сигна
-
лизирующим
устройством
при
неисправностях
в
клапанной
системе
.
Клапан
регулируется
на
давление
0,45±0,03
МПа
.
При
повышении
вышеука
-
занного
давления
пружина
,
сжимаясь
,
освобождает
шарик
и
клапан
,
сообщает
кол
-
лектор
с
атмосферой
.
При
понижении
давления
до
нормального
шарик
под
дей
-
ствием
пружины
перекрывает
отверстие
в
корпусе
.
Пружина
регулируется
гайкой
и
фиксируется
контргайкой
.
Корпус
,
головка
клапана
и
контргайка
пломбируются
.
4.1.2.
Ресивер
Ресивер
(
рис
.14…20)
представляет
собой
стальной
сварной
сосуд
с
выпуклы
-
ми
эллиптическими
днищами
,
имеющий
опоры
.
В
зависимости
от
модели
компрессорной
установки
на
ресивере
,
кроме
голов
-
ки
компрессорной
и
электродвигателя
,
смонтированных
на
плите
,
устанавливаются
узлы
и
приборы
,
представленные
в
таблице
3.
Таблица
3
Сжатый
воздух
по
нагнетательному
трубопроводу
,
через
обратный
клапан
(
рис
.25)
поступает
в
ресивер
.
Обратный
клапан
препятствует
обратному
воздей
-
ствию
сжатого
воздуха
из
ресивера
на
компрессорную
головку
при
ее
останове
.
Для
отвода
конденсата
из
ресивера
предусмотрена
сливная
пробка
.
6
75
Наименование
Количество
для
установок
К
-2
К
-3
К
-6
К
-20
К
-22
К
-30
К
-31
КВ
-
15
Клапан
предохранительный
Регулятор
давления
Реле
давления
Манометр
Вентиль
раздаточный
Обратный
клапан
1
-
1
1
1
1
1
-
2
1
1
2
1
1
-
1
1
1
1
-
2
1
1
2
1
-
1
1
1
1
1
-
2
1
1
2
1
-
1
1
1
1
1
-
1
1
1
1
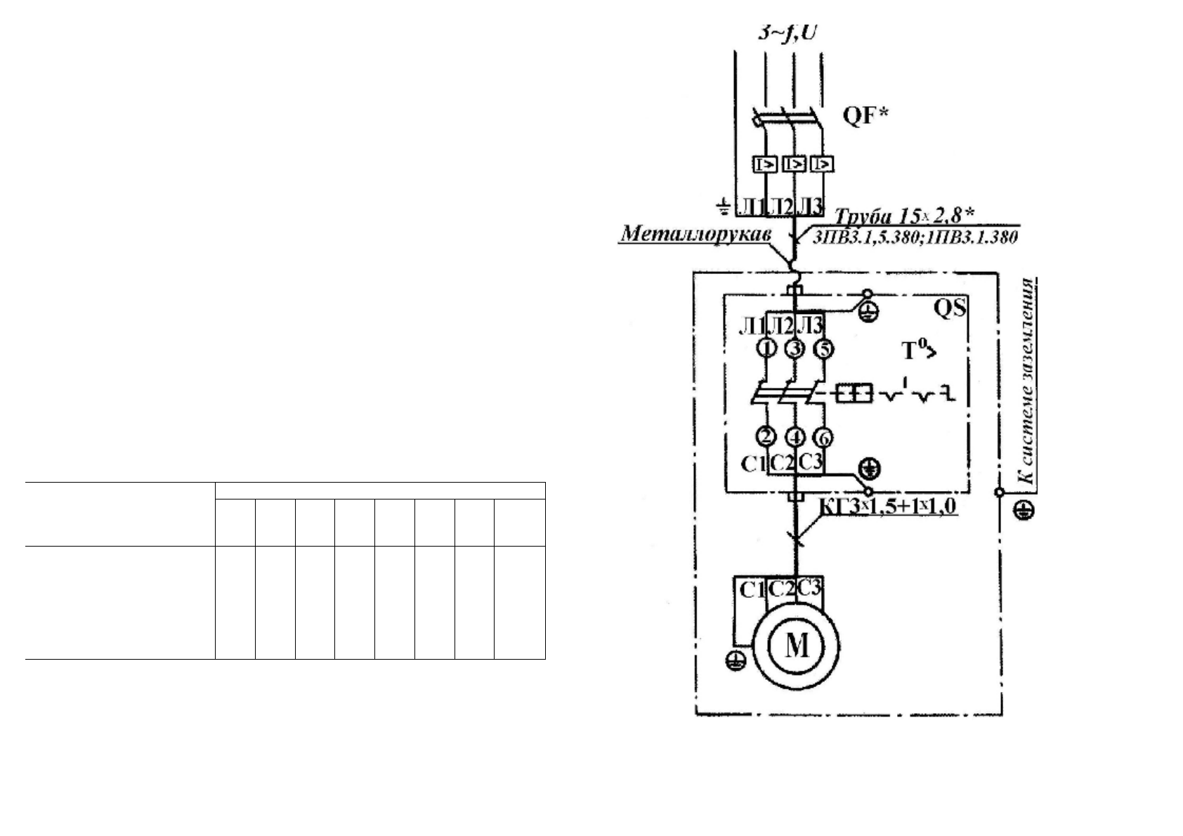
Р
ис
.37
.
С
хе
ма
эл
ек
три
ч
ес
к
ая
пр
и
нц
и
пи
аль
н
ая
и
со
един
ен
ий
ус
та
н
ов
ки
к
ом
пр
есс
орн
ой
,
мо
де
ль
К
-22












